Martin & Co says ..
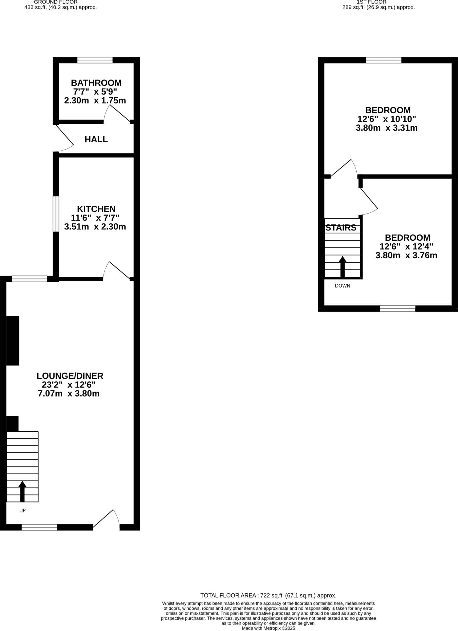
In need of refurbishment - a good sized 2 bedroom mid-terraced property in a central location close to the City Centre & Gloucester Quays, comprises large lounge/diner, kitchen, downstairs bathroom, two double bedrooms, gas central heating, rear garden, on-street parking. EPC - D59 | Counci...
Property Oracle says ..
Therefore, we give this property 6 / 10. *Disclaimer: This is our option and does constitute a recommendation or financial advice. Do your own research. *
- Price
- 9
- Condition
- 4
- Location
- 7
- Land
- 5
- Bedrooms
- 2
- Bathrooms
- 1
- Sqft (est)
- 722.00
The heatmap indicates the level of crime in the area. The color of the heatmap indicates the crime severity and recency.
Metrics Year-on-Year
- Average area value
- 345,000.00 £Increased by 40.18 %
- Est sale value
- 351,614.00 £Increased by 90.23 %
- Average area rental value
- 950.00 £/moIncreased by 0.64 %
- Est letting value
- 722.00 £/mo
- Est rental Yield
- 3.30 %Decreased by 28.26 %
- Crime Rate
- 13.00 %Unchanged by 0.00 %
from 246,107.00 £
from 184,832.00 £
from 944.00 £/mo
from 0.00 £/mo
from 4.60 %
from 13.00 %
Agent Activity
Martin & Co created the listing.
Nearby Schools
| Name | Type | Ofsted | Distance |
|---|---|---|---|
| St Paul'S Church Of England Primary School | Voluntary Controlled School | Good | 0.36 KM |
| Tredworth Junior School | Community School | Good | 0.78 KM |
| Linden Primary School | Community School | Good | 0.80 KM |
| The Lighthouse | Children's Centre | 0.86 KM | |
| Tredworth Infant And Nursery Academy | Academy Converter | Good | 1.04 KM |
Images
Nearby Streets
| Name | Average Price | Average Sqft | Distance |
|---|---|---|---|
| Park End Road | £ 1,100,000 | 0 | 0.00 KM |
| Furlong Road | £ 0 | 0 | 0.00 KM |
| Henley Court | £ 0 | 0 | 0.00 KM |
| Somerset Place | £ 0 | 0 | 0.00 KM |
| Greyfriars | £ 0 | 0 | 0.00 KM |
Nearby Transport
| Name | NLC | TLC | Distance |
|---|---|---|---|
| Gloucester | 4760 | GCR | 1.27 KM |
Nearby Listings
| Address | Price | Type | Score | Distance |
|---|---|---|---|---|
| New Street, Gloucester | £ 145,000 | BUY | 6 / 10 | 0.00 KM |
| New Street, Gloucester, Gloucestershire, GL1 | £ 140,000 | BUY | 5 / 10 | 0.00 KM |
| New Street, Gloucester, Gloucestershire, GL1 | £ 150,000 | BUY | 5 / 10 | 0.01 KM |
| Weston Road, Gloucester, Gloucestershire, GL1 | £ 375,000 | BUY | Unknown | 0.06 KM |
| St Pauls Court, St Pauls Road, Gloucester, GL1 | £ 120,000 | BUY | 5 / 10 | 0.07 KM |
Nearby Properties
| Address | Price | Distance |
|---|---|---|
| 61 Parkend Road | £ 179,000 | 0.11 KM |
| 93 New Street | £ 91,000 | 0.13 KM |
| 43 New Street | £ 152,000 | 0.13 KM |
| 85 New Street | £ 168,000 | 0.13 KM |
| 49 New Street | £ 150,000 | 0.13 KM |