Rampton Baseley says ..
A newly refurbished five bedroom family house on this popular residential street in the heart of Balham.
Property Oracle says ..
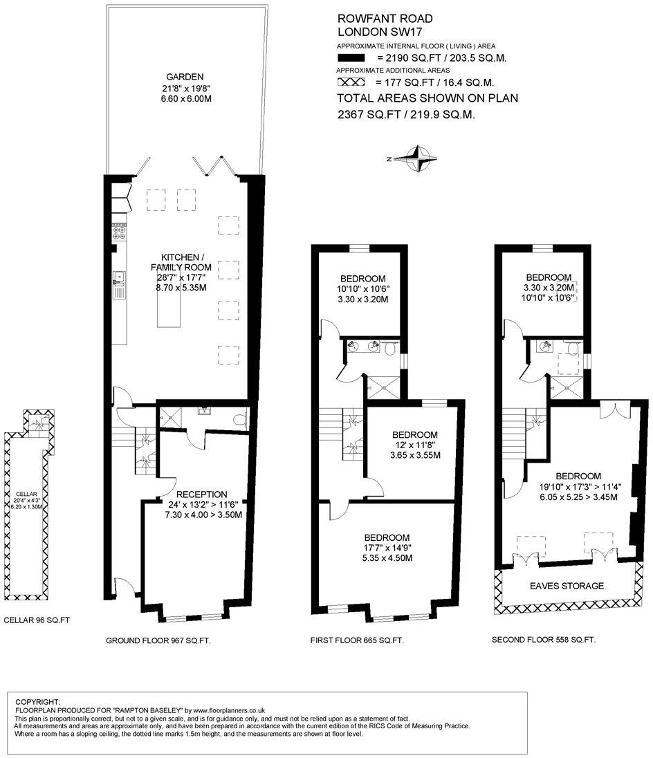
This 5-bedroom, 3-bathroom property located on Rowfant Road in Wandsworth, SW17, presents itself as a well-maintained family home. The images showcase a recent renovation or refurbishment, resulting in a modern and stylish interior. The open-plan kitchen/dining area is a notable feature, seamlessly flowing into the garden. The property’s location in Nightingale, Wandsworth, offers a desirable residential setting with access to local amenities and transport links via Balham station. While the provided data on nearby properties is incomplete, lacking square footage for many listings, the asking price appears relatively competitive within the context of the South West London market. The inclusion of a garden adds to the property’s appeal, though its size remains unspecified. Overall, this property presents a strong proposition for a family seeking a well-presented home in a convenient location. Further information on the plot size and more detailed comparable sales data would allow for a more precise evaluation of its market value.
Therefore, we give this property 6 / 10. *Disclaimer: This is our option and does constitute a recommendation or financial advice. Do your own research. *
- Price
- 7
- Condition
- 9
- Location
- 7
- Land
- 4
- Bedrooms
- 5
- Bathrooms
- 3
- Sqft (est)
- 2,367.00
The heatmap indicates the level of crime in the area. The color of the heatmap indicates the crime severity and recency.
Metrics Year-on-Year
- Average area value
- 1,130,667.00 £Increased by 13.32 %
- Est sale value
- 3,131,541.00 £Increased by 91.74 %
- Average area rental value
- 2,767.00 £/moIncreased by 5.85 %
- Est letting value
- 7,101.00 £/moIncreased by 200.00 %
- Est rental Yield
- 2.94 %Decreased by 6.37 %
- Crime Rate
- 3.00 %Unchanged by 0.00 %
Agent Activity
Rampton Baseley created the listing.
Nearby Schools
| Name | Type | Ofsted | Distance |
|---|---|---|---|
| Eveline Day School | Other Independent School | 0.17 KM | |
| Rutherford House School | Free Schools | Good | 0.21 KM |
| Trinity St Mary'S Cofe Primary School | Voluntary Aided School | Good | 0.23 KM |
| Ravenstone Primary School | Academy Converter | 0.31 KM | |
| Chestnut Grove School | Academy Converter | Good | 0.45 KM |
Images
Nearby Streets
| Name | Average Price | Average Sqft | Distance |
|---|---|---|---|
| Brook Close | £ 0 | 0 | 0.00 KM |
| Upper Tooting Park | £ 480,000 | 0 | 0.00 KM |
| Falcon Mews | £ 699,950 | 0 | 0.00 KM |
| Norgrove Street | £ 0 | 0 | 0.00 KM |
| Carnie Lodge | £ 450,000 | 0 | 0.00 KM |
Nearby Transport
| Name | NLC | TLC | Distance |
|---|---|---|---|
| Balham | 5399 | BAL | 0.51 KM |
| Wandsworth Common | 5395 | WSW | 1.00 KM |
| Tooting | 5389 | TOO | 2.38 KM |
| Clapham Junction | 5595 | CLJ | 3.04 KM |
| Streatham | 5383 | STE | 3.20 KM |
Nearby Listings
| Address | Price | Type | Score | Distance |
|---|---|---|---|---|
| Rowfant Road, SW17 | £ 1,715,000 | BUY | 6 / 10 | 0.00 KM |
| Rowfant Road, Balham, London SW17 7AP | £ 1,350,000 | BUY | 7 / 10 | 0.02 KM |
| Marius Road, London, SW17 | £ 650,000 | BUY | 6 / 10 | 0.04 KM |
| Marius Road, Balham, London, SW17 | £ 675,000 | BUY | Unknown | 0.04 KM |
| Marius Mansions, SW17 | £ 620,000 | BUY | 7 / 10 | 0.04 KM |
Nearby Properties
| Address | Price | Distance |
|---|---|---|
| 11 Rowfant Road | £ 850,000 | 0.10 KM |
| 3 Rowfant Road | £ 1,650,000 | 0.10 KM |
| 5 Rowfant Road | £ 820,000 | 0.10 KM |
| 39 Rowfant Road | £ 523,000 | 0.10 KM |
| 1 Rowfant Road | £ 1,345,000 | 0.10 KM |