TE
Spinney Close, Grimoldby, Louth, LN11
By TES Property (Lincolnshire) Limited
£ 310,000
Reviews
4 out of 5 stars
TES Property (Lincolnshire) Limited says ..
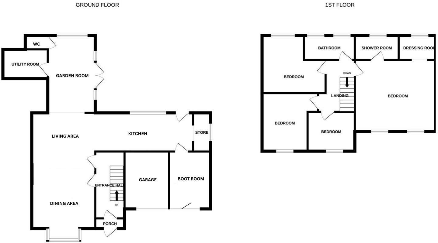
TES Property bring to the market this attractive and spacious semi detached house located in the popular village of Grimoldby. This delightful property has been extended and renovated to a high standard by the current owners to create a cosy and welcoming home. Internally comprising of an open pl...
Property Oracle says ..
Therefore, we give this property 8 / 10. *Disclaimer: This is our option and does constitute a recommendation or financial advice. Do your own research. *
- Price
- 9
- Condition
- 8
- Location
- 7
- Land
- 8
- Bedrooms
- 4
- Bathrooms
- 2
- Sqft (est)
- 1,879.00
The heatmap indicates the level of crime in the area. The color of the heatmap indicates the crime severity and recency.
Metrics Year-on-Year
- Average area value
- 282,222.00 £Decreased by 4.78 %
- Est sale value
- 514,846.00 £Increased by 0.74 %
- Average area rental value
- 1,223.00 £/moIncreased by 4.80 %
- Est letting value
- 1,879.00 £/moUnchanged by 0.00 %
- Est rental Yield
- 5.20 %Increased by 10.17 %
- Crime Rate
- 5.00 %Unchanged by 0.00 %
from 296,398.00 £
from 511,088.00 £
from 1,167.00 £/mo
from 1,879.00 £/mo
from 4.72 %
from 5.00 %
Agent Activity
TES Property (Lincolnshire) Limited created the listing.
Nearby Schools
| Name | Type | Ofsted | Distance |
|---|---|---|---|
| Grimoldby Primary School | Foundation School | Good | 0.40 KM |
| East Wold Church Of England Primary School | Voluntary Controlled School | Good | 4.51 KM |
| North Cockerington Church Of England Primary School | Voluntary Controlled School | Good | 4.66 KM |
| St Bernard'S School | Academy Special Converter | Good | 8.27 KM |
| The St Margaret'S Church Of England School, Withern | Voluntary Controlled School | Good | 8.32 KM |
Images
Nearby Streets
| Name | Average Price | Average Sqft | Distance |
|---|---|---|---|
| Spinney Close | £ 0 | 0 | 0.00 KM |
| Meadow Close | £ 229,950 | 0 | 0.00 KM |
| Valiant Road | £ 0 | 0 | 0.00 KM |
| Carlton Road | £ 450,000 | 0 | 0.00 KM |
| Hungry Hill Lane | £ 0 | 0 | 0.00 KM |
Nearby Listings
| Address | Price | Type | Score | Distance |
|---|---|---|---|---|
| Spinney Close, Grimoldby, Louth, LN11 | £ 310,000 | BUY | 8 / 10 | 0.00 KM |
| Amelia Wood Way, Grimoldby, LN11 | £ 450,000 | BUY | 7 / 10 | 0.09 KM |
| Amelia Wood Way, Grimoldby, LN11 | £ 399,950 | BUY | 7 / 10 | 0.13 KM |
| Amelia Wood Way, Grimoldby, Louth, Lincolnshire, LN11 | £ 240,000 | BUY | 7 / 10 | 0.18 KM |
| GIBSON WAY, MANBY, LOUTH | £ 190,000 | BUY | 7 / 10 | 0.21 KM |
Nearby Properties
| Address | Price | Distance |
|---|---|---|
| 5 Spinney Close | £ 112,000 | 0.03 KM |
| Sunnyside | £ 123,750 | 0.03 KM |
| 7 Spinney Close | £ 120,000 | 0.03 KM |
| The Hedges | £ 177,000 | 0.03 KM |
| Briley Cottage | £ 100,000 | 0.03 KM |