Leighton Park Road, Westbury Leigh
By Davies & Davies
£ 595,000
Reviews
3 out of 5 stars
Davies & Davies says ..
** £30,000 STAMP DUTY CONTRIBUTION** A stunning brand new large detached family home situated in this fabulous location, close to beautiful open countryside, on the outskirts of Westbury.
Property Oracle says ..
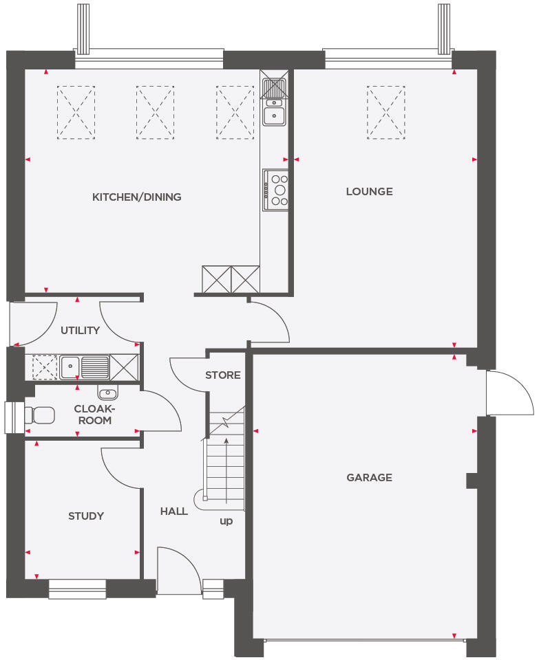
This is a modern detached property located in Westbury Leigh, Wiltshire. The house features 4 bedrooms and 3 bathrooms, a well-maintained garden, and a garage. The interior is modern and appears to be in excellent condition. While the price seems high compared to the average price per square foot in the area, the property’s features and condition may justify the cost. The property is located 1.05 KM from Matravers School which has a Ofsted rating of ‘Requires improvement’.
Therefore, we give this property 7 / 10. *Disclaimer: This is our option and does constitute a recommendation or financial advice. Do your own research. *
- Price
- 6
- Condition
- 9
- Location
- 7
- Land
- 8
- Bedrooms
- 4
- Bathrooms
- 3
- Sqft (est)
- 780.00
The heatmap indicates the level of crime in the area. The color of the heatmap indicates the crime severity and recency.
Metrics Year-on-Year
- Average area value
- 397,143.00 £Increased by 19.84 %
- Est sale value
- 303,420.00 £Increased by 89.76 %
- Average area rental value
- 950.00 £/moDecreased by 13.08 %
- Est letting value
- 0.00 £/mo
- Est rental Yield
- 2.87 %Decreased by 27.53 %
- Crime Rate
- 0.00 %
Agent Activity
Davies & Davies created the listing.
Nearby Schools
| Name | Type | Ofsted | Distance |
|---|---|---|---|
| Matravers School | Foundation School | Requires improvement | 1.05 KM |
| Westbury Leigh Cofe Primary School | Voluntary Controlled School | Requires improvement | 1.11 KM |
| Westbury Infant School | Community School | Good | 1.34 KM |
| White Horse Children'S Centre | Children's Centre | 1.36 KM | |
| Westbury Church Of England Junior School | Voluntary Controlled School | Good | 1.47 KM |
Images
Nearby Streets
| Name | Average Price | Average Sqft | Distance |
|---|---|---|---|
| Ticklebelly Lane | £ 0 | 0 | 0.00 KM |
| Suffolk Road | £ 0 | 0 | 0.00 KM |
| Acacia Drive | £ 0 | 0 | 0.00 KM |
| Leigh Road | £ 360,000 | 0 | 0.00 KM |
| Chesnut Grove | £ 215,000 | 0 | 0.00 KM |
Nearby Transport
| Name | NLC | TLC | Distance |
|---|---|---|---|
| Dilton Marsh | 5502 | DMH | 1.69 KM |
| Westbury | 5712 | WSB | 2.20 KM |
| Warminster | 5505 | WMN | 4.94 KM |
| Trowbridge | 3348 | TRO | 8.31 KM |
Nearby Listings
| Address | Price | Type | Score | Distance |
|---|---|---|---|---|
| Leighton Park Road, Westbury Leigh | £ 595,000 | BUY | 7 / 10 | 0.00 KM |
| Leighton Park Road, Westbury Leigh | £ 595,000 | BUY | 7 / 10 | 0.00 KM |
| Leighton Park Road, Westbury Leigh | £ 385,000 | BUY | 7 / 10 | 0.00 KM |
| Leighton Park Road, Westbury Leigh | £ 400,000 | BUY | 7 / 10 | 0.00 KM |
| Leighton Park Road, Westbury Leigh | £ 595,000 | BUY | 7 / 10 | 0.00 KM |
Nearby Properties
| Address | Price | Distance |
|---|---|---|
| 2 Dene Close | £ 175,000 | 0.11 KM |
| 14 Leighton Park Road | £ 147,000 | 0.12 KM |
| 4 Leighton Park Road | £ 148,000 | 0.12 KM |
| 23 Leighton Park Road | £ 182,500 | 0.12 KM |
| 35 Leighton Park Road | £ 172,000 | 0.12 KM |