Northfields Lane, Brixham, Devon, TQ5
By Homewise
£ 257,250
Reviews
3 out of 5 stars
Homewise says ..
Guide price for a Home for Life Lifetime Lease for OVER 60s tailored to your personal circumstances and requirements. Your price may vary. OVER 60S could benefit from SAVINGS of up to 59% from the market value with a one-off payment for a Lifetime Lease on this property. £25...
Property Oracle says ..
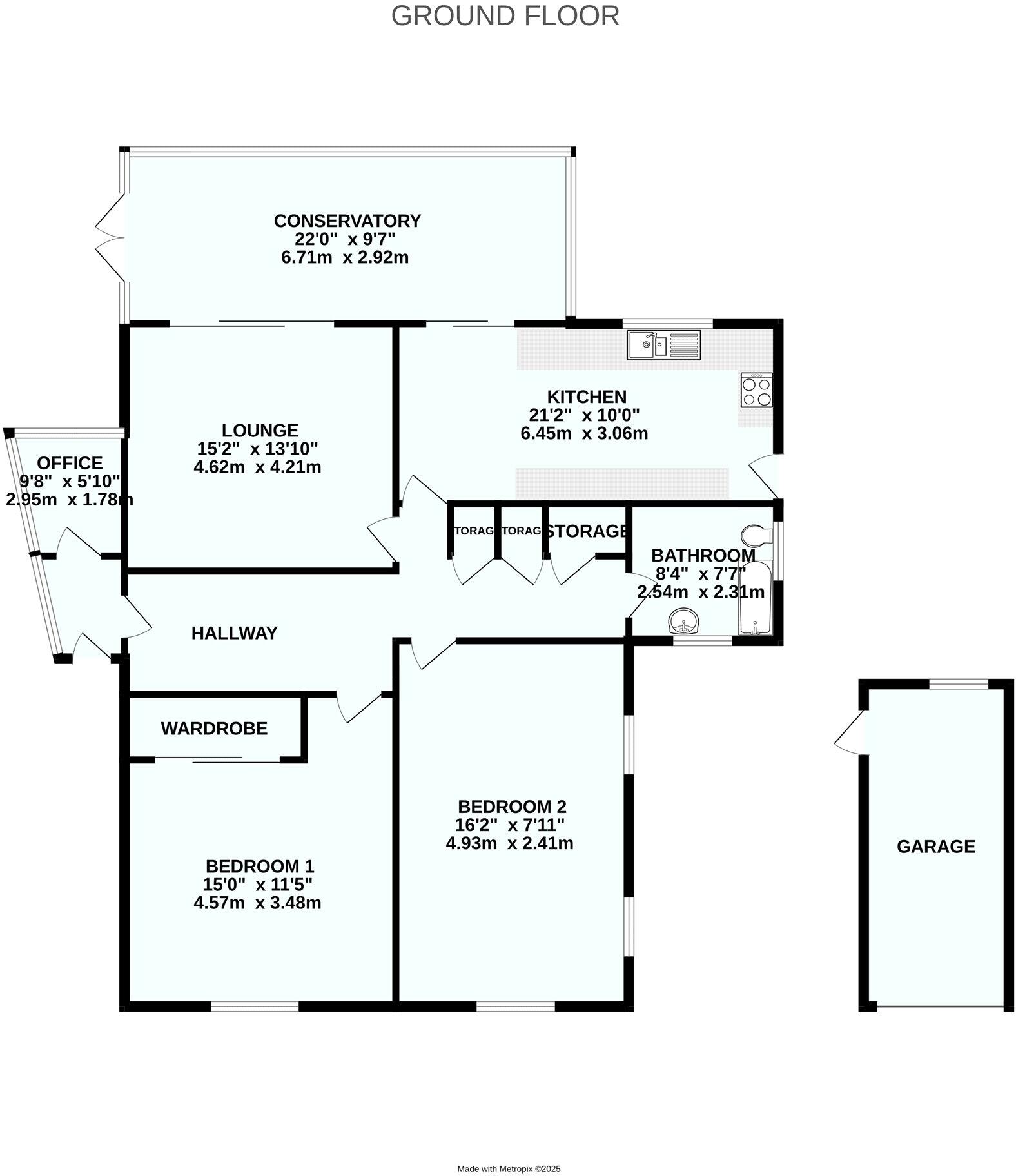
This is a well-presented, modern detached bungalow in Brixham, Devon. The property benefits from a modern kitchen and bathroom, a conservatory, a garden, and off-street parking. The property is located close to local schools and amenities, and is within easy reach of the town centre and the coast. The property is competitively priced for the area.
Therefore, we give this property 7 / 10. *Disclaimer: This is our option and does constitute a recommendation or financial advice. Do your own research. *
- Price
- 7
- Condition
- 8
- Location
- 7
- Land
- 7
- Bedrooms
- 2
- Bathrooms
- 1
- Sqft (est)
- 1,042.15
The heatmap indicates the level of crime in the area. The color of the heatmap indicates the crime severity and recency.
Metrics Year-on-Year
- Average area value
- 350,241.00 £Increased by 0.25 %
- Est sale value
- 448,124.50 £Increased by 21.13 %
- Average area rental value
- 1,100.00 £/moIncreased by 8.70 %
- Est letting value
- 1,042.15 £/moUnchanged by 0.00 %
- Est rental Yield
- 3.77 %Increased by 8.33 %
- Crime Rate
- 14.00 %Unchanged by 0.00 %
Agent Activity
Homewise created the listing.
Nearby Schools
| Name | Type | Ofsted | Distance |
|---|---|---|---|
| Furzeham Primary School | Community School | Good | 0.73 KM |
| Furzeham Children'S Centre | Children's Centre Linked Site | 0.98 KM | |
| Eden Park Primary & Nursery School | Academy Converter | Good | 1.10 KM |
| St Margaret Clitherow Catholic Primary School | Academy Converter | Requires improvement | 1.16 KM |
| Brixham Children'S Centre | Children's Centre Linked Site | 1.42 KM |
Images
Nearby Streets
| Name | Average Price | Average Sqft | Distance |
|---|---|---|---|
| Northfields Industrial Estate | £ 240,000 | 0 | 0.00 KM |
| Kingswater Court | £ 0 | 0 | 0.00 KM |
| Market Street | £ 0 | 0 | 0.00 KM |
| Cambridge Road | £ 0 | 0 | 0.00 KM |
| Bank Lane | £ 0 | 0 | 0.00 KM |
Nearby Transport
| Name | NLC | TLC | Distance |
|---|---|---|---|
| Paignton | 3427 | PGN | 6.31 KM |
| Torquay | 3434 | TQY | 7.53 KM |
| Torre | 3432 | TRR | 8.91 KM |
Nearby Listings
| Address | Price | Type | Score | Distance |
|---|---|---|---|---|
| Northfields Lane, Brixham, Devon, TQ5 | £ 257,250 | BUY | 7 / 10 | 0.00 KM |
| Pillar Avenue, Brixham | £ 279,950 | BUY | 7 / 10 | 0.05 KM |
| Pillar Avenue, Brixham | £ 139,950 | BUY | 5 / 10 | 0.08 KM |
| Cumber Drive, Brixham | £ 189,950 | BUY | 5 / 10 | 0.08 KM |
| Cumber Drive, Brixham | £ 260,000 | BUY | 6 / 10 | 0.09 KM |
Nearby Properties
| Address | Price | Distance |
|---|---|---|
| 88 Northfields Lane | £ 158,000 | 0.00 KM |
| 135 Northfields Lane | £ 235,000 | 0.00 KM |
| 104 Northfields Lane | £ 138,000 | 0.00 KM |
| 120 Northfields Lane | £ 60,000 | 0.00 KM |
| 101 Northfields Lane | £ 154,000 | 0.05 KM |