RE
Fox Road, West Bridgford, Nottingham, Nottinghamshire, NG2
By Rex Gooding
£ 180,000
Reviews
3 out of 5 stars
Rex Gooding says ..
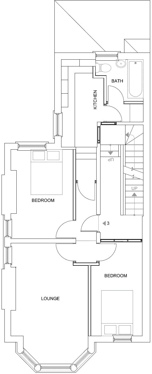
This first floor apartment boasts a wonderful bay window with a lovely aspect down both Fox and Hound Roads. The apartment has super high ceilings throughout giving a real sense of space and a modern kitchen and bathroom, two double bedrooms and a utility with washer and dryer. The ap...
Property Oracle says ..
Therefore, we give this property 6 / 10. *Disclaimer: This is our option and does constitute a recommendation or financial advice. Do your own research. *
- Price
- 7
- Condition
- 8
- Location
- 8
- Land
- 3
- Bedrooms
- 2
- Bathrooms
- 1
- Sqft (est)
- 546.00
The heatmap indicates the level of crime in the area. The color of the heatmap indicates the crime severity and recency.
Metrics Year-on-Year
- Average area value
- 424,500.00 £Increased by 7.93 %
- Est sale value
- 170,352.00 £Decreased by 20.81 %
- Average area rental value
- 830.00 £/moDecreased by 15.99 %
- Est letting value
- 0.00 £/mo
- Est rental Yield
- 2.35 %Decreased by 21.93 %
- Crime Rate
- 5.00 %Unchanged by 0.00 %
from 393,325.00 £
from 215,124.00 £
from 988.00 £/mo
from 0.00 £/mo
from 3.01 %
from 5.00 %
Agent Activity
Rex Gooding created the listing.
Nearby Schools
| Name | Type | Ofsted | Distance |
|---|---|---|---|
| Clayfield House | Secure Units | 0.64 KM | |
| West Bridgford Infant School | Community School | Outstanding | 0.70 KM |
| Lady Bay Primary School | Community School | Good | 0.90 KM |
| West Bridgford Junior School | Community School | Outstanding | 1.39 KM |
| Greenfields Community School | Community School | Good | 1.54 KM |
Images
Nearby Streets
| Name | Average Price | Average Sqft | Distance |
|---|---|---|---|
| Loading Area | £ 0 | 0 | 0.00 KM |
| Orston Road West | £ 250,000 | 0 | 0.00 KM |
| London Road | £ 335,000 | 0 | 0.00 KM |
| Trentside North | £ 255,000 | 0 | 0.00 KM |
| The Poplars | £ 200,000 | 0 | 0.00 KM |
Nearby Transport
| Name | NLC | TLC | Distance |
|---|---|---|---|
| Nottingham | 1826 | NOT | 2.16 KM |
| Netherfield | 6241 | NET | 6.19 KM |
| Carlton | 6201 | CTO | 6.50 KM |
| Beeston | 1625 | BEE | 8.77 KM |
Nearby Listings
| Address | Price | Type | Score | Distance |
|---|---|---|---|---|
| Fox Road, West Bridgford, Nottingham, Nottinghamshire, NG2 | £ 180,000 | BUY | 6 / 10 | 0.00 KM |
| Fox Road, West Bridgford, Nottingham, Nottinghamshire, NG2 | £ 145,000 | BUY | 6 / 10 | 0.07 KM |
| Fox Road, West Bridgford | £ 300,000 | BUY | 7 / 10 | 0.07 KM |
| Fox Road, West Bridgford | £ 300,000 | BUY | 6 / 10 | 0.07 KM |
| Fox Road, West Bridgford | £ 600,000 | BUY | 6 / 10 | 0.08 KM |
Nearby Properties
| Address | Price | Distance |
|---|---|---|
| 27 Fox Road | £ 270,000 | 0.07 KM |
| 17 Fox Road | £ 619,000 | 0.07 KM |
| 37 Fox Road | £ 250,000 | 0.08 KM |
| 15 Fox Road | £ 365,000 | 0.08 KM |
| 20 Hound Road | £ 795,000 | 0.09 KM |