John Lake Estate Agents says ..
This CHARACTER COTTAGE forms part of a terrace of former coastguard cottages, enviably positioned to take full advantage of the picturesque views over Daddyhole Plain to the sea at Tor Bay toward Brixham’s Berry Head. Chain free.
Property Oracle says ..
The property is located in Meadfoot, Torquay, a desirable coastal location in the Wellswood area of Torbay, Devon. The area benefits from proximity to the seafront, local amenities, and good schools. While specific square footage is unavailable, the list price of £425,000 is comparable to other cottages in the area, though some nearby properties are significantly more expensive. The property appears to be in reasonable condition, though some minor cosmetic updates might enhance its appeal. The presence of a garden adds to its desirability. The lack of precise square footage and plot size data limits a fully comprehensive analysis of price per square foot and land value.
Therefore, we give this property 7 / 10. *Disclaimer: This is our option and does constitute a recommendation or financial advice. Do your own research. *
- Price
- 7
- Condition
- 7
- Location
- 9
- Land
- 7
- Bedrooms
- 3
- Bathrooms
- 1
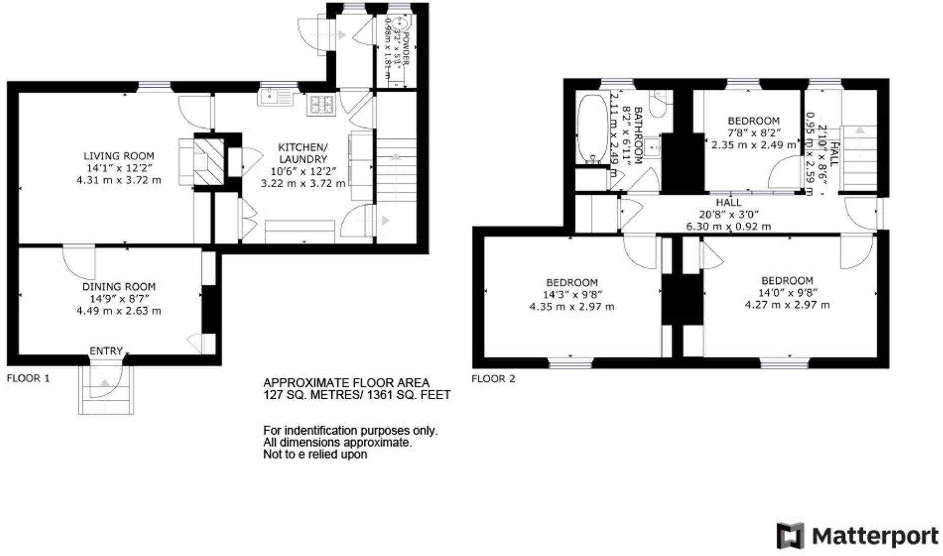
- Sqft (est)
- 791.00
- Lot (est)
- 1,361.00
The heatmap indicates the level of crime in the area. The color of the heatmap indicates the crime severity and recency.
Metrics Year-on-Year
- Average area value
- 499,500.00 £Increased by 16.96 %
- Est sale value
- 284,760.00 £Decreased by 4.00 %
- Average area rental value
- 1,072.00 £/moIncreased by 1.52 %
- Est letting value
- 0.00 £/mo
- Est rental Yield
- 2.58 %Decreased by 13.13 %
- Crime Rate
- 10.00 %Unchanged by 0.00 %
Agent Activity
John Lake Estate Agents created the listing.
Nearby Schools
| Name | Type | Ofsted | Distance |
|---|---|---|---|
| Warberry Cofe Academy | Academy Converter | Good | 1.31 KM |
| Ilsham Church Of England Academy | Academy Converter | Good | 1.54 KM |
| Torquay Children'S Centre | Children's Centre | 1.92 KM | |
| All Saints Babbacombe Cofe Primary School | Academy Converter | Good | 1.95 KM |
| Eat That Frog C.I.C | Special Post 16 Institution | Good | 2.09 KM |
Images
Nearby Streets
| Name | Average Price | Average Sqft | Distance |
|---|---|---|---|
| Hardy Close | £ 0 | 0 | 0.00 KM |
| Kelly Close | £ 1,200,000 | 0 | 0.00 KM |
| Vernon Close | £ 2,000,000 | 0 | 0.00 KM |
| Vanehill Road | £ 340,000 | 0 | 0.00 KM |
| Torwood Gardens Road | £ 0 | 0 | 0.00 KM |
Nearby Transport
| Name | NLC | TLC | Distance |
|---|---|---|---|
| Torquay | 3434 | TQY | 3.12 KM |
| Torre | 3432 | TRR | 3.90 KM |
| Paignton | 3427 | PGN | 5.97 KM |
Nearby Listings
| Address | Price | Type | Score | Distance |
|---|---|---|---|---|
| Meadfoot, Torquay | £ 425,000 | BUY | 7 / 10 | 0.00 KM |
| Meadfoot, Torquay | £ 395,000 | BUY | 6 / 10 | 0.01 KM |
| Daddyhole Plain, Torquay, TQ1 | £ 875,000 | BUY | 6 / 10 | 0.04 KM |
| Daddyhole Road, Torquay, TQ1 | £ 925,000 | BUY | Unknown | 0.04 KM |
| Tower House, Torquay | £ 750,000 | BUY | 6 / 10 | 0.05 KM |
Nearby Properties
| Address | Price | Distance |
|---|---|---|
| Meadow Bank | £ 175,000 | 0.06 KM |
| Cherrytrees | £ 315,000 | 0.06 KM |
| Greycote | £ 775,000 | 0.06 KM |
| Danewood | £ 690,000 | 0.08 KM |
| Highpoint | £ 640,000 | 0.10 KM |