MI
High Street, Whitstable, CT5
By Miles & Barr
£ 270,000
Miles & Barr says ..
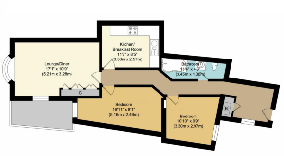
Located in a desirable central location, this well-presented two-bedroom apartment offers a convenient and comfortable living space for those seeking the utmost in urban convenience. Boasting a strategic position with parking to the rear, this property provides ease and accessibility for its inha...
- Bedrooms
- 2
- Bathrooms
- 1
The heatmap indicates the level of crime in the area. The color of the heatmap indicates the crime severity and recency.
Metrics Year-on-Year
- Average area value
- 467,833.00 £Increased by 3.56 %
- Average area rental value
- 1,383.00 £/moIncreased by 4.30 %
- Est rental Yield
- 3.55 %Increased by 0.85 %
- Crime Rate
- 59.00 %Unchanged by 0.00 %
from 451,737.00 £
from 1,326.00 £/mo
from 3.52 %
from 59.00 %
Agent Activity
Miles & Barr created the listing.
Nearby Schools
| Name | Type | Ofsted | Distance |
|---|---|---|---|
| Isp Polar Re Start Centre | Other Independent Special School | 0.12 KM | |
| Whitstable And Seasalter Endowed Church Of England Junior School | Voluntary Aided School | Outstanding | 0.25 KM |
| St Alphege Church Of England Infant School | Voluntary Controlled School | Good | 0.41 KM |
| Whitstable Junior School | Foundation School | Good | 0.45 KM |
| Westmeads Community Infant School | Community School | Outstanding | 0.57 KM |
Images
Nearby Streets
| Name | Average Price | Average Sqft | Distance |
|---|---|---|---|
| Wheelers Alley (CWX32) | £ 0 | 0 | 0.00 KM |
| Brices Alley | £ 0 | 0 | 0.00 KM |
| Salt Pans Lane | £ 360,000 | 0 | 0.00 KM |
| Shipwrights Lee | £ 825,000 | 0 | 0.00 KM |
| Shipyard Alley | £ 745,000 | 0 | 0.00 KM |
Nearby Transport
| Name | NLC | TLC | Distance |
|---|---|---|---|
| Whitstable | 5196 | WHI | 1.02 KM |
| Chestfield And Swalecliffe | 5200 | CSW | 4.70 KM |
Nearby Listings
| Address | Price | Type | Score | Distance |
|---|---|---|---|---|
| High Street, Whitstable, CT5 | £ 270,000 | BUY | Unknown | 0.00 KM |
| High Street, Whitstable | £ 695,000 | BUY | Unknown | 0.03 KM |
| Knots Yard, Whitstable, CT5 | £ 400,000 | BUY | 6 / 10 | 0.03 KM |
| Knots Yard, Whitstable | £ 175,000 | BUY | 6 / 10 | 0.03 KM |
| Knots Yard, Whitstable | £ 400,000 | BUY | 7 / 10 | 0.04 KM |
Nearby Properties
| Address | Price | Distance |
|---|---|---|
| 6a High Street | £ 70,000 | 0.07 KM |
| 9 Terrys Lane | £ 185,000 | 0.09 KM |
| 15 Terrys Lane | £ 122,000 | 0.09 KM |
| 6 Terrys Lane | £ 490,000 | 0.09 KM |
| 11 Terrys Lane | £ 134,000 | 0.09 KM |