Hodders says ..
SALE AGREED BY HODDERS Welcome to this contemporary and spacious four-bedroom semi-detached home, ideally situated in a sought-after neighbourhood that offers the perfect blend of modern living and convenience. With proximity to excellent schools, village amenities, and a mainline train sta...
Property Oracle says ..
This four-bedroom semi-detached house in New Haw, Surrey, presents a mixed bag. Its location is a key strength, boasting easy access to mainline train stations providing links to London Waterloo. The close proximity of several well-regarded schools adds considerable family appeal. The property itself appears structurally sound from the photos. The interior shows evidence of being lived in. The kitchen and bathrooms seem dated and could benefit from an update. The existing finishes lack the modern elegance and style found in recently renovated homes, implying that some level of modernisation would be required. The garden is of a modest size and is not particularly noteworthy. Concerning the price, while a comparative analysis with similar properties would be required to make a fully informed judgment, the current asking price suggests that the property would likely attract interest. The need for interior upgrades might influence final offers, with potential buyers considering costs for such improvements. Overall, this is a family-friendly home in a good location, offering potential for buyers willing to undertake some modernising works to realise its full potential. The lack of detailed information about plot size and specific property features in the provided information made an absolute assessment difficult.
Therefore, we give this property 6 / 10. *Disclaimer: This is our option and does constitute a recommendation or financial advice. Do your own research. *
- Price
- 7
- Condition
- 6
- Location
- 7
- Land
- 4
- Bedrooms
- 4
- Bathrooms
- 0
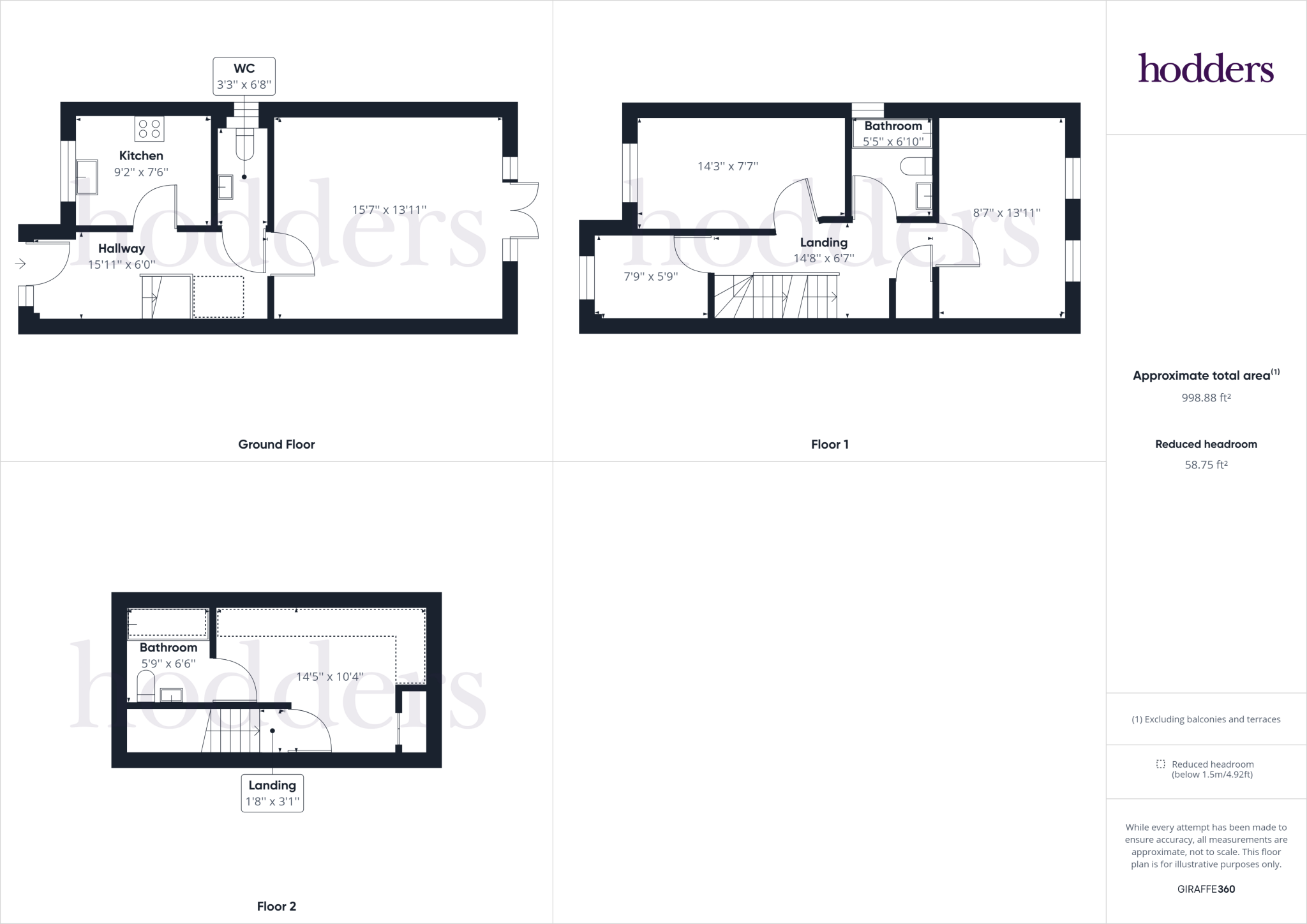
- Sqft (est)
- 998.88
The heatmap indicates the level of crime in the area. The color of the heatmap indicates the crime severity and recency.
Metrics Year-on-Year
- Average area value
- 497,268.00 £Increased by 4.06 %
- Est sale value
- 503,435.52 £Increased by 51.81 %
- Average area rental value
- 2,350.00 £/moIncreased by 60.19 %
- Est letting value
- 1,997.76 £/moIncreased by 100.00 %
- Est rental Yield
- 5.67 %Increased by 54.08 %
- Crime Rate
- 8.00 %Unchanged by 0.00 %
Agent Activity
Hodders marked this listing as sold.
Hodders created the listing.
Nearby Schools
| Name | Type | Ofsted | Distance |
|---|---|---|---|
| West Byfleet Junior School | Community School | Good | 0.70 KM |
| West Byfleet Infant School | Community School | Outstanding | 0.70 KM |
| Fullbrook School | Academy Converter | Good | 0.90 KM |
| The Grange Community Infant School | Community School | Good | 0.95 KM |
| The Poplars Sure Start Children'S Centre | Children's Centre | 0.95 KM |
Images
Nearby Streets
| Name | Average Price | Average Sqft | Distance |
|---|---|---|---|
| Braeside | £ 0 | 0 | 0.00 KM |
| Eden Close | £ 0 | 0 | 0.00 KM |
| Heatherfields | £ 0 | 0 | 0.00 KM |
| Basingstoke Canal towpath | £ 531,650 | 0 | 0.00 KM |
| The Broadway | £ 315,000 | 0 | 0.00 KM |
Nearby Transport
| Name | NLC | TLC | Distance |
|---|---|---|---|
| West Byfleet | 5684 | WBY | 1.09 KM |
| Byfleet And New Haw | 5689 | BFN | 1.95 KM |
| Addlestone | 5550 | ASN | 3.37 KM |
| Chertsey | 5553 | CHY | 4.69 KM |
| Weybridge | 5577 | WYB | 4.84 KM |
Nearby Listings
| Address | Price | Type | Score | Distance |
|---|---|---|---|---|
| New Haw, Surrey, KT15 | £ 465,000 | BUY | 6 / 10 | 0.00 KM |
| Kings Road, New Haw, Addlestone, Surrey, KT15 | £ 500,000 | BUY | 7 / 10 | 0.01 KM |
| Kings Road, New Haw, Addlestone, Surrey, KT15 | £ 475,000 | BUY | 6 / 10 | 0.04 KM |
| Kings Road, New Haw, Addlestone, Surrey, KT15 | £ 525,000 | BUY | 7 / 10 | 0.07 KM |
| Lindsay Road, New Haw, KT15 | £ 660,000 | BUY | 6 / 10 | 0.09 KM |
Nearby Properties
| Address | Price | Distance |
|---|---|---|
| 59 Lindsay Road | £ 260,000 | 0.10 KM |
| 39 Lindsay Road | £ 394,950 | 0.10 KM |
| 69 Lindsay Road | £ 323,995 | 0.10 KM |
| 54 Lindsay Road | £ 250,000 | 0.10 KM |
| 50 Lindsay Road | £ 389,000 | 0.10 KM |