Acorn Properties says ..
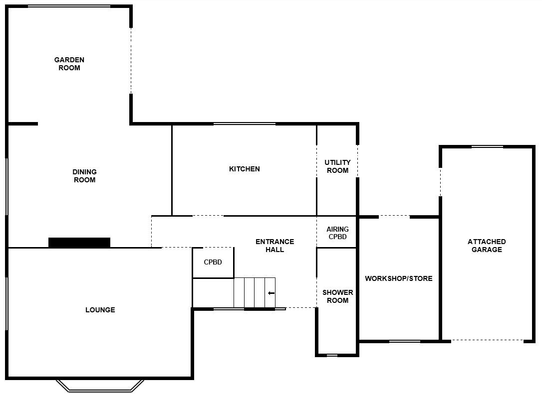
NO ONWARD CHAIN. Spacious executive detached home situated within heart of coastal village, 1/4 acre plot, delightful gardens, designed as 4 bedroom house but arranged to provide three large double bedrooms, 3 reception rooms including garden room extension, brick workshop/store shed, garage, sec...
Property Oracle says ..
Therefore, we give this property 7 / 10. *Disclaimer: This is our option and does constitute a recommendation or financial advice. Do your own research. *
- Price
- 7
- Condition
- 8
- Location
- 7
- Land
- 9
- Bedrooms
- 3
- Bathrooms
- 2
- Sqft (est)
- 1,401.00
The heatmap indicates the level of crime in the area. The color of the heatmap indicates the crime severity and recency.
Metrics Year-on-Year
- Average area value
- 409,000.00 £Increased by 19.09 %
- Est sale value
- 659,871.00 £Increased by 26.95 %
- Average area rental value
- 800.00 £/moDecreased by 20.00 %
- Est letting value
- 0.00 £/moDecreased by 100.00 %
- Est rental Yield
- 2.35 %Decreased by 32.66 %
- Crime Rate
- 77.00 %Unchanged by 0.00 %
from 343,443.00 £
from 519,771.00 £
from 1,000.00 £/mo
from 1,401.00 £/mo
from 3.49 %
from 77.00 %
Agent Activity
Acorn Properties created the listing.
Nearby Schools
| Name | Type | Ofsted | Distance |
|---|---|---|---|
| Mundesleysurestart Children'S Centre | Children's Centre | 0.95 KM | |
| Mundesley Junior School | Community School | Good | 0.96 KM |
| Mundesley Infant School | Community School | Good | 0.96 KM |
| Bacton Primary School | Community School | Good | 6.25 KM |
| North Walsham Sure Start Children'S Centre | Children's Centre | 7.62 KM |
Images
Nearby Streets
| Name | Average Price | Average Sqft | Distance |
|---|---|---|---|
| Town End | £ 0 | 0 | 0.00 KM |
| Meadow Close | £ 600,000 | 0 | 0.00 KM |
| Firemen's Close | £ 375,000 | 0 | 0.00 KM |
| Marina Road | £ 0 | 0 | 0.00 KM |
| Rookery Close | £ 350,000 | 0 | 0.00 KM |
Nearby Transport
| Name | NLC | TLC | Distance |
|---|---|---|---|
| North Walsham | 7308 | NWA | 8.77 KM |
| Gunton | 7299 | GNT | 9.55 KM |
Nearby Listings
| Address | Price | Type | Score | Distance |
|---|---|---|---|---|
| High Street, Mundesley | £ 220,000 | BUY | 6 / 10 | 0.00 KM |
| High Street, Mundesley | £ 550,000 | BUY | 7 / 10 | 0.00 KM |
| High Street, Mundesley | £ 250,000 | BUY | 6 / 10 | 0.00 KM |
| Manor Road, Mundesley, Norwich | £ 400,000 | BUY | 7 / 10 | 0.12 KM |
| Manor Road, Mundesley | £ 375,000 | BUY | 7 / 10 | 0.13 KM |
Nearby Properties
| Address | Price | Distance |
|---|---|---|
| 14 High Street | £ 320,000 | 0.00 KM |
| 10 High Street | £ 540,000 | 0.00 KM |
| 11 High Street | £ 433,000 | 0.00 KM |
| 5 High Street | £ 45,730 | 0.00 KM |
| 40 Manor Road | £ 300,000 | 0.12 KM |