HA
Greenfield Avenue, Surbiton, KT5
By Hawes & Co
£ 700,000
Reviews
3 out of 5 stars
Hawes & Co says ..
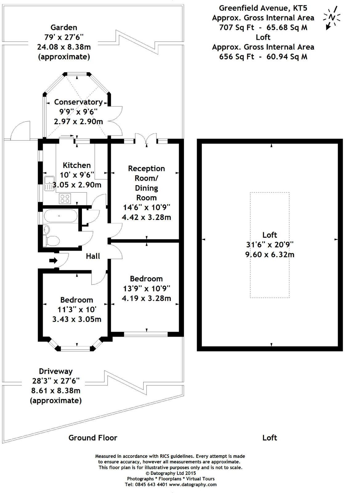
An exceptionally spacious and well-presented two-bedroom semi-detached bungalow, ideally situated on a sought-after residential road within the desirable Berrylands area. This charming home offers generously proportioned accommodation throughout and boasts a beautifully maintained, large south-fa...
Property Oracle says ..
Therefore, we give this property 7 / 10. *Disclaimer: This is our option and does constitute a recommendation or financial advice. Do your own research. *
- Price
- 7
- Condition
- 8
- Location
- 8
- Land
- 7
- Bedrooms
- 2
- Bathrooms
- 0
- Sqft (est)
- 4,218.88
The heatmap indicates the level of crime in the area. The color of the heatmap indicates the crime severity and recency.
Metrics Year-on-Year
- Average area value
- 570,435.00 £Increased by 16.78 %
- Est sale value
- 2,421,637.12 £Increased by 21.35 %
- Average area rental value
- 1,562.00 £/moIncreased by 10.39 %
- Est letting value
- 4,218.88 £/moUnchanged by 0.00 %
- Est rental Yield
- 3.29 %Decreased by 5.46 %
- Crime Rate
- 1.00 %Unchanged by 0.00 %
from 488,470.00 £
from 1,995,530.24 £
from 1,415.00 £/mo
from 4,218.88 £/mo
from 3.48 %
from 1.00 %
Agent Activity
Hawes & Co created the listing.
Nearby Schools
| Name | Type | Ofsted | Distance |
|---|---|---|---|
| Grand Avenue Primary And Nursery School | Community School | Good | 0.22 KM |
| Christ Church Cofe Primary School | Voluntary Aided School | Good | 1.20 KM |
| Our Lady Immaculate Catholic Primary School | Voluntary Aided School | Good | 1.21 KM |
| Richard Challoner School | Academy Converter | 1.35 KM | |
| Knollmead Primary School | Academy Sponsor Led | Good | 1.44 KM |
Images
Nearby Streets
| Name | Average Price | Average Sqft | Distance |
|---|---|---|---|
| Highfield Road | £ 685,000 | 0 | 0.00 KM |
| South Park Grove | £ 0 | 0 | 0.00 KM |
| Bazalgette Close | £ 0 | 0 | 0.00 KM |
| Hawkhurst Way | £ 0 | 0 | 0.00 KM |
| Green Lane | £ 649,167 | 0 | 0.00 KM |
Nearby Transport
| Name | NLC | TLC | Distance |
|---|---|---|---|
| Berrylands | 5581 | BRS | 0.99 KM |
| Tolworth | 5573 | TOL | 1.67 KM |
| Malden Manor | 5599 | MAL | 1.80 KM |
| Norbiton | 5568 | NBT | 2.48 KM |
| New Malden | 5567 | NEM | 2.63 KM |
Nearby Listings
| Address | Price | Type | Score | Distance |
|---|---|---|---|---|
| Greenfield Avenue, Surbiton, KT5 | £ 700,000 | BUY | 7 / 10 | 0.00 KM |
| Greenfield Avenue, Surbiton | £ 550,000 | BUY | 6 / 10 | 0.05 KM |
| Parkside Crescent, Surbiton, KT5 | £ 750,000 | BUY | 7 / 10 | 0.09 KM |
| Greenfield Avenue, Surbiton, KT5 | £ 825,000 | BUY | Unknown | 0.10 KM |
| Grand Avenue, Surbiton | £ 585,000 | BUY | 6 / 10 | 0.20 KM |
Nearby Properties
| Address | Price | Distance |
|---|---|---|
| 93 Greenfield Avenue | £ 860,000 | 0.01 KM |
| 99 Greenfield Avenue | £ 660,000 | 0.01 KM |
| 84 Greenfield Avenue | £ 535,000 | 0.01 KM |
| 70 Greenfield Avenue | £ 625,000 | 0.01 KM |
| 96 Greenfield Avenue | £ 880,000 | 0.01 KM |