John Francis says ..
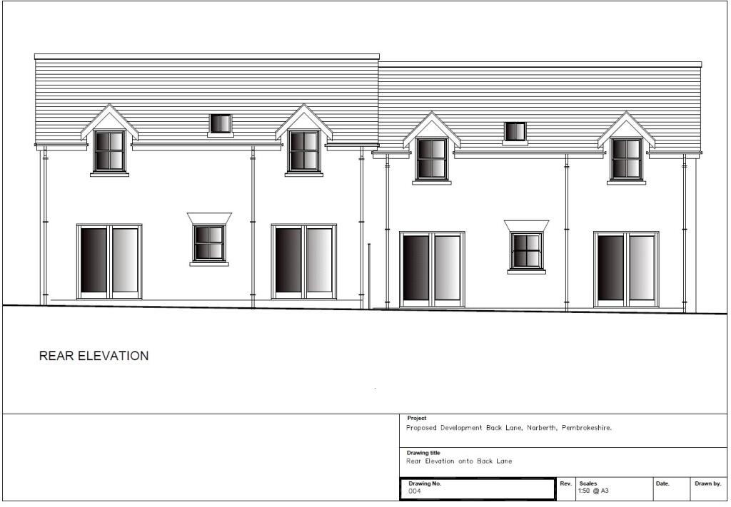
A rare and exciting opportunity to acquire a pair of Freehold plots with planning permission for the development of x2 attractive Three-Bedroom, Semi-Detached cottages, right in the centre of the thriving market town of Narberth. Perfectly positioned just a short walk from the town&rsq...
Property Oracle says ..
The property is a plot of land located in Narberth, Pembrokeshire. The location is convenient, with nearby schools and transportation links. The land itself appears to be reasonably sized, suitable for development. However, the lack of existing structures means there is no information on condition. The price of £150,000 seems relatively reasonable compared to the average house price in the area, but this is dependent on the potential value of the land for development.
Therefore, we give this property 7 / 10. *Disclaimer: This is our option and does constitute a recommendation or financial advice. Do your own research. *
- Price
- 7
- Condition
- 0
- Location
- 8
- Land
- 7
- Bedrooms
- 0
- Bathrooms
- 0
The heatmap indicates the level of crime in the area. The color of the heatmap indicates the crime severity and recency.
Metrics Year-on-Year
- Average area value
- 140,000.00 £Decreased by 43.56 %
- Average area rental value
- 807.00 £/moDecreased by 3.00 %
- Est rental Yield
- 6.92 %Increased by 72.14 %
- Crime Rate
- 299.00 %Unchanged by 0.00 %
Agent Activity
John Francis created the listing.
Nearby Schools
| Name | Type | Ofsted | Distance |
|---|---|---|---|
| Landsker Education | Welsh Establishment | 0.21 KM | |
| Narberth Cp School | Welsh Establishment | 0.22 KM | |
| Templeton C.P. School | Welsh Establishment | 2.65 KM | |
| Redhill High School | Welsh Establishment | 6.26 KM | |
| Brynconin Cp | Welsh Establishment | 7.04 KM |
Images
Nearby Streets
| Name | Average Price | Average Sqft | Distance |
|---|---|---|---|
| Church Street | £ 170,000 | 0 | 0.00 KM |
| Moorfield Road | £ 450,000 | 0 | 0.00 KM |
| The Crescent | £ 425,000 | 0 | 0.00 KM |
| Redstone Court | £ 0 | 0 | 0.00 KM |
| Mill Pond Road | £ 0 | 0 | 0.00 KM |
Nearby Transport
| Name | NLC | TLC | Distance |
|---|---|---|---|
| Narberth | 4098 | NAR | 1.76 KM |
| Clunderwen | 4070 | CUW | 4.85 KM |
| Kilgetty | 4083 | KGT | 7.96 KM |
| Saundersfoot | 4108 | SDF | 8.95 KM |
Nearby Listings
| Address | Price | Type | Score | Distance |
|---|---|---|---|---|
| Back Lane, Narberth, SA67 | £ 150,000 | BUY | 7 / 10 | 0.00 KM |
| Back Lane, Narberth, SA67 | £ 90,000 | BUY | 5 / 10 | 0.01 KM |
| Kings Court, Narberth | £ 165,000 | BUY | 6 / 10 | 0.07 KM |
| Chapelfield Gardens, Narberth, Pembrokeshire, SA67 | £ 170,000 | BUY | 6 / 10 | 0.08 KM |
| Market Square, Narberth, Pembrokeshire, SA67 | £ 95,000 | BUY | 5 / 10 | 0.09 KM |
Nearby Properties
| Address | Price | Distance |
|---|---|---|
| 14 Chapelfield Gardens | £ 105,000 | 0.07 KM |
| 11 Chapelfield Gardens | £ 90,000 | 0.07 KM |
| 17 Chapelfield Gardens | £ 157,000 | 0.07 KM |
| Ty Bach | £ 62,725 | 0.08 KM |
| 14 Market Square | £ 410,000 | 0.08 KM |