Nicholls Tyreman says ..
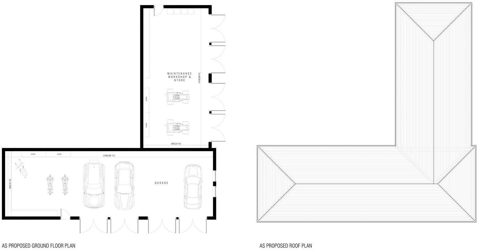
DEVELOPMENT OPPORTUNITY A superb opportunity to purchase a detached property with planning consent to demolish and construct a magnificent country house of approximately 12,000 sqft, over three floors, incorporating an extensive lower ground floor leisure facility and an additional 3,00...
Property Oracle says ..
Therefore, we give this property 7 / 10. *Disclaimer: This is our option and does constitute a recommendation or financial advice. Do your own research. *
- Price
- 6
- Condition
- 9
- Location
- 7
- Land
- 8
- Bedrooms
- 5
- Bathrooms
- 4
- Sqft (est)
- 2,743.00
The heatmap indicates the level of crime in the area. The color of the heatmap indicates the crime severity and recency.
Metrics Year-on-Year
- Average area value
- 545,000.00 £Increased by 23.83 %
- Est sale value
- 1,379,729.00 £Increased by 86.30 %
- Average area rental value
- 1,381.00 £/moDecreased by 24.49 %
- Est letting value
- 2,743.00 £/moUnchanged by 0.00 %
- Est rental Yield
- 3.04 %Decreased by 39.08 %
- Crime Rate
- 0.00 %
from 440,130.00 £
from 740,610.00 £
from 1,829.00 £/mo
from 2,743.00 £/mo
from 4.99 %
from 0.00 %
Agent Activity
Nicholls Tyreman created the listing.
Nearby Schools
| Name | Type | Ofsted | Distance |
|---|---|---|---|
| Ripley Endowed Church Of England School | Voluntary Controlled School | Requires improvement | 2.19 KM |
| Markington Church Of England Primary & Nursery School | Voluntary Controlled School | Outstanding | 3.10 KM |
| Killinghall Church Of England Primary School | Voluntary Controlled School | Good | 4.28 KM |
| Admiral Long Church Of England Primary School | Voluntary Controlled School | Requires improvement | 4.46 KM |
| Hampsthwaite Church Of England Primary School | Academy Converter | 4.64 KM |
Images
Nearby Streets
| Name | Average Price | Average Sqft | Distance |
|---|---|---|---|
| Woodbine Cottage | £ 0 | 540 | 0.00 KM |
| Dole Bank | £ 0 | 0 | 0.00 KM |
| Birthwaite Lane | £ 1,250,000 | 0 | 0.00 KM |
Nearby Transport
| Name | NLC | TLC | Distance |
|---|---|---|---|
| Harrogate | 8213 | HGT | 8.43 KM |
Nearby Listings
| Address | Price | Type | Score | Distance |
|---|---|---|---|---|
| Ripley, Harrogate | £ 3,995,000 | BUY | 7 / 10 | 0.00 KM |
| Ripley, Harrogate | £ 3,995,000 | BUY | 8 / 10 | 0.02 KM |
| Ripley, Harrogate, North Yorkshire, HG3 | £ 1,350,000 | BUY | 8 / 10 | 0.87 KM |
| Ripley, North Yorkshire, HG3 | £ 825,000 | BUY | 7 / 10 | 0.91 KM |
| Scarah Park, Ripley, Near Harrogate, North Yorkshire, HG3 | £ 275,000 | BUY | 7 / 10 | 1.27 KM |
Nearby Properties
| Address | Price | Distance |
|---|---|---|
| 3 Scarah Bank Cottages | £ 305,000 | 1.88 KM |
| 7 Scarah Bank Cottages | £ 184,000 | 1.89 KM |
| 10 Scarah Bank Cottages | £ 315,000 | 1.89 KM |
| 8 Scarah Bank Cottages | £ 260,000 | 1.89 KM |