Oakhill Avenue, Hampstead, NW3
By TK International
£ 7,500,000
Reviews
4 out of 5 stars
TK International says ..
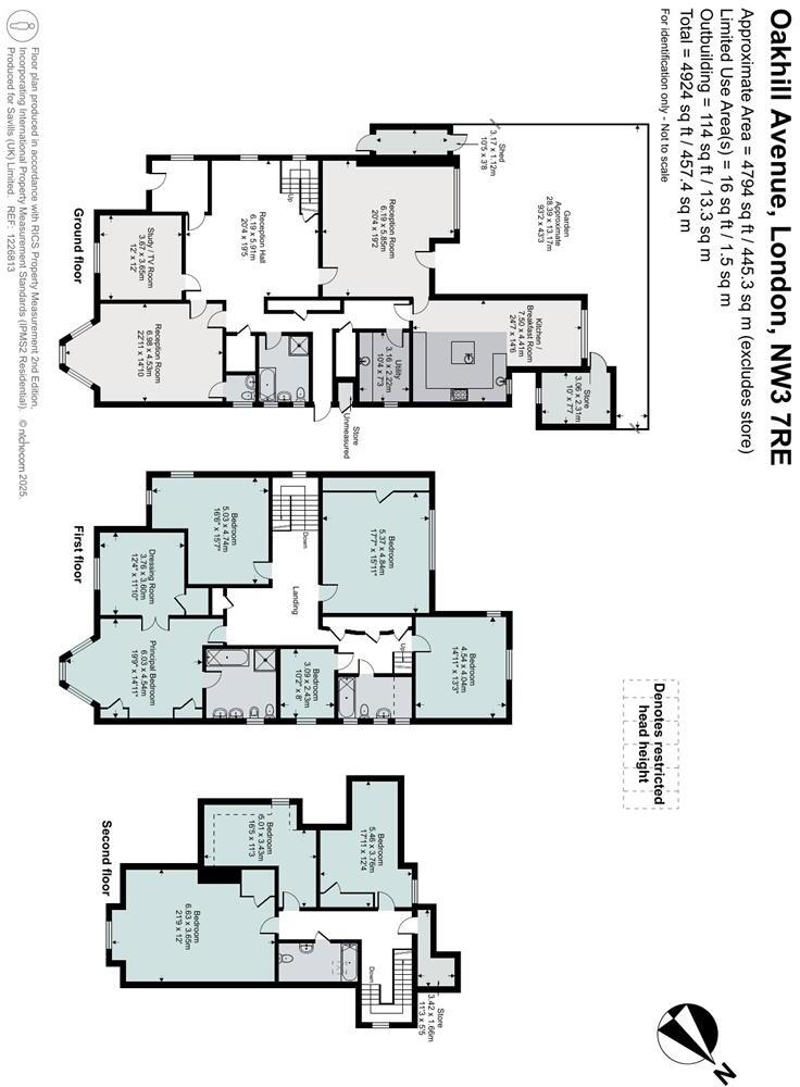
On the market for the first time in nearly forty years is this handsome, detached, 7/8 bedroom, Edwardian 'Arts and Crafts' house of some 4,794 sq ft, set back proudly up off the road on one of the most exclusive treelined residential avenues located just off of Redington Road, and thereby within...
Property Oracle says ..
This property is located in the highly desirable Hampstead area of London, known for its excellent schools, transport links, and green spaces. The house itself is a substantial family home, appearing well-maintained and boasting period features. While the exact square footage is not provided, the images suggest a spacious layout with multiple bedrooms and bathrooms. The property benefits from a sizeable garden, a significant asset in this area. Compared to other properties in the area, the list price seems relatively competitive, although further analysis of the property’s size and condition would be needed to confirm this. The proximity to excellent schools such as St. Luke’s Church of England School and Hampstead Parochial Church of England Primary School, both rated “Good” by Ofsted, adds significant value. Transport links such as Finchley Road and Frognal station are also within a reasonable distance. Overall, this property presents a compelling opportunity for a family seeking a large, well-located home in Hampstead.
Therefore, we give this property 8 / 10. *Disclaimer: This is our option and does constitute a recommendation or financial advice. Do your own research. *
- Price
- 7
- Condition
- 8
- Location
- 10
- Land
- 9
- Bedrooms
- 8
- Bathrooms
- 4
- Sqft (est)
- 1,881.40
- Lot (est)
- 4,924.00
The heatmap indicates the level of crime in the area. The color of the heatmap indicates the crime severity and recency.
Metrics Year-on-Year
- Average area value
- 2,006,818.00 £Increased by 21.53 %
- Est sale value
- 2,460,871.20 £Increased by 12.76 %
- Average area rental value
- 3,542.00 £/moIncreased by 13.31 %
- Est letting value
- 3,762.80 £/moUnchanged by 0.00 %
- Est rental Yield
- 2.12 %Decreased by 6.61 %
- Crime Rate
- 1.00 %Unchanged by 0.00 %
Agent Activity
TK International created the listing.
Nearby Schools
| Name | Type | Ofsted | Distance |
|---|---|---|---|
| St Margaret'S School | Other Independent School | 0.33 KM | |
| St Luke'S Church Of England School | Free Schools | Good | 0.76 KM |
| Emmanuel Church Of England Primary School | Voluntary Aided School | Good | 0.79 KM |
| University College School | Other Independent School | 0.80 KM | |
| Hampstead Parochial Church Of England Primary School | Voluntary Aided School | Good | 0.91 KM |
Images
Nearby Streets
| Name | Average Price | Average Sqft | Distance |
|---|---|---|---|
| Bracknell Way | £ 0 | 0 | 0.00 KM |
| West End Lane | £ 0 | 0 | 0.00 KM |
| Croft Way | £ 1,245,000 | 0 | 0.00 KM |
| Dennington Park Mansions | £ 450,000 | 0 | 0.00 KM |
| Holly Berry Lane | £ 0 | 0 | 0.00 KM |
Nearby Transport
| Name | NLC | TLC | Distance |
|---|---|---|---|
| Finchley Road And Frognal | 1445 | FNY | 0.85 KM |
| West Hampstead Thameslink | 1525 | WHP | 0.98 KM |
| West Hampstead | 1421 | WHD | 1.06 KM |
| South Hampstead | 1451 | SOH | 1.93 KM |
| Brondesbury | 1437 | BSY | 2.03 KM |
Nearby Listings
| Address | Price | Type | Score | Distance |
|---|---|---|---|---|
| Oakhill Avenue, Hampstead, NW3 | £ 7,500,000 | BUY | 8 / 10 | 0.00 KM |
| Oakhill Avenue, Hampstead, NW3 | £ 7,950,000 | BUY | 9 / 10 | 0.04 KM |
| Oakhill Avenue, London, NW3 | £ 7,750,000 | BUY | Unknown | 0.04 KM |
| Oakhill Avenue, London, NW3 | £ 7,950,000 | BUY | 8 / 10 | 0.07 KM |
| Garden Apartment, Oakhill Avenue, Hampstead, NW3 | £ 2,295,000 | BUY | 7 / 10 | 0.08 KM |
Nearby Properties
| Address | Price | Distance |
|---|---|---|
| 7 Oakhill Avenue | £ 5,080,000 | 0.05 KM |
| 1d Oakhill Avenue | £ 2,800,000 | 0.05 KM |
| 1c Oakhill Avenue | £ 3,650,000 | 0.05 KM |
| 25 Oakhill Avenue | £ 2,997,933 | 0.05 KM |
| 12 Oakhill Avenue | £ 10,200,000 | 0.05 KM |