The Gatehouse, Darlington, Durham, DL1
By Your Move
£ 90,000
Reviews
2 out of 5 stars
Your Move says ..
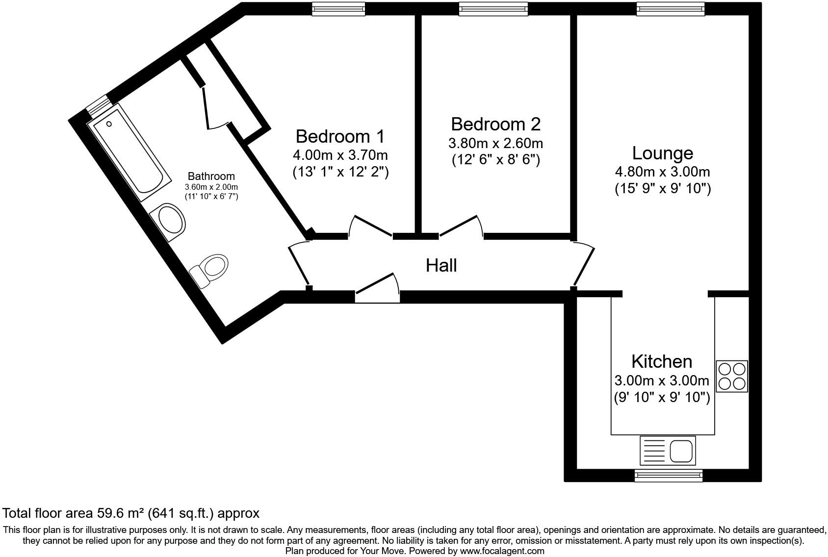
* SOLD WITH TENANT IN SITU * Offered with no onward chain is this well-presented apartment with open plan living and two good size bedrooms. Popular location with excellent local amenities, including shops, schools, and access to the A66. The apartment boasts a bright and airy large lounge/diner ...
Property Oracle says ..
This property is a two-bedroom flat located in The Gatehouse, Darlington, within the Whinfield area. The flat is conveniently situated near Whinfield Primary School which has a ‘Good’ Ofsted rating, suggesting a family-friendly neighbourhood. The photos reveal a functional, if somewhat dated, interior. The kitchen and bathroom are in reasonable condition but might benefit from modernization. A key drawback is the lack of outdoor space; the property essentially offers no garden. The absence of plot size information further emphasizes this limitation. Transportation links are adequate, with several train stations a short distance away, although not within walking distance. The list price of £90,000 appears competitive when compared to nearby similar properties, though those also lack details of square footage which makes price comparisons difficult. Overall, the property represents a reasonably priced option for buyers seeking a functional, two-bedroom flat in a convenient location, but prospective buyers should be aware of the limited outdoor space and potential need for future renovations.
Therefore, we give this property 5 / 10. *Disclaimer: This is our option and does constitute a recommendation or financial advice. Do your own research. *
- Price
- 7
- Condition
- 6
- Location
- 7
- Land
- 1
- Bedrooms
- 2
- Bathrooms
- 1
- Sqft (est)
- 641.53
The heatmap indicates the level of crime in the area. The color of the heatmap indicates the crime severity and recency.
Metrics Year-on-Year
- Average area value
- 343,750.00 £Increased by 10.06 %
- Est sale value
- 185,402.17 £Increased by 14.68 %
- Average area rental value
- 900.00 £/moDecreased by 14.61 %
- Est letting value
- 0.00 £/mo
- Est rental Yield
- 3.14 %Decreased by 22.47 %
- Crime Rate
- 4.00 %Unchanged by 0.00 %
Agent Activity
Your Move created the listing.
Nearby Schools
| Name | Type | Ofsted | Distance |
|---|---|---|---|
| Whinfield Primary School | Community School | Good | 0.61 KM |
| Red Hall Primary School | Community School | Good | 0.91 KM |
| Beaumont Hill Academy | Academy Special Converter | Good | 1.41 KM |
| Springfield Academy | Academy Converter | Requires improvement | 1.41 KM |
| Haughton Academy | Academy Converter | Requires improvement | 1.41 KM |
Images
Nearby Streets
| Name | Average Price | Average Sqft | Distance |
|---|---|---|---|
| Gatehouse Close | £ 0 | 0 | 0.00 KM |
| St David's Green | £ 0 | 0 | 0.00 KM |
| Riverside Drive | £ 0 | 0 | 0.00 KM |
| Cloverdale | £ 0 | 0 | 0.00 KM |
| Coombe Drive | £ 0 | 0 | 0.00 KM |
Nearby Transport
| Name | NLC | TLC | Distance |
|---|---|---|---|
| Darlington | 7877 | DAR | 4.32 KM |
| North Road (Darlington) | 7895 | NRD | 4.34 KM |
| Dinsdale | 7897 | DND | 6.16 KM |
| Heighington | 7887 | HEI | 9.52 KM |
Nearby Listings
| Address | Price | Type | Score | Distance |
|---|---|---|---|---|
| The Gatehouse, Darlington, Durham, DL1 | £ 90,000 | BUY | 5 / 10 | 0.00 KM |
| The Gatehouse, Darlington, DL1 | £ 110,000 | BUY | 7 / 10 | 0.00 KM |
| The Gatehouse, Darlington, DL1 | £ 100,000 | BUY | 5 / 10 | 0.00 KM |
| Gatehouse Close, Darlington | £ 235,000 | BUY | 7 / 10 | 0.04 KM |
| The Gatehouse, Darlington | £ 112,000 | BUY | Unknown | 0.07 KM |
Nearby Properties
| Address | Price | Distance |
|---|---|---|
| 2 The Gatehouse | £ 100,000 | 0.00 KM |
| 11 The Gatehouse | £ 119,000 | 0.00 KM |
| 4 The Gatehouse | £ 78,000 | 0.00 KM |
| 3 The Gatehouse | £ 90,000 | 0.00 KM |
| 17 The Gatehouse | £ 85,000 | 0.00 KM |