Kirby Road, Horsell, GU21
By Curchods Estate Agents
£ 700,000
Reviews
3 out of 5 stars
Curchods Estate Agents says ..
A superb period home of enormous warmth and character which sits in a hugely sought after location in the heart of Horsell village. Cleverly extended to provide a stunning kitchen dining room and beautifully presented throughout.
Property Oracle says ..
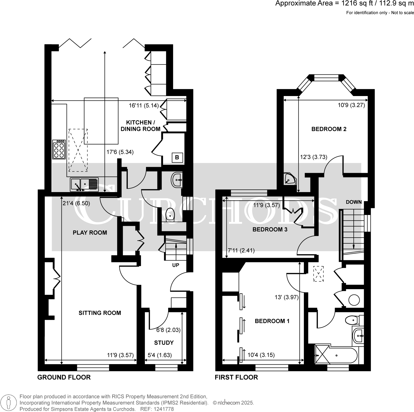
This three-bedroom property in Horsell, Woking is listed at £700,000. The property appears to be in excellent condition, having undergone recent renovations or extensions, as evidenced by the modern kitchen and bathroom. The images show a well-maintained interior and exterior, including a garden. The location in Horsell offers proximity to local amenities, including schools and Woking town centre and station, which is a positive factor. However, a definitive assessment of value requires more precise data on comparable properties in the immediate vicinity, especially considering the lack of square footage information for nearby listings. The plot size is 1,216 sqft. While the list price is above some nearby properties, the condition, size, and location could justify the higher price point, but further comparative market analysis is needed for a conclusive opinion.
Therefore, we give this property 7 / 10. *Disclaimer: This is our option and does constitute a recommendation or financial advice. Do your own research. *
- Price
- 7
- Condition
- 9
- Location
- 8
- Land
- 7
- Bedrooms
- 3
- Bathrooms
- 1
- Sqft (est)
- 1,164.50
- Lot (est)
- 1,216.00
The heatmap indicates the level of crime in the area. The color of the heatmap indicates the crime severity and recency.
Metrics Year-on-Year
- Average area value
- 661,667.00 £Decreased by 14.84 %
- Est sale value
- 904,816.50 £Increased by 45.78 %
- Average area rental value
- 2,961.00 £/moIncreased by 33.56 %
- Est letting value
- 3,493.50 £/moIncreased by 200.00 %
- Est rental Yield
- 5.37 %Increased by 57.02 %
- Crime Rate
- 1.00 %Unchanged by 0.00 %
Agent Activity
Curchods Estate Agents marked this listing as sold.
Curchods Estate Agents created the listing.
Nearby Schools
| Name | Type | Ofsted | Distance |
|---|---|---|---|
| The Horsell Village School | Academy Converter | 0.29 KM | |
| Horsell Village School & Sure Start Children'S Centre | Children's Centre | 0.31 KM | |
| Goldsworth Primary School | Academy Converter | 0.53 KM | |
| Horsell Cofe Aided Junior School | Voluntary Aided School | Good | 0.59 KM |
| North West Surrey Short Stay School | Pupil Referral Unit | Good | 0.63 KM |
Images
Nearby Streets
| Name | Average Price | Average Sqft | Distance |
|---|---|---|---|
| Langdale Close | £ 699,950 | 0 | 0.00 KM |
| Hammond Close | £ 0 | 0 | 0.00 KM |
| Julian Close | £ 0 | 0 | 0.00 KM |
| Parley Drive | £ 0 | 0 | 0.00 KM |
| Morton Road | £ 0 | 0 | 0.00 KM |
Nearby Transport
| Name | NLC | TLC | Distance |
|---|---|---|---|
| Woking | 5685 | WOK | 1.79 KM |
| Worplesdon | 5686 | WPL | 3.66 KM |
| Brookwood | 5687 | BKO | 7.18 KM |
| Longcross | 5674 | LNG | 7.58 KM |
| West Byfleet | 5684 | WBY | 7.76 KM |
Nearby Listings
| Address | Price | Type | Score | Distance |
|---|---|---|---|---|
| Kirby Road, Horsell, GU21 | £ 700,000 | BUY | 7 / 10 | 0.00 KM |
| Emmetts Close, Horsell, Surrey, GU21 | £ 585,000 | BUY | 7 / 10 | 0.06 KM |
| HORSELL | £ 650,000 | BUY | 7 / 10 | 0.10 KM |
| Abbey Road, Horsell, Surrey, GU21 | £ 600,000 | BUY | 7 / 10 | 0.13 KM |
| St. Marys Road, Horsell, Surrey, GU21 | £ 500,000 | BUY | 6 / 10 | 0.13 KM |
Nearby Properties
| Address | Price | Distance |
|---|---|---|
| Larkswood | £ 335,000 | 0.01 KM |
| 4 Kirby Road | £ 678,000 | 0.01 KM |
| 21 Kirby Road | £ 500,000 | 0.01 KM |
| 1 Kirby Road | £ 189,000 | 0.01 KM |
| 6 Kirby Road | £ 675,000 | 0.01 KM |