Parsonage Chase, Minster
By Rule & Rule Estate Agents
£ 395,000
Reviews
3 out of 5 stars
Rule & Rule Estate Agents says ..
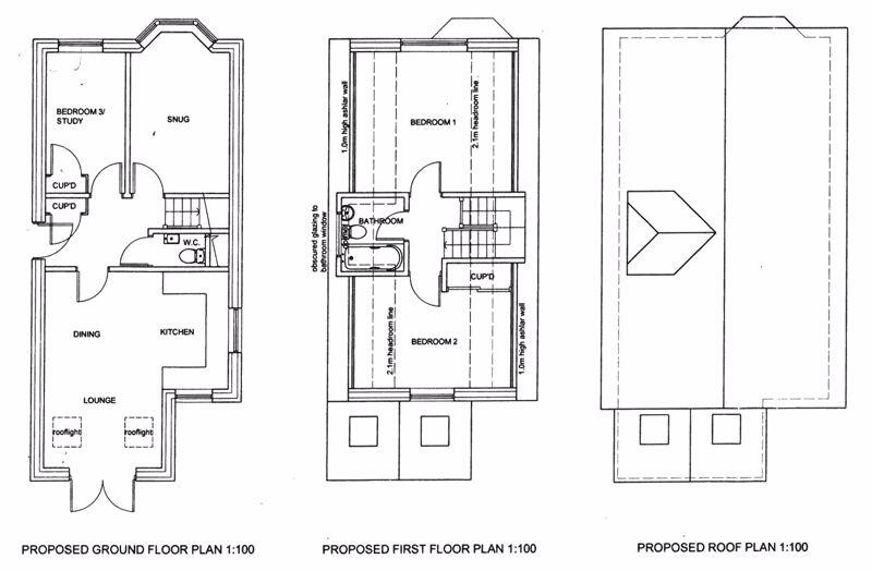
A Unique Opportunity: 1900s Semi-Detached Home with Adjacent Build PlotDiscover this charming three-bedroom semi-detached home, dating back to the 1900s, offering a rare chance to own both a lovely property and an attached build plot measuring 7m x 29m with planning permission granted for a thre...
Property Oracle says ..
This property is a 3-bedroom semi-detached house located in Minster, Kent. The property benefits from a good-sized garden, and is within reasonable proximity to local amenities and transport links. While the property shows signs of age, it appears to be well-maintained and in good condition. The list price is slightly above the average price per square foot for the area, but considering the property’s size, condition, and location, it may represent fair value.
Therefore, we give this property 7 / 10. *Disclaimer: This is our option and does constitute a recommendation or financial advice. Do your own research. *
- Price
- 7
- Condition
- 8
- Location
- 7
- Land
- 7
- Bedrooms
- 3
- Bathrooms
- 1
- Sqft (est)
- 888.02
The heatmap indicates the level of crime in the area. The color of the heatmap indicates the crime severity and recency.
Metrics Year-on-Year
- Average area value
- 344,875.00 £Increased by 14.40 %
- Est sale value
- 362,312.16 £Increased by 29.52 %
- Average area rental value
- 1,225.00 £/moIncreased by 11.36 %
- Est letting value
- 888.02 £/moUnchanged by 0.00 %
- Est rental Yield
- 4.26 %Decreased by 2.74 %
- Crime Rate
- 9.00 %Unchanged by 0.00 %
Agent Activity
Rule & Rule Estate Agents created the listing.
Nearby Schools
| Name | Type | Ofsted | Distance |
|---|---|---|---|
| Oasis Academy Isle Of Sheppey | Academy Sponsor Led | Requires improvement | 0.41 KM |
| Halfway Houses Primary School | Academy Converter | Good | 1.15 KM |
| Elliott Park School | Other Independent School | Good | 1.27 KM |
| Thistle Hill Academy | Academy Sponsor Led | Requires improvement | 1.50 KM |
| Minster In Sheppey Primary School | Academy Converter | Good | 2.46 KM |
Images
Nearby Streets
| Name | Average Price | Average Sqft | Distance |
|---|---|---|---|
| Clover Close | £ 0 | 0 | 0.00 KM |
| Scrapsgate | £ 366,667 | 0 | 0.00 KM |
| Johnson Way | £ 0 | 0 | 0.00 KM |
| Lilac Road | £ 270,000 | 0 | 0.00 KM |
| Myrtle Road | £ 0 | 0 | 0.00 KM |
Nearby Transport
| Name | NLC | TLC | Distance |
|---|---|---|---|
| Sheerness-On-Sea | 5184 | SSS | 4.09 KM |
| Queenborough | 5176 | QBR | 4.12 KM |
| Swale | 5249 | SWL | 5.39 KM |
| Kemsley | 5205 | KML | 8.36 KM |
| Teynham | 5193 | TEY | 9.62 KM |
Nearby Listings
| Address | Price | Type | Score | Distance |
|---|---|---|---|---|
| Parsonage Chase, Minster | £ 395,000 | BUY | 7 / 10 | 0.00 KM |
| Parsonage Chase, Minster | £ 290,000 | BUY | 7 / 10 | 0.00 KM |
| 6 Old Bakery, Parsonage Chase, Minster on Sea, Sheerness, Kent, ME12 3JT | £ 110,000 | BUY | 5 / 10 | 0.03 KM |
| Parsonage Chase, Minster On Sea, Sheerness | £ 315,000 | BUY | 6 / 10 | 0.07 KM |
| Parsonage Chase, Minster on Sea, Sheerness, Kent, ME12 | £ 280,000 | BUY | 6 / 10 | 0.10 KM |
Nearby Properties
| Address | Price | Distance |
|---|---|---|
| 51a Parsonage Chase | £ 217,500 | 0.01 KM |
| 44 Parsonage Chase | £ 276,995 | 0.01 KM |
| Bevian | £ 208,500 | 0.01 KM |
| 66 Parsonage Chase | £ 170,000 | 0.01 KM |
| 53 Parsonage Chase | £ 200,000 | 0.01 KM |