Hunters says ..
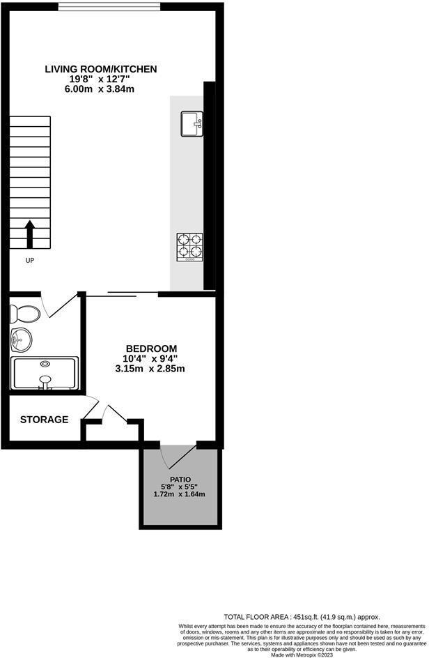
A stylish one-bedroom lower ground floor apartment, offered chain free and well located on Balls Pond Road, within the borough of Islington. Arranged over approx. 451 sq. ft, the property offers a well-designed layout with a bright open-plan kitchen/reception featuring modern cabinetry a...
Property Oracle says ..
Therefore, we give this property 6 / 10. *Disclaimer: This is our option and does constitute a recommendation or financial advice. Do your own research. *
- Price
- 8
- Condition
- 9
- Location
- 7
- Land
- 1
- Bedrooms
- 1
- Bathrooms
- 1
- Sqft (est)
- 451.01
The heatmap indicates the level of crime in the area. The color of the heatmap indicates the crime severity and recency.
Metrics Year-on-Year
- Average area value
- 965,000.00 £Increased by 5.32 %
- Est sale value
- 1,526,668.85 £Increased by 234.49 %
- Average area rental value
- 3,590.00 £/moIncreased by 20.67 %
- Est letting value
- 5,412.12 £/moIncreased by 300.00 %
- Est rental Yield
- 4.46 %Increased by 14.36 %
- Crime Rate
- 5.00 %Unchanged by 0.00 %
from 916,287.00 £
from 456,422.12 £
from 2,975.00 £/mo
from 1,353.03 £/mo
from 3.90 %
from 5.00 %
Agent Activity
Hunters created the listing.
Nearby Schools
| Name | Type | Ofsted | Distance |
|---|---|---|---|
| Minik Kardes Satellite Children'S Centre | Children's Centre Linked Site | 0.02 KM | |
| De Beauvoir Primary School | Community School | Requires improvement | 0.15 KM |
| St Jude And St Paul'S Cofe Primary School | Voluntary Aided School | Good | 0.19 KM |
| Our Lady And St Joseph Catholic Primary School | Voluntary Aided School | Outstanding | 0.27 KM |
| The Children'S House Upper School | Other Independent School | 0.36 KM |
Images
Nearby Streets
| Name | Average Price | Average Sqft | Distance |
|---|---|---|---|
| Kingsbury Terrace | £ 790,000 | 0 | 0.00 KM |
| Balls Pond Road | £ 0 | 0 | 0.00 KM |
| Stanborough Passage | £ 0 | 0 | 0.00 KM |
| Hartwell Street | £ 425,000 | 0 | 0.00 KM |
| Birkbeck Mews | £ 0 | 0 | 0.00 KM |
Nearby Transport
| Name | NLC | TLC | Distance |
|---|---|---|---|
| Dalston Junction | 1443 | DLJ | 0.36 KM |
| Dalston Kingsland | 1429 | DLK | 0.37 KM |
| Haggerston | 1022 | HGG | 0.89 KM |
| Canonbury | 1441 | CNN | 1.55 KM |
| Hoxton | 1023 | HOX | 1.67 KM |
Nearby Listings
| Address | Price | Type | Score | Distance |
|---|---|---|---|---|
| Balls Pond Road, London N1 | £ 425,000 | BUY | 6 / 10 | 0.00 KM |
| Balls Pond Road, London, N1 | £ 700,000 | BUY | 5 / 10 | 0.02 KM |
| Balls Pond Road, London, N1 | £ 600,000 | BUY | 7 / 10 | 0.04 KM |
| Balls Pond Road, Hackney, London, N1 | £ 800,000 | BUY | Unknown | 0.04 KM |
| Balls Pond Road, Islington, London, N1 | £ 769,000 | BUY | Unknown | 0.04 KM |
Nearby Properties
| Address | Price | Distance |
|---|---|---|
| 81a Balls Pond Road | £ 337,500 | 0.03 KM |
| 75 Balls Pond Road | £ 960,000 | 0.03 KM |
| 45 Balls Pond Road | £ 580,000 | 0.03 KM |
| 37 Balls Pond Road | £ 577,500 | 0.03 KM |
| 67 Balls Pond Road | £ 640,000 | 0.03 KM |