Gregory Street, Ilkeston, Derbyshire, DE7
By Your Move
£ 200,000
Reviews
3 out of 5 stars
Your Move says ..
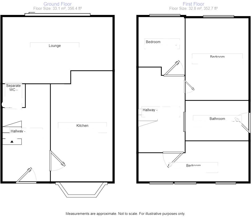
Prime town centre, Ilkeston location ! Open plan fitted dining kitchen with walk in bay window. Lounge to the rear with patio doors to block paved patio and garden. White three piece bathroom suite and three well proportioned bedrooms. Walking distance to shops, schools, parks and Train Stat...
Property Oracle says ..
This three-bedroom property in Ilkeston, Derbyshire, is listed at £200,000. The property appears to have undergone recent renovations, as evidenced by the modern kitchen and bathroom fixtures shown in the photographs. The overall condition is good. While the plot size is not specified, the property does include a small rear garden visible in the photos. The location is in Ilkeston town centre, offering proximity to shops, schools, and Ilkeston train station. This is a positive aspect for potential buyers. However, the average house price in the area is significantly higher (£320,049), and the average price per square foot is also greater (£327.00) than what this property is listed at. Considering the average price per sqft in the area, the list price may be considered low. More information on the plot size would be beneficial in providing a more comprehensive analysis.
Therefore, we give this property 6 / 10. *Disclaimer: This is our option and does constitute a recommendation or financial advice. Do your own research. *
- Price
- 6
- Condition
- 8
- Location
- 7
- Land
- 4
- Bedrooms
- 3
- Bathrooms
- 1
- Sqft (est)
- 709.34
The heatmap indicates the level of crime in the area. The color of the heatmap indicates the crime severity and recency.
Metrics Year-on-Year
- Average area value
- 415,495.00 £Increased by 26.58 %
- Est sale value
- 279,479.96 £Increased by 3.14 %
- Average area rental value
- 1,128.00 £/moDecreased by 9.62 %
- Est letting value
- 709.34 £/moUnchanged by 0.00 %
- Est rental Yield
- 3.26 %Decreased by 28.51 %
- Crime Rate
- 19.00 %Unchanged by 0.00 %
Agent Activity
Your Move created the listing.
Nearby Schools
| Name | Type | Ofsted | Distance |
|---|---|---|---|
| Chaucer Junior School | Academy Converter | 0.55 KM | |
| Chaucer Infant School | Academy Converter | 0.59 KM | |
| Ormiston Ilkeston Enterprise Academy | Academy Sponsor Led | Requires improvement | 0.69 KM |
| St Thomas Catholic Voluntary Academy | Academy Converter | 0.93 KM | |
| Charlotte Nursery And Infant School | Community School | Outstanding | 1.03 KM |
Images
Nearby Streets
| Name | Average Price | Average Sqft | Distance |
|---|---|---|---|
| Chalons Way | £ 210,000 | 0 | 0.00 KM |
| Queen's Drive | £ 220,000 | 0 | 0.00 KM |
| Chapel Street | £ 0 | 0 | 0.00 KM |
| Millership Way | £ 0 | 0 | 0.00 KM |
| Cotmanhay Road | £ 325,000 | 0 | 0.00 KM |
Nearby Transport
| Name | NLC | TLC | Distance |
|---|---|---|---|
| Ilkeston | 7783 | ILN | 1.79 KM |
| Langley Mill | 1761 | LGM | 5.55 KM |
Nearby Listings
| Address | Price | Type | Score | Distance |
|---|---|---|---|---|
| Gregory Street, Ilkeston, Derbyshire, DE7 | £ 200,000 | BUY | 6 / 10 | 0.00 KM |
| Gregory Street, Ilkeston | £ 240,000 | BUY | 6 / 10 | 0.04 KM |
| GREGORY STREET, ILKESTON, DERBYSHIRE, Derbyshire, DE7 | £ 150,000 | BUY | 5 / 10 | 0.04 KM |
| Gregory Street, Ilkeston | £ 245,000 | BUY | 7 / 10 | 0.04 KM |
| Gregory Street, Ilkeston, Derbyshire | £ 234,500 | BUY | 7 / 10 | 0.06 KM |
Nearby Properties
| Address | Price | Distance |
|---|---|---|
| 13 Bath Street | £ 80,000 | 0.09 KM |
| 2 Gregory Street | £ 130,000 | 0.09 KM |
| 12 Gregory Street | £ 200,000 | 0.09 KM |
| 21 Gregory Street | £ 123,000 | 0.09 KM |
| 20 Gregory Street | £ 107,500 | 0.09 KM |