North Quay, Discovery Wharf, PL4
By Atwell Martin
£ 350,000
Reviews
4 out of 5 stars
Atwell Martin says ..
Luxury waterside living in a 2-bed apartment with en-suite, open plan living, and stunning views of Sutton Harbour. Access to on-site leisure facilities and secure underground parking. Ideal for those seeking a vibrant lifestyle by the coast in Plymouth.
Property Oracle says ..
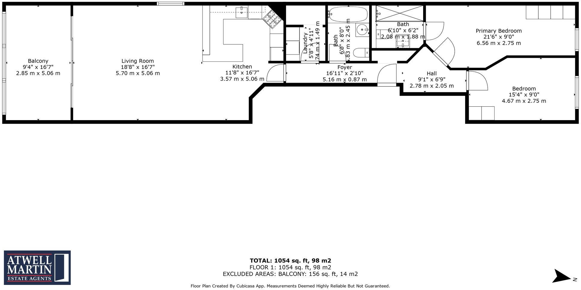
The property is a 2 bedroom, 2 bathroom apartment located at North Quay, Discovery Wharf, Plymouth, PL4 0AD. It benefits from a large balcony overlooking the marina. The apartment appears to be in excellent condition. The photos show a modern, well-maintained interior with contemporary fixtures and fittings. There is no evidence of wear and tear or the need for renovation. While the exact square footage isn’t provided, the plot size is 1,054 sqft. The property includes a sizable balcony, offering outdoor space. Considering the average price of similar properties in the area is £244,978 and the average price per sqft is £312, the list price of £350,000 appears slightly high, but not unreasonable given the property’s apparent excellent condition and desirable waterfront location. The location is within easy reach of Plymouth city centre and benefits from excellent transport links via the nearby train station. Several schools are also within close proximity. The proximity to the marina adds to the desirability of the property.
Therefore, we give this property 8 / 10. *Disclaimer: This is our option and does constitute a recommendation or financial advice. Do your own research. *
- Price
- 7
- Condition
- 10
- Location
- 9
- Land
- 7
- Bedrooms
- 2
- Bathrooms
- 2
- Lot (est)
- 1,054.00
The heatmap indicates the level of crime in the area. The color of the heatmap indicates the crime severity and recency.
Metrics Year-on-Year
- Average area value
- 219,909.00 £Decreased by 3.89 %
- Average area rental value
- 987.00 £/moIncreased by 16.53 %
- Est rental Yield
- 5.39 %Increased by 21.40 %
- Crime Rate
- 12.00 %Unchanged by 0.00 %
Agent Activity
Atwell Martin created the listing.
Nearby Schools
| Name | Type | Ofsted | Distance |
|---|---|---|---|
| Ace Schools Plymouth | Academy Alternative Provision Converter | Good | 0.20 KM |
| Holy Cross Catholic Primary School | Academy Converter | 0.32 KM | |
| Plymouth College Of Art | Higher Education Institutions | Good | 0.49 KM |
| Mount Street Primary School | Academy Sponsor Led | 0.55 KM | |
| University Of Plymouth | Higher Education Institutions | 0.71 KM |
Images
Nearby Streets
| Name | Average Price | Average Sqft | Distance |
|---|---|---|---|
| Hick's Lane | £ 0 | 0 | 0.00 KM |
| Parade Ope | £ 100,000 | 0 | 0.00 KM |
| Friary Retail Park | £ 180,000 | 0 | 0.00 KM |
| Charles Street | £ 0 | 0 | 0.00 KM |
| Tavistock Place | £ 0 | 0 | 0.00 KM |
Nearby Transport
| Name | NLC | TLC | Distance |
|---|---|---|---|
| Plymouth | 3580 | PLY | 1.30 KM |
| Devonport | 3579 | DPT | 4.13 KM |
| Dockyard (Devonport) | 3588 | DOC | 4.79 KM |
| Keyham | 3571 | KEY | 5.46 KM |
| St Budeaux Ferry Road | 3590 | SBF | 6.76 KM |
Nearby Listings
| Address | Price | Type | Score | Distance |
|---|---|---|---|---|
| North Quay, Discovery Wharf, PL4 | £ 350,000 | BUY | 8 / 10 | 0.00 KM |
| Discovery Wharf, Plymouth, PL4 | £ 150,000 | BUY | 7 / 10 | 0.01 KM |
| Hawkers Avenue, Harbourside Court, PL4 | £ 275,000 | BUY | 5 / 10 | 0.05 KM |
| Barbican, Plymouth | £ 260,000 | BUY | 6 / 10 | 0.05 KM |
| Hawkers Avenue,Plymouth,PL4 0QT | £ 230,000 | BUY | 6 / 10 | 0.05 KM |
Nearby Properties
| Address | Price | Distance |
|---|---|---|
| 96c Vauxhall Street | £ 110,000 | 0.16 KM |
| 96e Vauxhall Street | £ 114,000 | 0.16 KM |
| 96f Vauxhall Street | £ 93,500 | 0.16 KM |
| 96g Vauxhall Street | £ 114,000 | 0.16 KM |
| 96a Vauxhall Street | £ 118,250 | 0.16 KM |