An outstanding range of exclusive barn conversations
Hinchliffe Holmes logo

An outstanding range of exclusive barn conversations

By Hinchliffe Holmes

£ 1,050,000

Reviews

3 out of 5 stars

Hinchliffe Holmes says ..

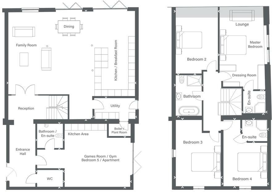
Located in the heart of the idyllic Cheshire Countryside an outstanding range of barn conversations positioned within a quiet, exclusive development with high quality specifications, character features and large, contemporary open plan living accommodation throughout. Large private landscaped ga...

Property Oracle says ..

This property is a new build barn conversion located in Bunbury, Cheshire. The marketing materials showcase a contemporary and stylish property with a high-quality finish, offering modern open-plan living. The property features five bedrooms and four bathrooms, suggesting ample space for a family. The inclusion of a private landscaped garden and a substantial double car garage adds to the overall appeal. The location in Bunbury benefits from its proximity to several well-regarded schools, including the outstanding Tarporley High School. While precise transportation details are lacking, the location offers a relatively quiet and rural setting within easy reach of Tarporley. The price, while substantial, seems consistent with other high-end properties in the area and reflects the property’s design and finish. Overall, this property represents a desirable and attractive option for buyers seeking modern luxury living in a picturesque countryside setting.

Therefore, we give this property 7 / 10. *Disclaimer: This is our option and does constitute a recommendation or financial advice. Do your own research. *

Price
7
Condition
9
Location
7
Land
6
Bedrooms
5
Bathrooms
4
Sqft (est)
2,100.00

The heatmap indicates the level of crime in the area. The color of the heatmap indicates the crime severity and recency.

Metrics Year-on-Year

Average area value
486,321.00 £
Decreased by 11.71 %
from 550,805.00 £
Est sale value
760,200.00 £
Decreased by 2.95 %
from 783,300.00 £
Average area rental value
1,340.00 £/mo
Decreased by 8.91 %
from 1,471.00 £/mo
Est letting value
0.00 £/mo
from 0.00 £/mo
Est rental Yield
3.31 %
Increased by 3.44 %
from 3.20 %
Crime Rate
65.00 %
Unchanged by 0.00 %
from 65.00 %

Agent Activity

  • Hinchliffe Holmes created the listing.

Nearby Schools

NameTypeOfstedDistance
Calveley Primary AcademyAcademy ConverterGood2.89 KM
Bunbury Aldersey Cofe Primary SchoolAcademy ConverterGood4.86 KM
Eaton Primary SchoolAcademy Sponsor Led5.05 KM
Tarporley High School And Sixth Form CollegeAcademy ConverterOutstanding6.54 KM
Tarporley Cofe Primary SchoolVoluntary Controlled SchoolGood6.84 KM

Images

Haycroft Four - 001.jpg Haycroft Four - 002.jpg Haycroft Four - 003.jpg Haycroft Four - 005.jpg Site Plan.jpg Haycroft Barns.jpg Haycroft - Calveley.jpg Haycroft Four - 004.jpg

Nearby Listings

AddressPriceTypeScoreDistance
An outstanding range of exclusive barn conversations £ 1,050,000BUY7 / 100.00 KM
An outstanding range of exclusive barn conversations £ 750,000BUY6 / 100.00 KM
An outstanding range of exclusive barn conversations £ 950,000BUY6 / 100.00 KM
An outstanding range of exclusive barn conversations £ 795,000BUYUnknown0.00 KM
Ettley Grove, Calveley, CW6 £ 850,000BUYUnknown0.03 KM

Nearby Properties

AddressPriceDistance
6 The Chantry £ 330,0000.23 KM
15 The Chantry £ 335,0000.23 KM
9 The Chantry £ 313,0000.23 KM
1 The Chantry £ 303,5000.23 KM
12 The Chantry £ 445,0000.23 KM