Chancellors says ..
Located within 0.9 miles of Bromyard town centre, is this well presented three double bedroom end of terrace property offering private driveway parking and private rear gardens.
Property Oracle says ..
This three-bedroom end-of-terrace house in Bromyard, Herefordshire, presents a well-maintained and updated interior based on available images, with a modern kitchen and bathrooms. The property boasts a garden, although its size appears modest. The location in Bromyard offers access to local amenities and is convenient for families due to nearby well-regarded schools. Whilst precise transportation links weren’t detailed, its position within a town centre suggests sufficient access to services and local transport options. The pricing seems reasonable given the current market trends in Bromyard, though further property-specific detail would aid a complete valuation. The property is appealing and may be suitable for families or those seeking a well-presented home in a desirable town setting. The lack of information regarding the plot size and nearby transport options inhibits a more detailed analysis.
Therefore, we give this property 6 / 10. *Disclaimer: This is our option and does constitute a recommendation or financial advice. Do your own research. *
- Price
- 7
- Condition
- 7
- Location
- 7
- Land
- 4
- Bedrooms
- 3
- Bathrooms
- 2
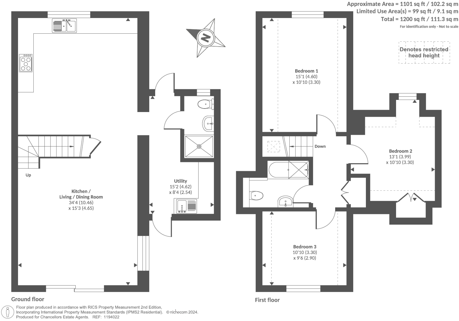
- Sqft (est)
- 1,200.00
The heatmap indicates the level of crime in the area. The color of the heatmap indicates the crime severity and recency.
Metrics Year-on-Year
- Average area value
- 225,619.00 £Decreased by 6.60 %
- Est sale value
- 260,400.00 £Decreased by 18.73 %
- Average area rental value
- 850.00 £/moDecreased by 4.92 %
- Est letting value
- 0.00 £/mo
- Est rental Yield
- 4.52 %Increased by 1.80 %
- Crime Rate
- 18.00 %Unchanged by 0.00 %
Agent Activity
Chancellors marked this listing as sold.
Chancellors created the listing.
Nearby Schools
| Name | Type | Ofsted | Distance |
|---|---|---|---|
| St Peter'S Primary School | Foundation School | Good | 0.26 KM |
| Queen Elizabeth High School | Academy Converter | Good | 0.38 KM |
| H.O.P.E Children'S Centre, Bromyard | Children's Centre | 0.66 KM | |
| Rowden House School | Other Independent Special School | Good | 2.51 KM |
| Brockhampton Primary School | Academy Converter | Good | 5.02 KM |
Images
Nearby Streets
| Name | Average Price | Average Sqft | Distance |
|---|---|---|---|
| Apple Tree Close | £ 0 | 0 | 0.00 KM |
| Pannier's Lane | £ 0 | 0 | 0.00 KM |
| Upper Hardwick Lane | £ 180,000 | 0 | 0.00 KM |
| Willow Close | £ 0 | 0 | 0.00 KM |
| Nodens Lane | £ 0 | 0 | 0.00 KM |
Nearby Listings
| Address | Price | Type | Score | Distance |
|---|---|---|---|---|
| Lower Thorn, Bromyard | £ 315,000 | BUY | 6 / 10 | 0.11 KM |
| Lower Thorn, Bromyard, Herefordshire, HR7 4AZ | £ 550,000 | BUY | Unknown | 0.11 KM |
| 20 Apple Tree Close, Winslow Road, Bromyard, Herefordshire | £ 415,000 | BUY | 7 / 10 | 0.15 KM |
| Apple Tree Close, Bromyard | £ 259,950 | BUY | 7 / 10 | 0.15 KM |
| Apple Tree Close, Bromyard | £ 425,000 | BUY | 7 / 10 | 0.17 KM |
Nearby Properties
| Address | Price | Distance |
|---|---|---|
| 30 Lower Thorn | £ 260,000 | 0.04 KM |
| 11 Lower Thorn | £ 240,000 | 0.04 KM |
| 54 Lower Thorn | £ 136,000 | 0.04 KM |
| 8 Lower Thorn | £ 237,500 | 0.04 KM |
| 1 Lower Thorn | £ 166,500 | 0.04 KM |