JO
Douglas Avenue, Bold, St Helens
By John Brown Estate Agents
£ 1,000,000
Reviews
3 out of 5 stars
John Brown Estate Agents says ..
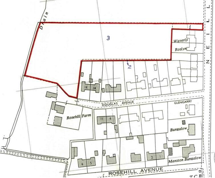
We are pleased to offer for sale this plot of land with a view for a residential development subject to full planning permission being granted but unconditional offers would also be considered . The site is approximately 0.9 hectares (ha) in size and is now considered to be ‘white land’ with the ...
Property Oracle says ..
Therefore, we give this property 6 / 10. *Disclaimer: This is our option and does constitute a recommendation or financial advice. Do your own research. *
- Price
- 4
- Condition
- 0
- Location
- 7
- Land
- 7
- Bedrooms
- 4
- Bathrooms
- 1
The heatmap indicates the level of crime in the area. The color of the heatmap indicates the crime severity and recency.
Metrics Year-on-Year
- Average area value
- 543,800.00 £Increased by 17.00 %
- Average area rental value
- 1,669.00 £/moDecreased by 26.99 %
- Est rental Yield
- 3.68 %Decreased by 37.63 %
- Crime Rate
- 6.00 %Unchanged by 0.00 %
from 464,776.00 £
from 2,286.00 £/mo
from 5.90 %
from 6.00 %
Agent Activity
John Brown Estate Agents created the listing.
Nearby Schools
| Name | Type | Ofsted | Distance |
|---|---|---|---|
| Sutton Children'S Centre | Children's Centre Linked Site | 2.39 KM | |
| Sutton Oak Cofe Primary School | Voluntary Controlled School | Good | 2.46 KM |
| Holy Spirit Catholic Primary School | Voluntary Aided School | Good | 2.49 KM |
| St Cuthbert'S Catholic High School | Voluntary Aided School | Good | 2.51 KM |
| St Anne'S Catholic Primary School | Voluntary Aided School | Requires improvement | 2.68 KM |
Images
Nearby Streets
| Name | Average Price | Average Sqft | Distance |
|---|---|---|---|
| Rosehill Avenue | £ 0 | 0 | 0.00 KM |
| Celandine Way | £ 345,000 | 0 | 0.00 KM |
| Edith Street | £ 0 | 0 | 0.00 KM |
| Leonard Street | £ 0 | 0 | 0.00 KM |
| Assam Close | £ 0 | 0 | 0.00 KM |
Nearby Transport
| Name | NLC | TLC | Distance |
|---|---|---|---|
| St Helens Junction | 2340 | SHJ | 1.87 KM |
| Lea Green | 2339 | LEG | 4.49 KM |
| Sankey For Penketh | 2388 | SNK | 5.45 KM |
| Earlestown | 2292 | ERL | 5.78 KM |
| St Helens Central | 2341 | SNH | 5.80 KM |
Nearby Listings
| Address | Price | Type | Score | Distance |
|---|---|---|---|---|
| Douglas Avenue, Bold, St Helens | £ 1,000,000 | BUY | 6 / 10 | 0.00 KM |
| Douglas Avenue, Bold, St.Helens, WA9 4SZ | £ 285,000 | BUY | 6 / 10 | 0.00 KM |
| Rose Hill Avenue, Bold, WA9 | £ 320,000 | BUY | 8 / 10 | 0.12 KM |
| Neills Road, Bold, WA9 | £ 245,000 | BUY | 6 / 10 | 0.13 KM |
| Neills Road, Bold, WA9 | £ 250,000 | BUY | Unknown | 0.16 KM |
Nearby Properties
| Address | Price | Distance |
|---|---|---|
| 3 Douglas Avenue | £ 193,000 | 0.02 KM |
| 2a Douglas Avenue | £ 210,000 | 0.02 KM |
| 5 Celandine Way | £ 139,950 | 0.53 KM |
| 1 Celandine Way | £ 220,000 | 0.53 KM |
| 27 Celandine Way | £ 218,000 | 0.53 KM |