MO
Exmoor Close, Pensby, Wirral
By Move Residential
£ 260,000
Reviews
3 out of 5 stars
Move Residential says ..
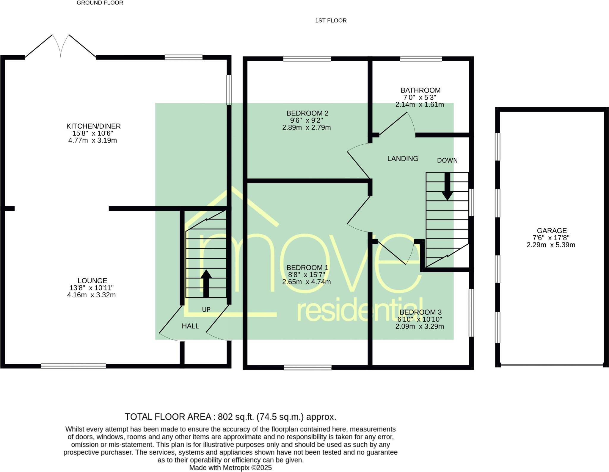
NEW TO THE MARKET - NO ONWARD CHAIN This impressive, fully renovated three bedroom semi detached property is situated on a generous corner plot in the highly sought after location of Pensby. Tastefully updated throughout, the home offers a perfect blend of modern living and traditional comfort...
Property Oracle says ..
Therefore, we give this property 7 / 10. *Disclaimer: This is our option and does constitute a recommendation or financial advice. Do your own research. *
- Price
- 7
- Condition
- 8
- Location
- 7
- Land
- 6
- Bedrooms
- 3
- Bathrooms
- 1
- Sqft (est)
- 802.00
The heatmap indicates the level of crime in the area. The color of the heatmap indicates the crime severity and recency.
Metrics Year-on-Year
- Average area value
- 266,111.00 £Decreased by 9.63 %
- Est sale value
- 262,254.00 £Increased by 28.74 %
- Average area rental value
- 1,200.00 £/moIncreased by 5.91 %
- Est letting value
- 802.00 £/mo
- Est rental Yield
- 5.41 %Increased by 17.10 %
- Crime Rate
- 7.00 %Unchanged by 0.00 %
from 294,467.00 £
from 203,708.00 £
from 1,133.00 £/mo
from 0.00 £/mo
from 4.62 %
from 7.00 %
Agent Activity
Move Residential created the listing.
Nearby Schools
| Name | Type | Ofsted | Distance |
|---|---|---|---|
| South And West Hub - Pensby Children'S Centre | Children's Centre | 0.90 KM | |
| Ladymount Catholic Primary School | Voluntary Aided School | Good | 1.14 KM |
| Irby Primary School | Community School | Outstanding | 1.17 KM |
| Pensby Primary School | Community School | Good | 1.19 KM |
| Thingwall Primary School | Community School | Good | 1.27 KM |
Images
Nearby Streets
| Name | Average Price | Average Sqft | Distance |
|---|---|---|---|
| Parkway | £ 0 | 0 | 0.00 KM |
| Devonshire Road | £ 0 | 0 | 0.00 KM |
| Sunningdale Drive | £ 0 | 0 | 0.00 KM |
| Quarry Lane | £ 0 | 0 | 0.00 KM |
| Foothpath 45 | £ 160,000 | 0 | 0.00 KM |
Nearby Transport
| Name | NLC | TLC | Distance |
|---|---|---|---|
| Heswall | 2138 | HSW | 4.10 KM |
| Upton (Merseyside) | 2141 | UPT | 4.41 KM |
| Moreton (Merseyside) | 2151 | MRT | 6.26 KM |
| Leasowe | 2237 | LSW | 6.27 KM |
| Bidston | 2136 | BID | 6.95 KM |
Nearby Listings
| Address | Price | Type | Score | Distance |
|---|---|---|---|---|
| Exmoor Close, Pensby, Wirral | £ 260,000 | BUY | 7 / 10 | 0.00 KM |
| Exmoor Close, Pensby, Wirral | £ 250,000 | BUY | 7 / 10 | 0.00 KM |
| Exmoor Close, Pensby, Wirral, CH61 | £ 250,000 | BUY | 7 / 10 | 0.00 KM |
| Exmoor Close, Pensby, Wirral | £ 240,000 | BUY | 7 / 10 | 0.06 KM |
| Marlston Avenue, Irby, Wirral | £ 300,000 | BUY | Unknown | 0.08 KM |
Nearby Properties
| Address | Price | Distance |
|---|---|---|
| 32 Exmoor Close | £ 129,500 | 0.01 KM |
| 18 Exmoor Close | £ 162,000 | 0.01 KM |
| 6 Exmoor Close | £ 145,000 | 0.01 KM |
| 34 Exmoor Close | £ 215,000 | 0.01 KM |
| 5 Exmoor Close | £ 147,500 | 0.01 KM |