Henry Adams says ..
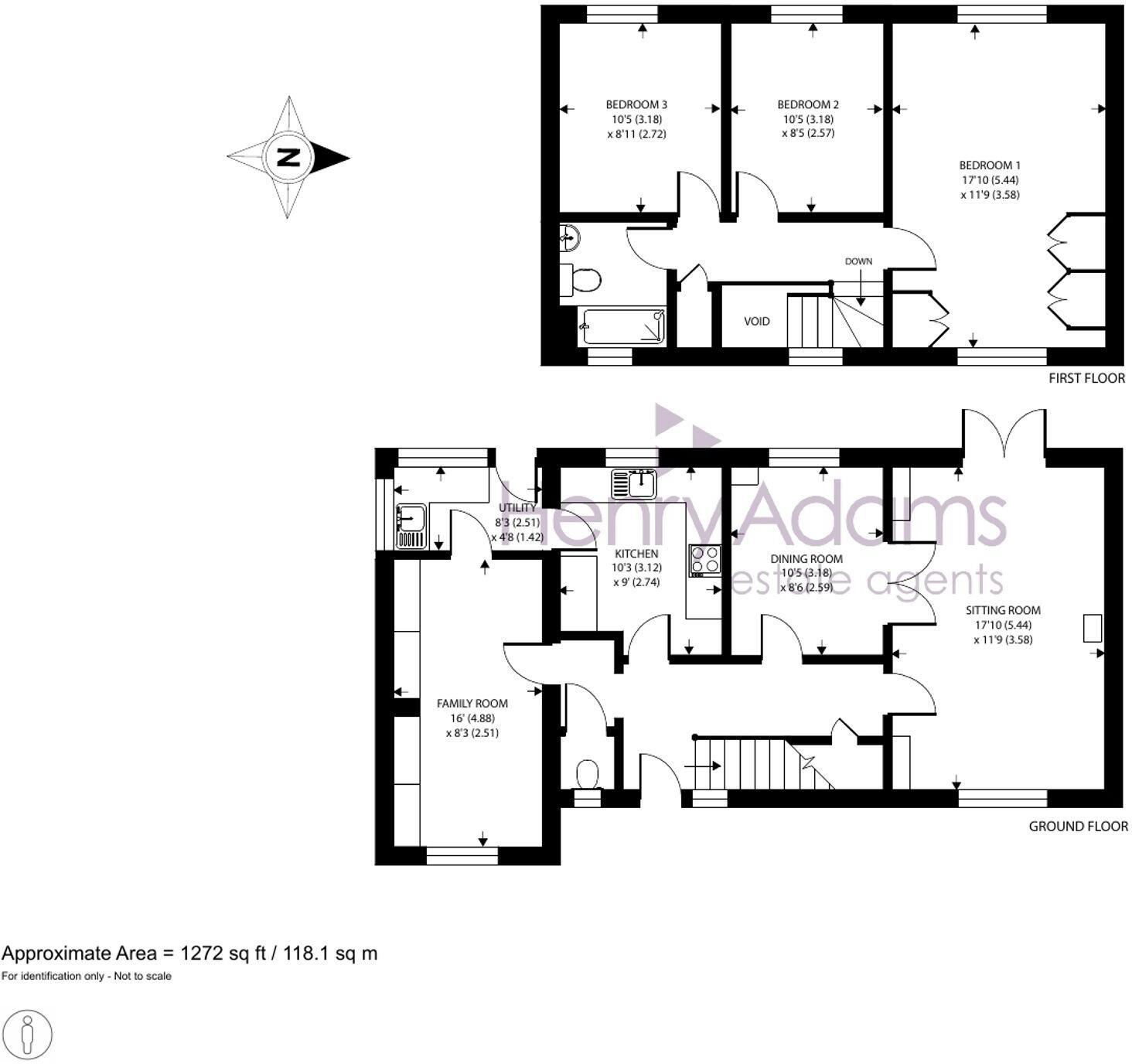
NO ONWARD CHAIN, a DETACHED HOUSE requiring MODERNISATION situated within the popular village of Birdham. THREE bedrooms, off-road parking, WEST FACING GARDEN. EPC-D
Property Oracle says ..
This detached property in Birdham presents a significant opportunity for renovation. While the house requires complete modernisation, its location in a sought-after village, proximity to local amenities like the marina and school, and a good-sized garden make it an attractive prospect. The listing price reflects the condition, offering potential buyers a chance to create a bespoke family home and add value through refurbishment.
Therefore, we give this property 6 / 10. *Disclaimer: This is our option and does constitute a recommendation or financial advice. Do your own research. *
- Price
- 7
- Condition
- 3
- Location
- 7
- Land
- 7
- Bedrooms
- 3
- Bathrooms
- 1
The heatmap indicates the level of crime in the area. The color of the heatmap indicates the crime severity and recency.
Metrics Year-on-Year
- Average area value
- 677,036.00 £Decreased by 6.72 %
- Average area rental value
- 1,373.00 £/moDecreased by 21.36 %
- Est rental Yield
- 2.43 %Decreased by 15.92 %
- Crime Rate
- 172.00 %Unchanged by 0.00 %
Agent Activity
Henry Adams created the listing.
Nearby Schools
| Name | Type | Ofsted | Distance |
|---|---|---|---|
| Birdham Ce Primary School | Voluntary Controlled School | Requires improvement | 0.36 KM |
| East Wittering Community Primary School | Community School | Good | 4.45 KM |
| Sidlesham Primary School | Community School | Good | 4.54 KM |
| Bosham Primary School | Community School | Good | 4.75 KM |
| Fishbourne Cofe Primary School | Voluntary Controlled School | Good | 5.77 KM |
Images
Nearby Streets
| Name | Average Price | Average Sqft | Distance |
|---|---|---|---|
| Pinks Lane | £ 0 | 0 | 0.00 KM |
| Westlands | £ 0 | 0 | 0.00 KM |
| Broomers Lane | £ 0 | 0 | 0.00 KM |
| Boat Storage | £ 0 | 0 | 0.00 KM |
| Chichester Marina | £ 316,000 | 0 | 0.00 KM |
Nearby Transport
| Name | NLC | TLC | Distance |
|---|---|---|---|
| Bosham | 5254 | BOH | 5.71 KM |
| Fishbourne (Sussex) | 5261 | FSB | 5.72 KM |
| Chichester | 5255 | CCH | 7.53 KM |
| Nutbourne | 5262 | NUT | 7.83 KM |
Nearby Listings
| Address | Price | Type | Score | Distance |
|---|---|---|---|---|
| Crooked Lane, Birdham, PO20 | £ 525,000 | BUY | 6 / 10 | 0.00 KM |
| Crooked Lane, Chichester, PO20 | £ 525,000 | BUY | 5 / 10 | 0.00 KM |
| Crooked Lane, Birdham, Chichester, West Sussex | £ 425,000 | BUY | Unknown | 0.01 KM |
| Crooked Lane, Birdham, Chichester, West Sussex, PO20 | £ 650,000 | BUY | 6 / 10 | 0.02 KM |
| The Saltings, Birdham, Chichester, West Sussex, PO20 | £ 645,000 | BUY | Unknown | 0.10 KM |
Nearby Properties
| Address | Price | Distance |
|---|---|---|
| 6 The Saltings | £ 335,000 | 0.07 KM |
| 10 The Saltings | £ 325,000 | 0.07 KM |
| 4 The Saltings | £ 370,000 | 0.07 KM |
| 7 The Saltings | £ 525,000 | 0.08 KM |
| 2 Chaffer Lane | £ 200,000 | 0.18 KM |