NA
Aldergate Terrace, Aldergate Street, Stonehouse
By Naylor Powell
£ 289,950
Naylor Powell says ..
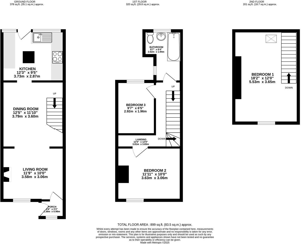
An end-terrace, three bedroom property located in the ever popular Aldergate Street. The property is situated within walking distance to Town Centre and train station, giving easy commutable access to London. The property boasts character features throughout and is a great blend of modern and cha...
- Bedrooms
- 3
- Bathrooms
- 1
- Sqft (est)
- 899.00
The heatmap indicates the level of crime in the area. The color of the heatmap indicates the crime severity and recency.
Metrics Year-on-Year
- Average area value
- 316,000.00 £Decreased by 12.80 %
- Est sale value
- 360,499.00 £Increased by 88.26 %
- Average area rental value
- 755.00 £/moDecreased by 39.65 %
- Est letting value
- 0.00 £/mo
- Est rental Yield
- 2.87 %Decreased by 30.68 %
- Crime Rate
- 23.00 %Unchanged by 0.00 %
from 362,370.00 £
from 191,487.00 £
from 1,251.00 £/mo
from 0.00 £/mo
from 4.14 %
from 23.00 %
Agent Activity
Naylor Powell created the listing.
Nearby Schools
| Name | Type | Ofsted | Distance |
|---|---|---|---|
| Wycliffe College | Other Independent School | 0.21 KM | |
| Hopelands Preparatory School | Other Independent School | 0.37 KM | |
| Stonehouse Park Infant School | Community School | Good | 0.70 KM |
| Park Junior School | Community School | Requires improvement | 0.70 KM |
| Stonehouse The Park Children'S Centre | Children's Centre | 0.72 KM |
Images
Nearby Streets
| Name | Average Price | Average Sqft | Distance |
|---|---|---|---|
| Bath Road | £ 345,556 | 0 | 0.00 KM |
| Queens Road | £ 695,000 | 0 | 0.00 KM |
| Storrington Road | £ 423,625 | 0 | 0.00 KM |
| Regent Street | £ 304,975 | 0 | 0.00 KM |
| MST59 | £ 0 | 0 | 0.00 KM |
Nearby Transport
| Name | NLC | TLC | Distance |
|---|---|---|---|
| Stonehouse | 4770 | SHU | 0.13 KM |
| Stroud (Gloucs) | 4771 | STD | 6.77 KM |
| Cam And Dursley | 3238 | CDU | 9.22 KM |
Nearby Listings
| Address | Price | Type | Score | Distance |
|---|---|---|---|---|
| Aldergate Terrace, Aldergate Street, Stonehouse | £ 289,950 | BUY | Unknown | 0.00 KM |
| Burdett Road, Stonehouse, GL10 | £ 325,000 | BUY | Unknown | 0.08 KM |
| Burdett Road, Stonehouse | £ 315,000 | BUY | 6 / 10 | 0.11 KM |
| Bath Road, Stonehouse, Gloucestershire, GL10 | £ 200,000 | BUY | Unknown | 0.11 KM |
| Springfield Court, Stonehouse | £ 249,500 | BUY | 5 / 10 | 0.14 KM |
Nearby Properties
| Address | Price | Distance |
|---|---|---|
| Kelsey | £ 335,000 | 0.03 KM |
| Chanswood | £ 330,000 | 0.06 KM |
| Pucksley | £ 278,000 | 0.06 KM |
| Bibury | £ 290,000 | 0.06 KM |
| Newlandene | £ 235,000 | 0.06 KM |