Furnival Road, Balby, Doncaster, DN4
By The Property Hive
£ 95,000
Reviews
3 out of 5 stars
The Property Hive says ..
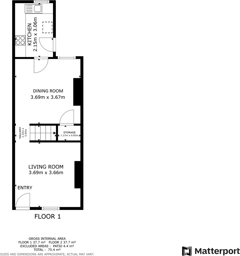
Offered with no onward chain, this two-bedroom mid-terraced home on Furnival Road presents a fantastic opportunity for first-time buyers and investors alike. Well positioned in the popular area of Balby, the property is within easy reach of local amenities, schools, transport links and Doncast...
Property Oracle says ..
Therefore, we give this property 6 / 10. *Disclaimer: This is our option and does constitute a recommendation or financial advice. Do your own research. *
- Price
- 8
- Condition
- 5
- Location
- 6
- Land
- 7
- Bedrooms
- 2
- Bathrooms
- 1
- Sqft (est)
- 394.82
The heatmap indicates the level of crime in the area. The color of the heatmap indicates the crime severity and recency.
Metrics Year-on-Year
- Average area value
- 464,990.00 £Increased by 12.84 %
- Est sale value
- 197,015.18 £Increased by 45.06 %
- Average area rental value
- 1,081.00 £/moDecreased by 23.22 %
- Est letting value
- 394.82 £/moUnchanged by 0.00 %
- Est rental Yield
- 2.79 %Decreased by 31.95 %
- Crime Rate
- 9.00 %Unchanged by 0.00 %
from 412,073.00 £
from 135,818.08 £
from 1,408.00 £/mo
from 394.82 £/mo
from 4.10 %
from 9.00 %
Agent Activity
The Property Hive created the listing.
Nearby Schools
| Name | Type | Ofsted | Distance |
|---|---|---|---|
| Sycamore Hall Preparatory School | Other Independent School | Requires improvement | 0.35 KM |
| Hexthorpe Primary School | Academy Converter | Requires improvement | 0.62 KM |
| Woodfield Primary School | Academy Converter | Good | 0.96 KM |
| Maple Medical Pru | Pupil Referral Unit | Good | 0.98 KM |
| Balby Central Primary Academy | Academy Converter | Requires improvement | 1.06 KM |
Images
Nearby Streets
| Name | Average Price | Average Sqft | Distance |
|---|---|---|---|
| Thompson Avenue | £ 139,950 | 0 | 0.00 KM |
| Oakwood Road | £ 117,500 | 0 | 0.00 KM |
| Kent Road | £ 0 | 0 | 0.00 KM |
| Travis Grove | £ 0 | 0 | 0.00 KM |
| Suffolk Road | £ 0 | 0 | 0.00 KM |
Nearby Transport
| Name | NLC | TLC | Distance |
|---|---|---|---|
| Doncaster | 6417 | DON | 2.34 KM |
| Bentley (South Yorkshire) | 8352 | BYK | 4.11 KM |
| Adwick | 8353 | AWK | 7.78 KM |
| Conisbrough | 6488 | CNS | 9.02 KM |
Nearby Listings
| Address | Price | Type | Score | Distance |
|---|---|---|---|---|
| Furnival Road, Balby, Doncaster, DN4 | £ 95,000 | BUY | 6 / 10 | 0.00 KM |
| Ronald Road, Doncaster | £ 75,000 | BUY | 5 / 10 | 0.09 KM |
| Ronald Road, Doncaster | £ 90,000 | BUY | Unknown | 0.10 KM |
| Furnival Road, Balby | £ 140,000 | BUY | 6 / 10 | 0.12 KM |
| Ronald Road, Doncaster, South Yorkshire, DN4 | £ 80,000 | BUY | Unknown | 0.14 KM |
Nearby Properties
| Address | Price | Distance |
|---|---|---|
| 78 Furnival Road | £ 73,000 | 0.04 KM |
| 43 Furnival Road | £ 72,500 | 0.04 KM |
| 55 Furnival Road | £ 49,000 | 0.04 KM |
| 80 Furnival Road | £ 44,000 | 0.04 KM |
| 31 Furnival Road | £ 30,000 | 0.04 KM |