Madison Brook says ..
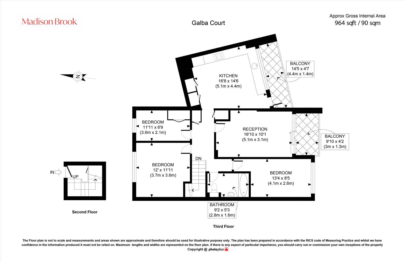
Located across the second and third floors of Galba Court, a sought-after Brentford Dock Estate, this rarely available three-bedroom duplex apartment offers 964 sq. ft. of well-designed living space, featuring a larger-than-average kitchen and two south-facing balconies overlooking the tranquil g...
Property Oracle says ..
This is a 3-bedroom flat in Syon, Brentford. The property appears to be in good condition, with a modern kitchen and bathroom. It benefits from a balcony. The location offers good access to transport links and local schools. The price is reasonable for the area and the size of the property.
Therefore, we give this property 7 / 10. *Disclaimer: This is our option and does constitute a recommendation or financial advice. Do your own research. *
- Price
- 7
- Condition
- 8
- Location
- 7
- Land
- 6
- Bedrooms
- 3
- Bathrooms
- 1
- Sqft (est)
- 894.21
The heatmap indicates the level of crime in the area. The color of the heatmap indicates the crime severity and recency.
Metrics Year-on-Year
- Average area value
- 517,032.00 £Decreased by 3.11 %
- Est sale value
- 580,342.29 £Increased by 9.26 %
- Average area rental value
- 1,845.00 £/moIncreased by 3.59 %
- Est letting value
- 1,788.42 £/moIncreased by 100.00 %
- Est rental Yield
- 4.28 %Increased by 7.00 %
- Crime Rate
- 4.00 %Unchanged by 0.00 %
Agent Activity
Madison Brook created the listing.
Nearby Schools
| Name | Type | Ofsted | Distance |
|---|---|---|---|
| St Paul'S Cofe Primary School | Voluntary Aided School | Good | 0.34 KM |
| Brentford School For Girls | Academy Converter | Good | 0.41 KM |
| Brentford Children'S Centre | Children's Centre | 1.16 KM | |
| Green Dragon Primary School | Community School | Good | 1.20 KM |
| Our Lady And St John'S Catholic Primary School | Voluntary Aided School | Good | 1.31 KM |
Images
Nearby Streets
| Name | Average Price | Average Sqft | Distance |
|---|---|---|---|
| Dock Road | £ 495,000 | 0 | 0.00 KM |
| West Bradbury Yard | £ 0 | 0 | 0.00 KM |
| East Bradbury Yard | £ 0 | 0 | 0.00 KM |
| Brentford High Street | £ 0 | 0 | 0.00 KM |
| High Street | £ 457,500 | 0 | 0.00 KM |
Nearby Transport
| Name | NLC | TLC | Distance |
|---|---|---|---|
| Brentford | 5552 | BFD | 0.78 KM |
| Syon Lane | 5609 | SYL | 2.13 KM |
| Richmond | 5570 | RMD | 2.13 KM |
| Kew Bridge | 5593 | KWB | 2.22 KM |
| Kew Gardens | 5594 | KWG | 2.33 KM |
Nearby Listings
| Address | Price | Type | Score | Distance |
|---|---|---|---|---|
| Augustus Close, Brentford Dock | £ 250,000 | BUY | 6 / 10 | 0.00 KM |
| Galba Court, Brentford, TW8 | £ 500,000 | BUY | 7 / 10 | 0.00 KM |
| Romulus Court, Brentford Dock, Brentford | £ 380,000 | BUY | 4 / 10 | 0.01 KM |
| Romulus Court, Justin Close, Brentford | £ 295,000 | BUY | 5 / 10 | 0.01 KM |
| Justin Close, Brentford | £ 345,000 | BUY | 7 / 10 | 0.01 KM |
Nearby Properties
| Address | Price | Distance |
|---|---|---|
| 3 Justin Close | £ 470,000 | 0.12 KM |
| 22 Augustus Close | £ 715,000 | 0.30 KM |
| 3 Augustus Close | £ 549,950 | 0.30 KM |
| 5 Augustus Close | £ 355,000 | 0.30 KM |
| 34 Augustus Close | £ 435,000 | 0.30 KM |