Cedar Road, Dartford
LI

Cedar Road, Dartford

By Livermores The Estate Agents

£ 425,000

Livermores The Estate Agents says ..

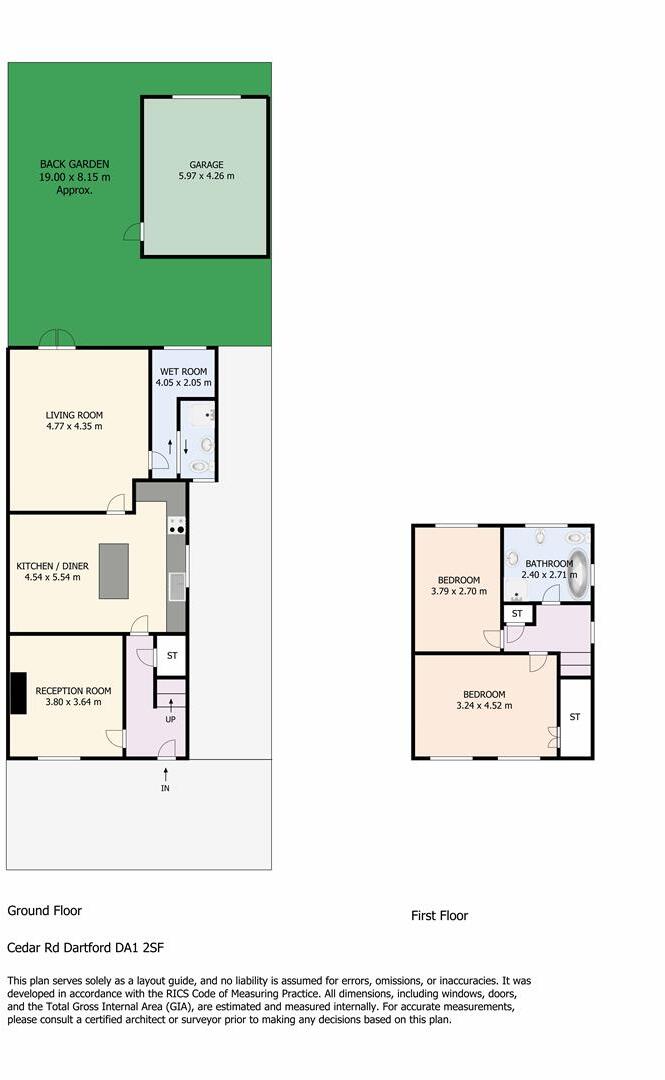
Nestled on Cedar Road in Dartford, this impressive end-terrace house offers a spacious and versatile living environment, perfect for families or those seeking extra room. With a generous total area of 1,205 square feet, the property boasts two well-proportioned bedrooms and three reception rooms,...

Bedrooms
2
Bathrooms
2

The heatmap indicates the level of crime in the area. The color of the heatmap indicates the crime severity and recency.

Metrics Year-on-Year

Average area value
680,617.00 £
Decreased by 16.07 %
from 810,933.00 £
Average area rental value
1,914.00 £/mo
Increased by 14.68 %
from 1,669.00 £/mo
Est rental Yield
3.37 %
Increased by 36.44 %
from 2.47 %
Crime Rate
3.00 %
Unchanged by 0.00 %
from 3.00 %

Agent Activity

  • Livermores The Estate Agents created the listing.

Nearby Schools

NameTypeOfstedDistance
Oakfield Children'S CentreChildren's Centre0.11 KM
Oakfield Primary AcademyAcademy ConverterGood0.12 KM
Westgate Primary SchoolAcademy Sponsor LedGood0.93 KM
North Kent CollegeFurther EducationGood1.11 KM
Dartford Science & Technology CollegeFoundation SchoolGood1.22 KM

Images

DSC04441edit-Editdp.jpg DSC04351edit.jpg DSC04339edit.jpg DSC04384editdp.jpg DSC04363edit.jpg DSC04417edit.jpg DSC04354edit.jpg DSC04333edit.jpg DSC04396editdp.jpg DSC04375edit.jpg DSC04420edit.jpg DSC04423edit.jpg DSC04426edit.jpg DSC04336edit.jpg DSC04429edit.jpg DSC04432edit.jpg DSC04435edit.jpg DSC04330edit.jpg DSC04342edit.jpg DSC04393editdp.jpg DSC04345edit.jpg DSC04348edit.jpg DSC04357edit.jpg DSC04369edit.jpg DSC04372edit.jpg DSC04405edit.jpg DSC04402editdp.jpg DSC04438edit-Editdp.jpg

Nearby Streets

NameAverage PriceAverage SqftDistance
Trafalgar Road £ 000.00 KM
Heath Street £ 000.00 KM
Highfield Road £ 000.00 KM
Princes Road £ 000.00 KM
Gordon Road £ 300,00000.00 KM

Nearby Transport

NameNLCTLCDistance
Dartford5101DFD1.61 KM
Crayford5100CRY3.94 KM
Slade Green5154SGR4.37 KM
Farningham Road5105FNR4.51 KM
Purfleet7453PFL5.83 KM

Nearby Listings

AddressPriceTypeScoreDistance
Cedar Road, Dartford £ 425,000BUYUnknown0.00 KM
Oakfield Lane, Dartford £ 450,000BUY7 / 100.09 KM
Oakfield Park Road, Dartford, Kent £ 450,000BUY6 / 100.19 KM
Oakfield Park Road, Wilmington, Dartford, Kent, DA1 £ 600,000BUY5 / 100.19 KM
Oakfield Park Road, Dartford, Kent £ 475,000BUY5 / 100.19 KM

Nearby Properties

AddressPriceDistance
27 Cedar Road £ 395,0000.09 KM
42 Cedar Road £ 240,0000.09 KM
1 Cedar Road £ 212,5000.09 KM
9 Cedar Road £ 320,0000.09 KM
13 Cedar Road £ 280,0000.09 KM