CL
Onllwyn Road, Coelbren, Neath.
By Clee Tompkinson & Francis
£ 105,000
Reviews
2 out of 5 stars
Clee Tompkinson & Francis says ..
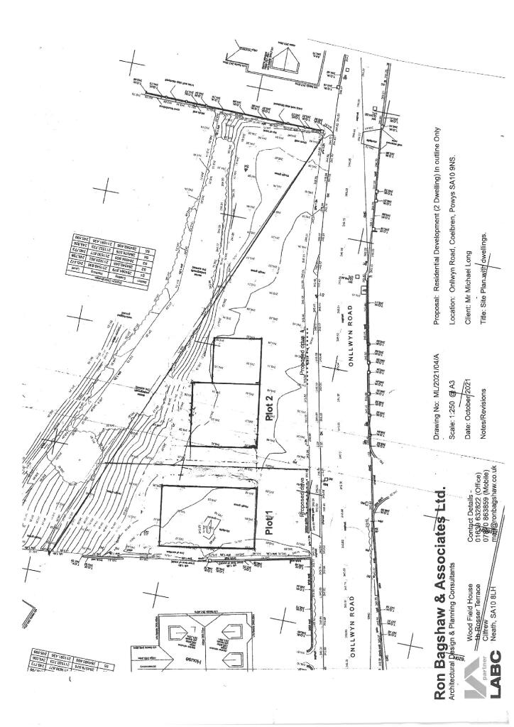
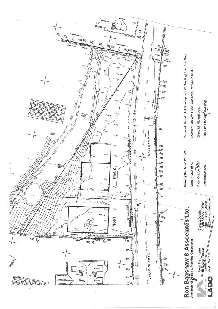
Build your own home on the edge of the Bannau Brycheiniog National Park. This plot of land with outline planning for 2 dwellings is situated in the semi-rural village of Coelbren. The village has a strong community feel and is popular with families and those who love the outdoor life. The area ...
Property Oracle says ..
Therefore, we give this property 5 / 10. *Disclaimer: This is our option and does constitute a recommendation or financial advice. Do your own research. *
- Price
- 4
- Condition
- 0
- Location
- 6
- Land
- 7
- Bedrooms
- 0
- Bathrooms
- 0
The heatmap indicates the level of crime in the area. The color of the heatmap indicates the crime severity and recency.
Metrics Year-on-Year
- Average area value
- 311,704.00 £Increased by 34.17 %
- Average area rental value
- 1,067.00 £/moDecreased by 19.35 %
- Est rental Yield
- 4.11 %Decreased by 39.82 %
- Crime Rate
- 30.00 %Unchanged by 0.00 %
from 232,321.00 £
from 1,323.00 £/mo
from 6.83 %
from 30.00 %
Agent Activity
Clee Tompkinson & Francis created the listing.
Nearby Schools
| Name | Type | Ofsted | Distance |
|---|---|---|---|
| Maesmarchog Community Primary School | Welsh Establishment | 1.96 KM | |
| Ygg Blaendulais | Welsh Establishment | 4.88 KM | |
| Blaendulais Primary School | Welsh Establishment | 4.88 KM | |
| Blaengwrach Primary School | Welsh Establishment | 7.35 KM | |
| Cwmnedd Primary School | Welsh Establishment | 7.55 KM |
Images
Nearby Streets
| Name | Average Price | Average Sqft | Distance |
|---|---|---|---|
| Heol-y-Maes | £ 309,000 | 0 | 0.00 KM |
| Nant Caer Efail | £ 0 | 0 | 0.00 KM |
Nearby Listings
| Address | Price | Type | Score | Distance |
|---|---|---|---|---|
| Onllwyn Road, Coelbren, Neath. | £ 105,000 | BUY | 5 / 10 | 0.00 KM |
| Cefn Byrle Road, Coelbren, Neath, SA10 9PD | £ 299,950 | BUY | 4 / 10 | 0.31 KM |
| Onllwyn Road, Coelbren, Neath. | £ 140,000 | BUY | 4 / 10 | 0.42 KM |
| Brynawelon, Neath | £ 106,995 | BUY | 6 / 10 | 0.55 KM |
| Heol Eglwys, Coelbren, Neath | £ 120,000 | BUY | Unknown | 0.57 KM |
Nearby Properties
| Address | Price | Distance |
|---|---|---|
| 2 Bron Y Graig | £ 76,000 | 0.06 KM |
| 3 Bron Y Graig | £ 84,000 | 0.07 KM |
| 6 Moorside Villas | £ 96,000 | 0.14 KM |
| 5 Moorside Villas | £ 69,000 | 0.14 KM |
| Pencarreg | £ 140,000 | 0.18 KM |