Nested says ..
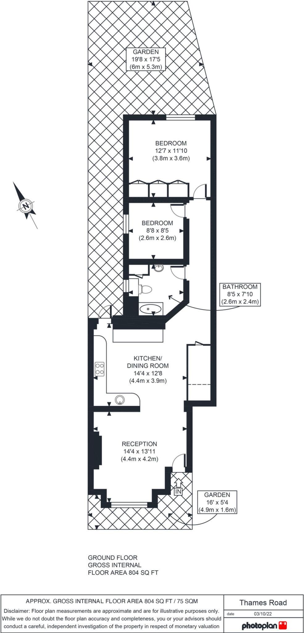
Beautifully presented two bedroom ground floor period maisonette with access to enclosed patio garden and own entrance, enviably situated in the highly sought after Strand Green area, between the centres of Kew and Chiswick.
Property Oracle says ..
This property is a 2 bedroom maisonette located in the desirable Chiswick Riverside area of London. The property benefits from being close to excellent schools such as Strand-On-The-Green Junior School and Strand-On-The-Green Infant And Nursery School, both within a short walking distance. Transport links are also good, with Kew Bridge and Gunnersbury stations nearby. The interior is presented in excellent condition and has been recently renovated to a high standard. The property also benefits from a private rear garden. While the average price per square foot in the area is £842, this property is listed at a slightly lower price per square foot, making it potentially good value for money. However, it is important to note that the average property price in the area is significantly higher than the list price.
Therefore, we give this property 8 / 10. *Disclaimer: This is our option and does constitute a recommendation or financial advice. Do your own research. *
- Price
- 8
- Condition
- 9
- Location
- 9
- Land
- 7
- Bedrooms
- 2
- Bathrooms
- 1
- Sqft (est)
- 930.00
- Lot (est)
- 804.00
The heatmap indicates the level of crime in the area. The color of the heatmap indicates the crime severity and recency.
Metrics Year-on-Year
- Average area value
- 865,385.00 £Decreased by 28.10 %
- Est sale value
- 788,640.00 £Decreased by 1.51 %
- Average area rental value
- 2,682.00 £/moIncreased by 8.23 %
- Est letting value
- 1,860.00 £/moIncreased by 100.00 %
- Est rental Yield
- 3.72 %Increased by 50.61 %
- Crime Rate
- 4.00 %Unchanged by 0.00 %
Agent Activity
Nested created the listing.
Nearby Schools
| Name | Type | Ofsted | Distance |
|---|---|---|---|
| Strand-On-The-Green Infant And Nursery School | Community School | Outstanding | 0.12 KM |
| Strand-On-The-Green Junior School | Community School | Good | 0.12 KM |
| Kew House | Other Independent School | 0.78 KM | |
| Kew College | Other Independent School | 0.79 KM | |
| The Falcons Pre Preparatory School For Boys | Other Independent School | 0.90 KM |
Images
Nearby Streets
| Name | Average Price | Average Sqft | Distance |
|---|---|---|---|
| Brooks Lane | £ 0 | 0 | 0.00 KM |
| Kew Bridge Court | £ 0 | 0 | 0.00 KM |
| M4 | £ 0 | 0 | 0.00 KM |
| Forest Road | £ 870,000 | 0 | 0.00 KM |
| Kew Road | £ 0 | 0 | 0.00 KM |
Nearby Transport
| Name | NLC | TLC | Distance |
|---|---|---|---|
| Kew Bridge | 5593 | KWB | 0.72 KM |
| Gunnersbury | 5588 | GUN | 0.85 KM |
| Kew Gardens | 5594 | KWG | 1.16 KM |
| Chiswick | 5583 | CHK | 1.61 KM |
| South Acton | 1452 | SAT | 1.89 KM |
Nearby Listings
| Address | Price | Type | Score | Distance |
|---|---|---|---|---|
| Thames Road, London, W4 | £ 725,000 | BUY | 8 / 10 | 0.00 KM |
| Thames Road, Chiswick | £ 650,000 | BUY | Unknown | 0.01 KM |
| Oliver Close, Chiswick, W4 | £ 875,000 | BUY | 7 / 10 | 0.11 KM |
| Oliver Close, Chiswick | £ 950,000 | BUY | 7 / 10 | 0.11 KM |
| Oliver Close, Chiswick | £ 900,000 | BUY | 7 / 10 | 0.11 KM |
Nearby Properties
| Address | Price | Distance |
|---|---|---|
| 53b Thames Road | £ 300,000 | 0.04 KM |
| 53a Thames Road | £ 830,000 | 0.04 KM |
| 57 Strand On The Green | £ 1,300,000 | 0.07 KM |
| 12 Geraldine Road | £ 128,000 | 0.09 KM |
| 6 Geraldine Road | £ 410,000 | 0.09 KM |