Beaufort Lodge, Woking
By Stratton & King Ltd
£ 125,000
Reviews
2 out of 5 stars
Stratton & King Ltd says ..
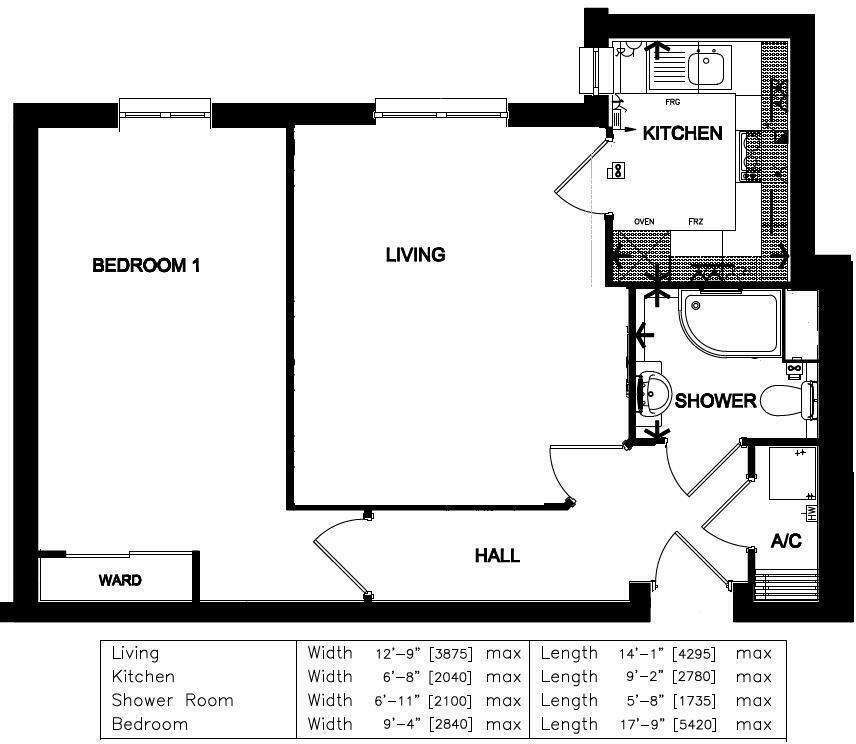
Churchill Sales & Lettings are delighted to be marketing this lovely one bedroom first floor apartment overlooking the communal garden. The property is conveniently located for the lift and offers deceptively spacious accommodation throughout. The Lounge offers ample space for living ...
Property Oracle says ..
This one-bedroom retirement apartment in Beaufort Lodge, Woking, presents as a well-maintained and conveniently located option. Its proximity to Woking train station and several schools is attractive, offering easy access to transportation and education. The apartment itself shows modern fittings and appears to be in good condition, with pictures suggesting a recently updated interior. The communal gardens are a notable feature, providing a pleasant outdoor space for residents. However, the significant drawback is the lack of private outdoor space. The overall value seems reasonable within the context of similar retirement properties in the area, though a definitive statement on value would require a full property survey and clarification of service charges and other associated costs. The significant absence of plot size data within both the main property details and the surrounding comparables significantly limits any detailed price per sqft analysis.
Therefore, we give this property 5 / 10. *Disclaimer: This is our option and does constitute a recommendation or financial advice. Do your own research. *
- Price
- 7
- Condition
- 7
- Location
- 7
- Land
- 2
- Bedrooms
- 1
- Bathrooms
- 1
- Sqft (est)
- 739.50
The heatmap indicates the level of crime in the area. The color of the heatmap indicates the crime severity and recency.
Metrics Year-on-Year
- Average area value
- 149,750.00 £Decreased by 62.13 %
- Est sale value
- 217,413.00 £Decreased by 36.09 %
- Average area rental value
- 1,531.00 £/moDecreased by 8.76 %
- Est letting value
- 2,218.50 £/moIncreased by 200.00 %
- Est rental Yield
- 12.27 %Increased by 141.06 %
- Crime Rate
- 22.00 %Unchanged by 0.00 %
Agent Activity
Stratton & King Ltd created the listing.
Nearby Schools
| Name | Type | Ofsted | Distance |
|---|---|---|---|
| Maybury Primary School | Academy Converter | 0.20 KM | |
| The Park School | Academy Special Sponsor Led | 0.46 KM | |
| Woking South Sure Start Children'S Centre | Children's Centre Linked Site | 0.52 KM | |
| St Dunstan'S Catholic Primary School, Woking | Voluntary Aided School | Outstanding | 0.61 KM |
| Halstead Preparatory School | Other Independent School | 0.99 KM |
Images
Nearby Streets
| Name | Average Price | Average Sqft | Distance |
|---|---|---|---|
| Maybury Road | £ 0 | 0 | 0.00 KM |
| Addison Road | £ 0 | 0 | 0.00 KM |
| Bedser Trail | £ 0 | 0 | 0.00 KM |
| Heath Road | £ 0 | 0 | 0.00 KM |
| Kingsmead | £ 0 | 0 | 0.00 KM |
Nearby Transport
| Name | NLC | TLC | Distance |
|---|---|---|---|
| Woking | 5685 | WOK | 0.57 KM |
| Worplesdon | 5686 | WPL | 4.89 KM |
| West Byfleet | 5684 | WBY | 5.59 KM |
| Clandon | 5555 | CLA | 8.45 KM |
| Longcross | 5674 | LNG | 8.47 KM |
Nearby Listings
| Address | Price | Type | Score | Distance |
|---|---|---|---|---|
| Beaufort Lodge, Woking | £ 125,000 | BUY | 5 / 10 | 0.00 KM |
| Grove Road, Woking, GU21 | £ 200,000 | BUY | 6 / 10 | 0.01 KM |
| Burleigh Gardens, Woking | £ 230,000 | BUY | 7 / 10 | 0.01 KM |
| Beaufort Lodge, Woking | £ 200,000 | BUY | Unknown | 0.03 KM |
| Walton Road, Woking, Surrey, GU21 | £ 150,000 | BUY | 6 / 10 | 0.04 KM |
Nearby Properties
| Address | Price | Distance |
|---|---|---|
| 34 Walton Road | £ 235,000 | 0.04 KM |
| Horsington House | £ 299,950 | 0.04 KM |
| 14 Walton Road | £ 405,000 | 0.04 KM |
| 36 Walton Road | £ 230,000 | 0.05 KM |
| 41a Walton Road | £ 142,500 | 0.05 KM |