Cwmavon Road, Abersychan, Pontypool, Torfaen, NP4
By British Homesellers
£ 315,000
Reviews
3 out of 5 stars
British Homesellers says ..
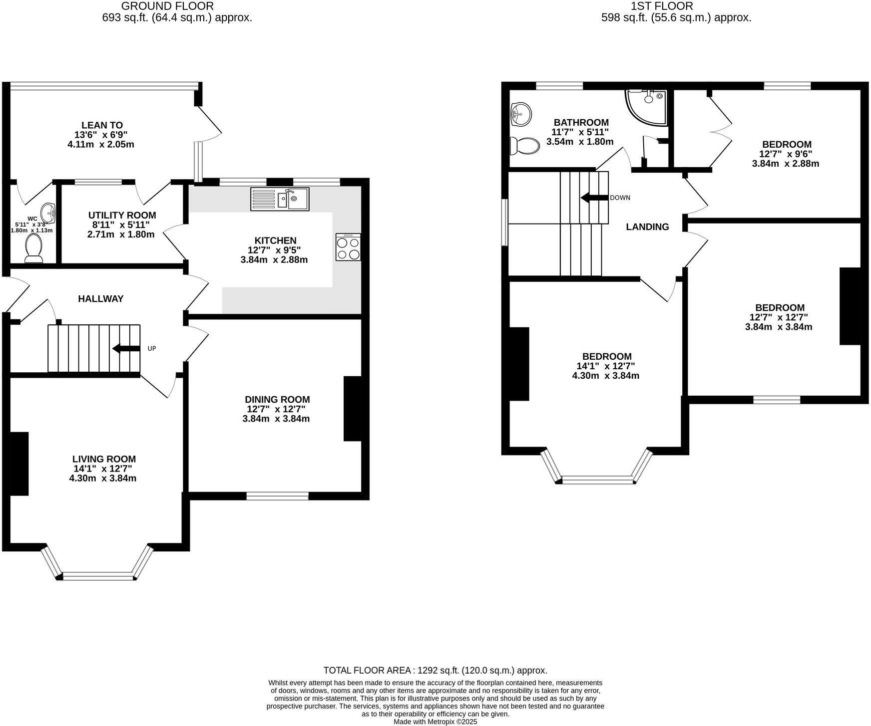
Spacious Three-Bedroom Detached Home – Cwmavon Road, Pontypool Offered with No Onward Chain Key Features Detached three-bedroom family home Excellent curb appeal with neat front garden Two spacious reception rooms Generous kitchen with adjoining utility r...
Property Oracle says ..
Therefore, we give this property 6 / 10. *Disclaimer: This is our option and does constitute a recommendation or financial advice. Do your own research. *
- Price
- 6
- Condition
- 6
- Location
- 7
- Land
- 7
- Bedrooms
- 3
- Bathrooms
- 2
The heatmap indicates the level of crime in the area. The color of the heatmap indicates the crime severity and recency.
Metrics Year-on-Year
- Average area value
- 283,000.00 £Decreased by 21.70 %
- Average area rental value
- 1,134.00 £/moIncreased by 19.24 %
- Est rental Yield
- 4.81 %Increased by 52.22 %
- Crime Rate
- 2.00 %Unchanged by 0.00 %
from 361,433.00 £
from 951.00 £/mo
from 3.16 %
from 2.00 %
Agent Activity
British Homesellers created the listing.
Nearby Schools
| Name | Type | Ofsted | Distance |
|---|---|---|---|
| Abersychan Comprehensive School | Welsh Establishment | 0.58 KM | |
| Garnteg Primary School | Welsh Establishment | 1.13 KM | |
| Ysgol Bryn Onnen | Welsh Establishment | 1.81 KM | |
| Cwmffrwdoer Primary School | Welsh Establishment | 2.42 KM | |
| Ysgol Gyfun Gwynllyw | Welsh Establishment | 3.01 KM |
Images
Nearby Streets
| Name | Average Price | Average Sqft | Distance |
|---|---|---|---|
| Vicarage Lane | £ 220,000 | 0 | 0.00 KM |
| Victoria Road | £ 170,000 | 0 | 0.00 KM |
| Waterloo Road | £ 192,121 | 0 | 0.00 KM |
| Factory Lane | £ 0 | 0 | 0.00 KM |
| Brynteg | £ 0 | 0 | 0.00 KM |
Nearby Transport
| Name | NLC | TLC | Distance |
|---|---|---|---|
| Pontypool And New Inn | 3744 | PPL | 6.14 KM |
| Llanhilleth | 9916 | LTH | 9.16 KM |
| Cwmbran | 3738 | CWM | 9.54 KM |
Nearby Listings
| Address | Price | Type | Score | Distance |
|---|---|---|---|---|
| Cwmavon Road, Abersychan, Pontypool, Torfaen, NP4 | £ 315,000 | BUY | 6 / 10 | 0.00 KM |
| Cwmavon Road, Abersychan, Pontypool | £ 220,000 | BUY | 5 / 10 | 0.10 KM |
| Victoria Road, Pontypool, NP4 | £ 525,000 | BUY | 7 / 10 | 0.15 KM |
| Vicarage Lane, Abersychan, Pontypool | £ 585,000 | BUY | Unknown | 0.19 KM |
| Victoria Road, Abersychan, NP4 | £ 700,000 | BUY | Unknown | 0.20 KM |
Nearby Properties
| Address | Price | Distance |
|---|---|---|
| The Nook | £ 210,000 | 0.10 KM |
| 4 Vicarage Terrace | £ 110,000 | 0.11 KM |
| 5 Vicarage Terrace | £ 148,000 | 0.11 KM |
| 6 Vicarage Terrace | £ 114,000 | 0.11 KM |
| Hillside | £ 284,950 | 0.16 KM |