Dexters says ..
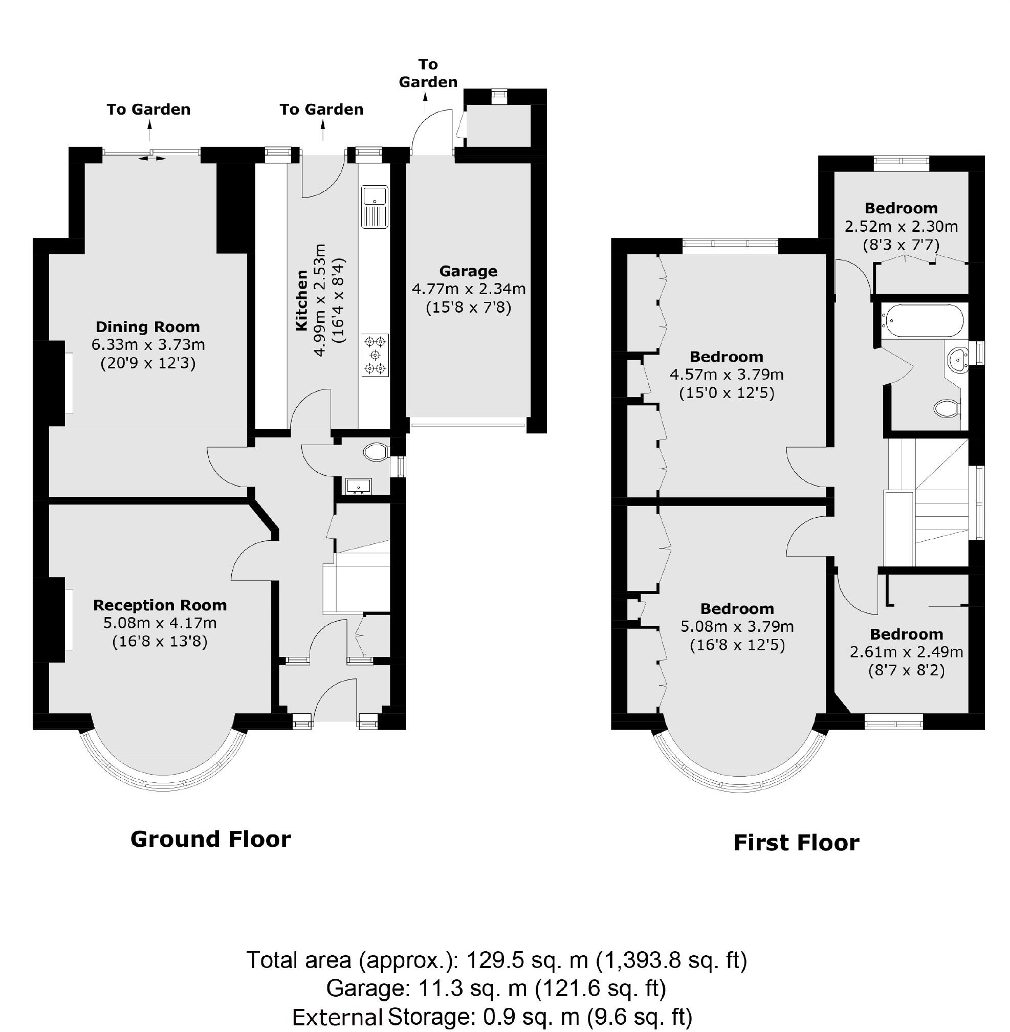
This semi-detached house benefits from close to 1,400 sq.ft of internal living space accommodating four bedrooms, one bathroom, WC, separate kitchen and two reception rooms. There is a generous garden, garage and ample off-street parking.
Property Oracle says ..
This is a four-bedroom house located on Wren Avenue in Cricklewood, London. Marketed by Dexters, the property is listed for £1,295,000. The house offers 1,393.93 square feet of living space and includes a garden. While the location is good, with proximity to schools and transportation, the interior is dated and requires renovation. The price reflects this, being slightly below the average for the area. The property is a traditional build.
Therefore, we give this property 6 / 10. *Disclaimer: This is our option and does constitute a recommendation or financial advice. Do your own research. *
- Price
- 6
- Condition
- 5
- Location
- 7
- Land
- 7
- Bedrooms
- 4
- Bathrooms
- 1
- Sqft (est)
- 1,393.93
The heatmap indicates the level of crime in the area. The color of the heatmap indicates the crime severity and recency.
Metrics Year-on-Year
- Average area value
- 1,318,000.00 £Increased by 70.66 %
- Est sale value
- 2,056,046.75 £Increased by 119.49 %
- Average area rental value
- 1,474.00 £/moDecreased by 27.60 %
- Est letting value
- 1,393.93 £/moUnchanged by 0.00 %
- Est rental Yield
- 1.34 %Decreased by 57.59 %
- Crime Rate
- 2.00 %Unchanged by 0.00 %
Agent Activity
Dexters created the listing.
Nearby Schools
| Name | Type | Ofsted | Distance |
|---|---|---|---|
| Anson Primary School | Community School | Good | 0.42 KM |
| Mora Primary School | Community School | Good | 0.46 KM |
| Convent Of Jesus And Mary Rc Infant School | Voluntary Aided School | Outstanding | 0.98 KM |
| Our Lady Of Grace Rc Infant And Nursery School | Academy Converter | 0.99 KM | |
| Gladstone Park Primary School | Academy Sponsor Led | Good | 1.01 KM |
Images
Nearby Streets
| Name | Average Price | Average Sqft | Distance |
|---|---|---|---|
| Gardiner Avenue | £ 0 | 0 | 0.00 KM |
| Clovelly Court | £ 0 | 0 | 0.00 KM |
| Stoll Close | £ 0 | 0 | 0.00 KM |
| Hudson Way | £ 625,000 | 0 | 0.00 KM |
| Kendal Road | £ 0 | 0 | 0.00 KM |
Nearby Transport
| Name | NLC | TLC | Distance |
|---|---|---|---|
| Cricklewood | 1519 | CRI | 1.15 KM |
| Brondesbury Park | 1438 | BSP | 2.15 KM |
| Kensal Rise | 1448 | KNR | 2.35 KM |
| Brondesbury | 1437 | BSY | 2.53 KM |
| Kensal Green | 1447 | KNL | 2.79 KM |
Nearby Listings
| Address | Price | Type | Score | Distance |
|---|---|---|---|---|
| Wren Avenue, Cricklewood | £ 1,295,000 | BUY | 6 / 10 | 0.00 KM |
| Wren Avenue, Cricklewood | £ 1,250,000 | BUY | 6 / 10 | 0.00 KM |
| Anson Road, Cricklewood | £ 2,000,000 | BUY | 8 / 10 | 0.10 KM |
| Dawson Road, Cricklewood, London, NW2 | £ 1,600,000 | BUY | 7 / 10 | 0.11 KM |
| Dawson Road, Willesden Green | £ 1,700,000 | BUY | 6 / 10 | 0.12 KM |
Nearby Properties
| Address | Price | Distance |
|---|---|---|
| 29 Wren Avenue | £ 930,000 | 0.01 KM |
| 21 Wren Avenue | £ 1,435,000 | 0.01 KM |
| 17 Wren Avenue | £ 565,000 | 0.01 KM |
| 27 Wren Avenue | £ 440,000 | 0.01 KM |
| 25 Wren Avenue | £ 1,399,950 | 0.01 KM |