Newbridge Road, PONTLLANFRAITH, NP122LB
By Cariad Property
£ 240,000
Reviews
3 out of 5 stars
Cariad Property says ..
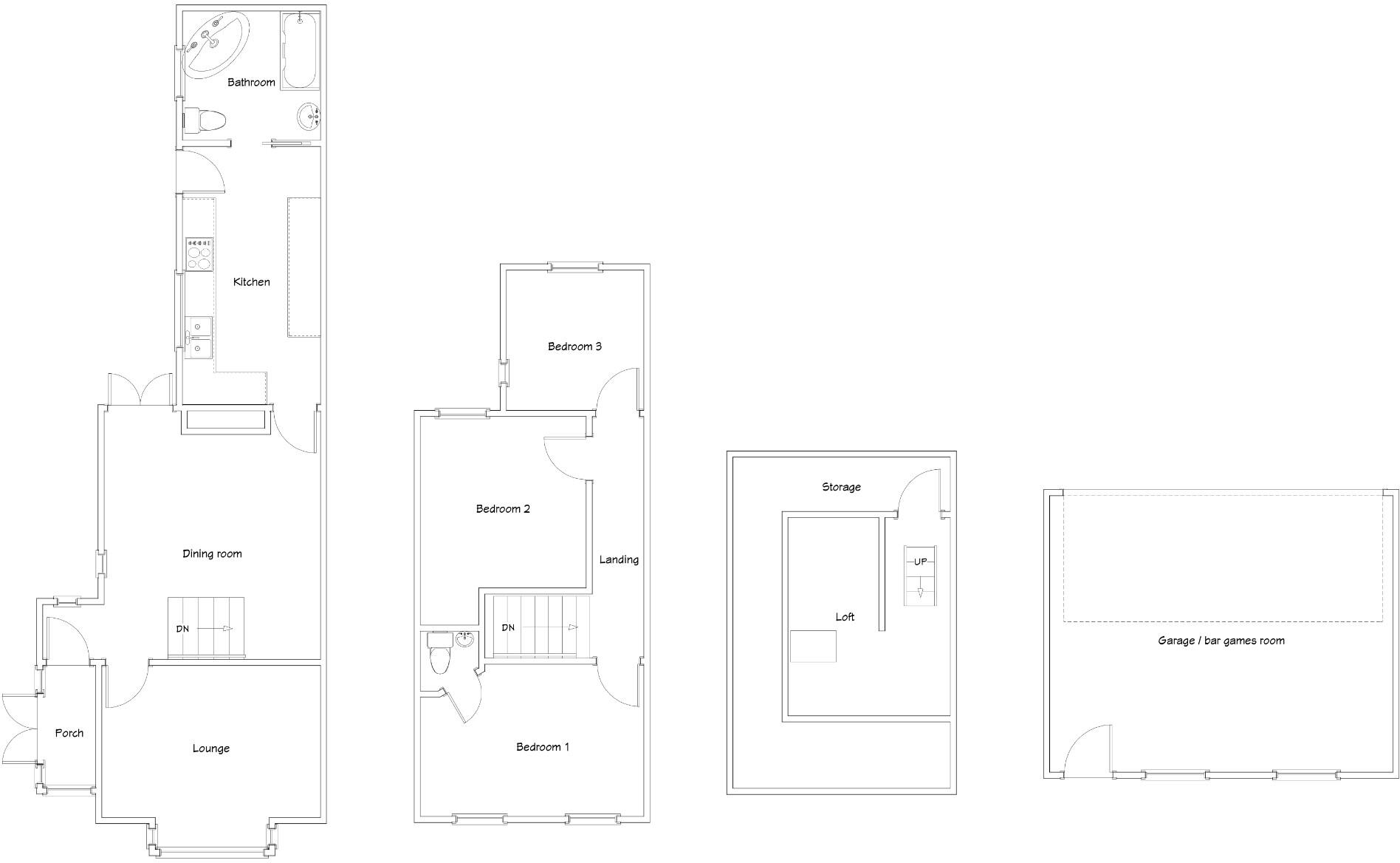
WOW SIMPLY BEAUTIFUL three-bedroom period property, gorgeously presented, refurbished to an incredible standard, light and airy, garage and bar/games room, part loft conversion for storage, popular location, a pure gem.
Property Oracle says ..
Therefore, we give this property 7 / 10. *Disclaimer: This is our option and does constitute a recommendation or financial advice. Do your own research. *
- Price
- 7
- Condition
- 9
- Location
- 7
- Land
- 7
- Bedrooms
- 3
- Bathrooms
- 2
The heatmap indicates the level of crime in the area. The color of the heatmap indicates the crime severity and recency.
Metrics Year-on-Year
- Average area value
- 187,143.00 £Decreased by 32.77 %
- Average area rental value
- 825.00 £/moIncreased by 3.90 %
- Est rental Yield
- 5.29 %Increased by 54.68 %
- Crime Rate
- 8.00 %Unchanged by 0.00 %
from 278,345.00 £
from 794.00 £/mo
from 3.42 %
from 8.00 %
Agent Activity
Cariad Property created the listing.
Nearby Schools
| Name | Type | Ofsted | Distance |
|---|---|---|---|
| Pontllanfraith Primary School | Welsh Establishment | 0.21 KM | |
| Libanus Primary School | Welsh Establishment | 1.33 KM | |
| Penllwyn Primary School | Welsh Establishment | 2.12 KM | |
| Bryn Primary School | Welsh Establishment | 2.35 KM | |
| Blackwood Primary School | Welsh Establishment | 2.55 KM |
Images
Nearby Streets
| Name | Average Price | Average Sqft | Distance |
|---|---|---|---|
| Millbrook Road | £ 180,000 | 0 | 0.00 KM |
| Oakfield | £ 0 | 0 | 0.00 KM |
| Vicarage Lane | £ 0 | 0 | 0.00 KM |
| Cumalsie Crescent | £ 0 | 0 | 0.00 KM |
| Commercial Street | £ 0 | 0 | 0.00 KM |
Nearby Transport
| Name | NLC | TLC | Distance |
|---|---|---|---|
| Newbridge | 9919 | NBE | 4.48 KM |
| Hengoed | 4028 | HNG | 4.74 KM |
| Pengam | 4021 | PGM | 5.51 KM |
| Gilfach Fargoed | 4022 | GFF | 5.78 KM |
| Bargoed | 4011 | BGD | 6.58 KM |
Nearby Listings
| Address | Price | Type | Score | Distance |
|---|---|---|---|---|
| Newbridge Road, NP12 | £ 140,000 | BUY | 7 / 10 | 0.00 KM |
| Newbridge Road, PONTLLANFRAITH, NP122LB | £ 240,000 | BUY | 7 / 10 | 0.00 KM |
| Elim Way, Blackwood | £ 325,000 | BUY | 6 / 10 | 0.09 KM |
| Brookfield Road, Pontllanfraith, Blackwood | £ 200,000 | BUY | 7 / 10 | 0.13 KM |
| Cwrt Pantycelyn, Pontllanfraith | £ 215,000 | BUY | 7 / 10 | 0.15 KM |
Nearby Properties
| Address | Price | Distance |
|---|---|---|
| 52 Newbridge Road | £ 90,000 | 0.00 KM |
| 15 Newbridge Road | £ 93,500 | 0.00 KM |
| 17 Newbridge Road | £ 80,000 | 0.00 KM |
| 22 Newbridge Road | £ 189,950 | 0.00 KM |
| 1a Newbridge Road | £ 175,000 | 0.00 KM |