Down Thomas, Plymouth
JU

Down Thomas, Plymouth

By Julian Marks

£ 375,000

Reviews

3 out of 5 stars

Julian Marks says ..

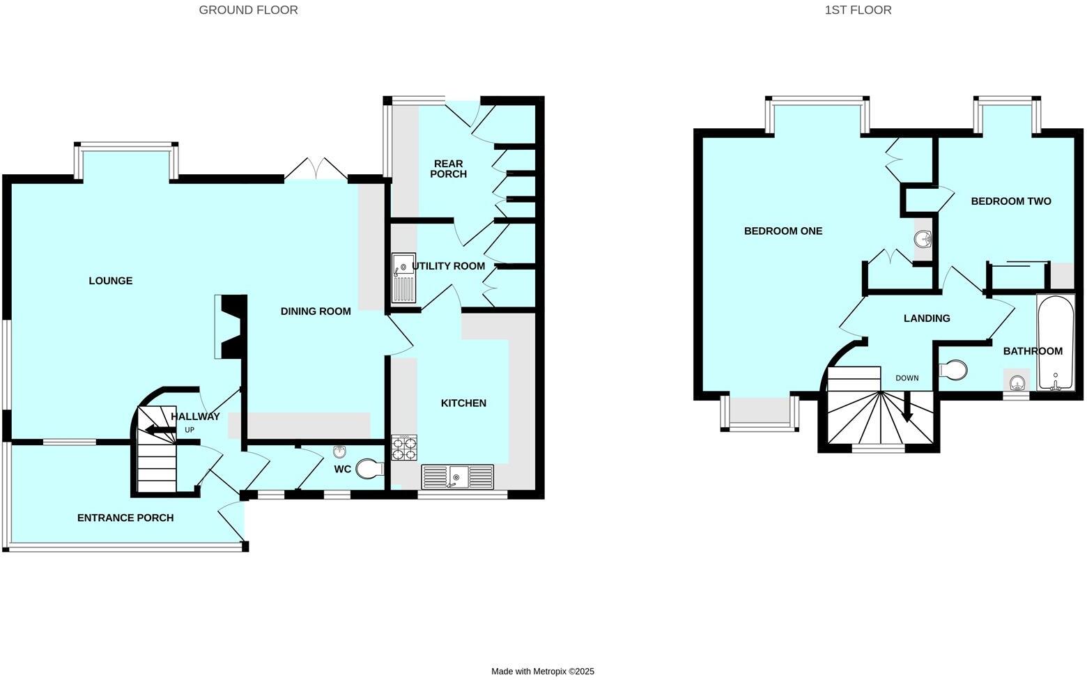
Superbly-situated individual property in a lovely location with generous gardens to 3 sides including a garage & carport. The accommodation briefly comprises an entrance porch & hallway, downstairs cloakroom/wc, lounge with adjacent open-plan dining area, kitchen with separate utility & rear porc...

Property Oracle says ..

Therefore, we give this property 6 / 10. *Disclaimer: This is our option and does constitute a recommendation or financial advice. Do your own research. *

Price
8
Condition
4
Location
7
Land
7
Bedrooms
2
Bathrooms
1
Sqft (est)
825.00

The heatmap indicates the level of crime in the area. The color of the heatmap indicates the crime severity and recency.

Metrics Year-on-Year

Average area value
435,825.00 £
Decreased by 7.72 %
from 472,278.00 £
Est sale value
413,325.00 £
Increased by 43.14 %
from 288,750.00 £
Average area rental value
1,100.00 £/mo
Decreased by 2.91 %
from 1,133.00 £/mo
Est letting value
825.00 £/mo
from 0.00 £/mo
Est rental Yield
3.03 %
Increased by 5.21 %
from 2.88 %
Crime Rate
22.00 %
Unchanged by 0.00 %
from 22.00 %

Agent Activity

  • Julian Marks marked this listing as sold.

  • Julian Marks created the listing.

Nearby Schools

NameTypeOfstedDistance
Hooe Primary AcademyAcademy ConverterGood2.24 KM
Oreston Community AcademyAcademy ConverterGood3.10 KM
Goosewell Primary AcademyAcademy Sponsor LedGood3.48 KM
Plymstock SchoolAcademy ConverterGood3.76 KM
Pomphlett Primary SchoolAcademy Converter3.89 KM

Images

IMG_3504.jpeg IMG_3509.jpeg IMG_3512.jpeg IMG_3485.jpeg IMG_3479.jpeg IMG_3491.jpeg IMG_3507.jpeg IMG_3511.jpeg IMG_3503.jpeg IMG_3483.jpeg IMG_3484.jpeg IMG_3480.jpeg IMG_3487.jpeg IMG_3488.jpeg IMG_3489.jpeg IMG_3482.jpeg IMG_3494.jpeg IMG_3490.jpeg IMG_3492.jpeg IMG_3493.jpeg IMG_3486.jpeg IMG_3510.jpeg IMG_3508.jpeg IMG_3505.jpeg IMG_3506.jpeg

Nearby Streets

NameAverage PriceAverage SqftDistance
Manor Bourne Road £ 000.00 KM
Staddon Lane £ 1,500,00000.00 KM
Coastguard Cottages £ 1,100,00000.00 KM

Nearby Transport

NameNLCTLCDistance
Plymouth3580PLY6.39 KM
Devonport3579DPT8.69 KM
Dockyard (Devonport)3588DOC9.39 KM

Nearby Listings

AddressPriceTypeScoreDistance
Down Thomas, Plymouth £ 375,000BUY6 / 100.00 KM
Cedar Park, Bovisand Lane, Down Thomas, Plymouth £ 179,950BUY6 / 100.00 KM
Cedar Park, Bovisand £ 168,000BUY6 / 100.02 KM
Down Thomas, Plymouth £ 210,000BUY6 / 100.07 KM
Down Thomas, Plymouth £ 699,950BUY7 / 100.13 KM

Nearby Properties

AddressPriceDistance
Elmbank £ 325,0000.01 KM
4 Barton Cottages £ 38,0000.26 KM
3 Barton Cottages £ 269,0000.26 KM
5 Barton Cottages £ 160,0000.27 KM
6 Eddystone Road £ 300,0000.41 KM