Star Lane, Watchfield, Swindon, SN6
By Waymark Property
£ 550,000
Reviews
3 out of 5 stars
Waymark Property says ..
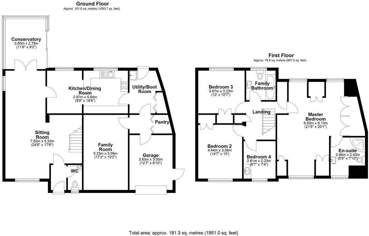
Situated in a quiet and peaceful location within the sought-after village of Watchfield, this well-presented four-bedroom detached family home offers generous and versatile living space ideal for modern family life.
Property Oracle says ..
Therefore, we give this property 6 / 10. *Disclaimer: This is our option and does constitute a recommendation or financial advice. Do your own research. *
- Price
- 6
- Condition
- 7
- Location
- 7
- Land
- 7
- Bedrooms
- 4
- Bathrooms
- 2
The heatmap indicates the level of crime in the area. The color of the heatmap indicates the crime severity and recency.
Metrics Year-on-Year
- Average area value
- 260,500.00 £Increased by 6.21 %
- Average area rental value
- 1,100.00 £/moIncreased by 0.92 %
- Est rental Yield
- 5.07 %Decreased by 4.88 %
- Crime Rate
- 14.00 %Unchanged by 0.00 %
from 245,272.00 £
from 1,090.00 £/mo
from 5.33 %
from 14.00 %
Agent Activity
Waymark Property created the listing.
Nearby Schools
| Name | Type | Ofsted | Distance |
|---|---|---|---|
| Watchfield Primary School | Academy Converter | Good | 0.61 KM |
| Shrivenham Church Of England Controlled School | Academy Converter | Good | 1.82 KM |
| Pinewood School | Other Independent School | 4.18 KM | |
| Longcot And Fernham Church Of England Primary School | Academy Converter | 4.58 KM | |
| Ashbury With Compton Beauchamp Church Of England (A) Primary School | Voluntary Aided School | Good | 6.33 KM |
Images
Nearby Streets
| Name | Average Price | Average Sqft | Distance |
|---|---|---|---|
| Anson Drive | £ 350,000 | 0 | 0.00 KM |
| Oak Road | £ 35,000 | 0 | 0.00 KM |
| Pennyhooks Lane | £ 0 | 0 | 0.00 KM |
| Queens Close | £ 500,000 | 0 | 0.00 KM |
| Benfield Place | £ 0 | 0 | 0.00 KM |
Nearby Listings
| Address | Price | Type | Score | Distance |
|---|---|---|---|---|
| Star Lane, Watchfield, Swindon, SN6 | £ 550,000 | BUY | 6 / 10 | 0.00 KM |
| Anson Drive, Watchfield, Swindon, SN6 | £ 415,000 | BUY | 7 / 10 | 0.09 KM |
| Anson Drive, Watchfield, Oxfordshire, SN6 | £ 325,000 | BUY | Unknown | 0.13 KM |
| High Street, Watchfield, SN6 | £ 600,000 | BUY | 7 / 10 | 0.17 KM |
| High Street, Watchfield, Oxfordshire, SN6 | £ 525,000 | BUY | Unknown | 0.19 KM |
Nearby Properties
| Address | Price | Distance |
|---|---|---|
| 85 High Street | £ 145,000 | 0.05 KM |
| 95 High Street | £ 205,000 | 0.05 KM |
| 73 High Street | £ 325,000 | 0.05 KM |
| 93 High Street | £ 148,000 | 0.05 KM |
| 63 High Street | £ 145,000 | 0.05 KM |