Brian Cox says ..
A Three-bedroom semi-detached house situated on Blacklands Drive, one of Hayes Ends most sought-after locations. Benefiting from easy access to the Uxbridge Road and all its amenities while offering the quiet neighbourhood. There are well regarded schools in proximity along with bus/road links in...
Property Oracle says ..
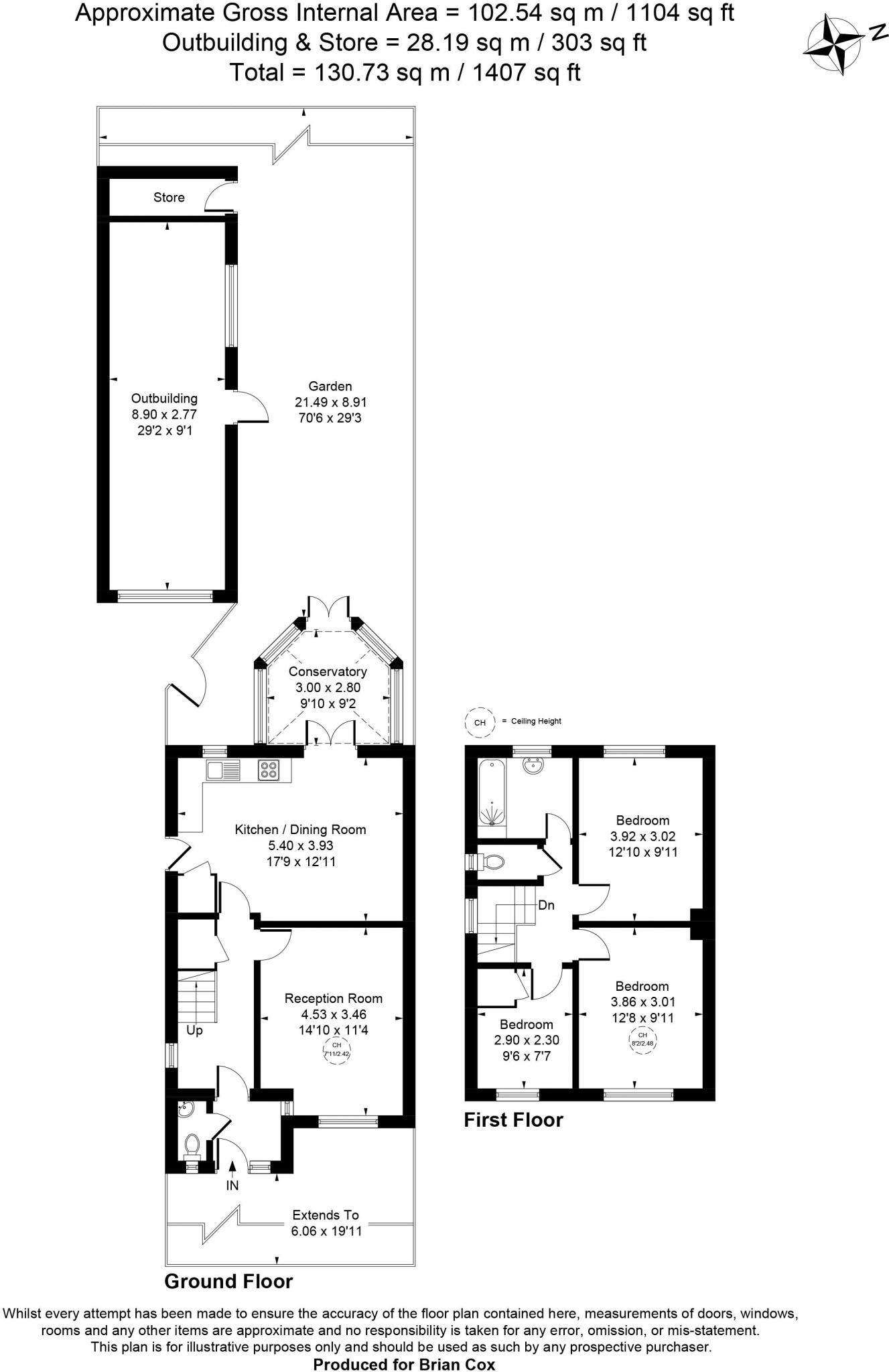
This three-bedroom semi-detached house in Hayes End, Hillingdon, offers a blend of desirable features for prospective buyers. Located on Blacklands Drive, a street noted for its desirability, the property benefits from proximity to several well-regarded schools and transport links. While a commute to stations like Hayes & Harlington is necessary, this is relatively common in the Greater London area. The interior photos showcase a modern aesthetic; the property appears well-maintained and recently renovated, boasting an updated kitchen and bathrooms. The property benefits from a substantial garden providing space for outdoor activities. The asking price seems reasonable when compared to similar properties on Blacklands Drive and in the immediate vicinity, indicating a potentially strong value proposition. The property is likely to appeal to families, professionals, or anyone seeking a comfortable and conveniently located home in the London suburbs. However, the absence of precise plot size details for the subject property and comparable homes leaves a small degree of uncertainty regarding the full value analysis.
Therefore, we give this property 7 / 10. *Disclaimer: This is our option and does constitute a recommendation or financial advice. Do your own research. *
- Price
- 7
- Condition
- 8
- Location
- 7
- Land
- 6
- Bedrooms
- 3
- Bathrooms
- 2
- Sqft (est)
- 1,407.17
The heatmap indicates the level of crime in the area. The color of the heatmap indicates the crime severity and recency.
Metrics Year-on-Year
- Average area value
- 412,273.00 £Increased by 8.72 %
- Est sale value
- 465,773.27 £Increased by 8.17 %
- Average area rental value
- 1,245.00 £/moIncreased by 0.97 %
- Est letting value
- 1,407.17 £/mo
- Est rental Yield
- 3.62 %Decreased by 7.18 %
- Crime Rate
- 2.00 %Unchanged by 0.00 %
Agent Activity
Brian Cox created the listing.
Nearby Schools
| Name | Type | Ofsted | Distance |
|---|---|---|---|
| De Salis Studio College | Studio Schools | Good | 0.16 KM |
| Hewens Primary School | Free Schools | Good | 0.16 KM |
| Hewens College | Academy Converter | Requires improvement | 0.16 KM |
| Highfield Primary School | Community School | Good | 0.99 KM |
| Swakeleys School For Girls | Academy Converter | Outstanding | 1.20 KM |
Images
Nearby Streets
| Name | Average Price | Average Sqft | Distance |
|---|---|---|---|
| Sheridan Close | £ 0 | 0 | 0.00 KM |
| The Oaks | £ 0 | 0 | 0.00 KM |
| Cherry Grove | £ 0 | 0 | 0.00 KM |
| Church Close | £ 460,000 | 0 | 0.00 KM |
| Victoria Close | £ 535,000 | 0 | 0.00 KM |
Nearby Transport
| Name | NLC | TLC | Distance |
|---|---|---|---|
| Hayes And Harlington | 3186 | HAY | 3.47 KM |
| West Drayton | 3174 | WDT | 4.32 KM |
| West Ruislip | 3059 | WRU | 4.54 KM |
| South Ruislip | 3057 | SRU | 5.31 KM |
| Heathrow Terminals 2 And 3 (Rail Station Only) | 7090 | HXX | 6.66 KM |
Nearby Listings
| Address | Price | Type | Score | Distance |
|---|---|---|---|---|
| Blacklands Drive, Hayes | £ 600,000 | BUY | 7 / 10 | 0.00 KM |
| Meadow View Road, Meadow View Road, Hayes | £ 625,000 | BUY | 6 / 10 | 0.12 KM |
| Blacklands Drive, Hayes | £ 525,000 | BUY | 6 / 10 | 0.17 KM |
| Hewens Road, Uxbridge, Middlesex, UB10 0SR | £ 450,000 | BUY | 6 / 10 | 0.21 KM |
| Hewens Road, Hillingdon Heath, UB10 | £ 550,000 | BUY | 6 / 10 | 0.22 KM |
Nearby Properties
| Address | Price | Distance |
|---|---|---|
| 93 Blacklands Drive | £ 435,000 | 0.01 KM |
| 66 Blacklands Drive | £ 390,000 | 0.01 KM |
| 85 Blacklands Drive | £ 360,000 | 0.01 KM |
| 81 Blacklands Drive | £ 260,000 | 0.01 KM |
| 111 Blacklands Drive | £ 365,000 | 0.01 KM |