Cromwell Park Place, Folkestone, CT20
By Motis Estates
£ 100,000
Reviews
2 out of 5 stars
Motis Estates says ..
Plot of Land available in Folkestone, Kent for 1 x 3 bedroom Semi Detached property. Planning Reference: 21/0810/FH
Property Oracle says ..
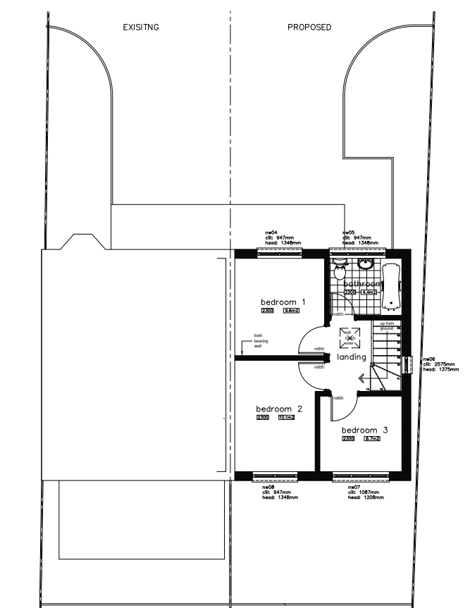
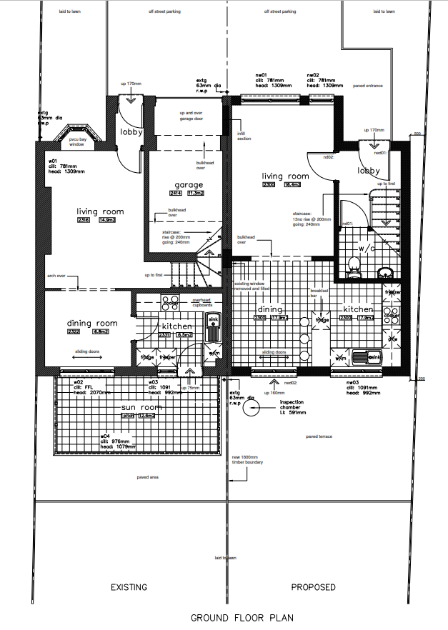
This property listing presents a plot of land in Folkestone, Kent, with planning permission for a 3-bedroom semi-detached house (planning reference: 21/0810/FH). The location in Cheriton offers proximity to several schools, including Cheriton Primary School, with a ‘Good’ Ofsted rating, and Folkestone West and Central train stations for convenient commutes. While the lack of specific details regarding the square footage of the land and the planned house limits a comprehensive assessment, the price of £100,000 seems relatively competitive considering the nearby property values, some of which exceed £200,000. The property is currently only land and construction of a 3 bedroom semi-detached is the aim. The architectural plans suggest a two storey house design with a potential driveway and small garden space. However, further information is required to fully assess the property’s condition and the true value for money. The images appear to showcase artist’s impressions of the proposed build rather than photographs of the current state, which may not represent the actual final result. Therefore, prospective buyers should exercise due diligence and seek complete specifications and potentially a professional survey before making a purchase decision. Overall, the details present both opportunities and uncertainties for potential buyers; therefore a thorough investigation is crucial before making an offer.
Therefore, we give this property 5 / 10. *Disclaimer: This is our option and does constitute a recommendation or financial advice. Do your own research. *
- Price
- 7
- Condition
- 6
- Location
- 7
- Land
- 2
- Bedrooms
- 0
- Bathrooms
- 0
The heatmap indicates the level of crime in the area. The color of the heatmap indicates the crime severity and recency.
Metrics Year-on-Year
- Average area value
- 321,653.00 £Decreased by 5.87 %
- Average area rental value
- 1,132.00 £/moDecreased by 15.08 %
- Est rental Yield
- 4.22 %Decreased by 9.83 %
- Crime Rate
- 49.00 %Unchanged by 0.00 %
Agent Activity
Motis Estates created the listing.
Nearby Schools
| Name | Type | Ofsted | Distance |
|---|---|---|---|
| Cheriton Primary School | Foundation School | Good | 0.86 KM |
| All Soul'S Church Of England Primary School | Academy Converter | 1.03 KM | |
| Folkestone, St Martin'S Church Of England Primary School | Voluntary Controlled School | Outstanding | 1.31 KM |
| Harcourt Primary School | Foundation School | Good | 1.53 KM |
| Birchwood | Pupil Referral Unit | Good | 1.66 KM |
Images
Nearby Streets
| Name | Average Price | Average Sqft | Distance |
|---|---|---|---|
| Wellington Road | £ 0 | 0 | 0.00 KM |
| Cavell Place | £ 0 | 0 | 0.00 KM |
| The Rifles | £ 270,000 | 0 | 0.00 KM |
| Appleton Road | £ 0 | 0 | 0.00 KM |
| Lofthouse Drive | £ 0 | 0 | 0.00 KM |
Nearby Transport
| Name | NLC | TLC | Distance |
|---|---|---|---|
| Folkestone West | 5027 | FKW | 2.04 KM |
| Folkestone Central | 5035 | FKC | 3.72 KM |
| Sandling | 5025 | SDG | 7.79 KM |
Nearby Listings
| Address | Price | Type | Score | Distance |
|---|---|---|---|---|
| Cromwell Park Place, Folkestone, CT20 | £ 100,000 | BUY | 5 / 10 | 0.00 KM |
| Cromwell Park Place, Folkestone, CT20 | £ 425,000 | BUY | 6 / 10 | 0.06 KM |
| Cromwell Park Place, Folkestone, Kent, CT20 | £ 425,000 | BUY | 7 / 10 | 0.07 KM |
| Cromwell Park Place, Folkestone, Kent, CT20 | £ 400,000 | BUY | 6 / 10 | 0.07 KM |
| Cromwell Park Place, Folkestone, Kent CT20 3SB | £ 400,000 | BUY | 6 / 10 | 0.08 KM |
Nearby Properties
| Address | Price | Distance |
|---|---|---|
| 31 Cromwell Park Place | £ 250,000 | 0.07 KM |
| 43 Cromwell Park Place | £ 300,000 | 0.07 KM |
| 45 Cromwell Park Place | £ 229,995 | 0.07 KM |
| 41 Cromwell Park Place | £ 210,000 | 0.07 KM |
| 19 Cromwell Park Place | £ 325,000 | 0.07 KM |