Albert Street, Windsor, SL4
By Lords Associates of London
£ 665,950
Reviews
3 out of 5 stars
Lords Associates of London says ..
Newly Refurbished Mid-Terrace House in Historic Windsor – Modern, Spacious, and Conveniently LocatedExplore this recently renovated mid-terrace house in the historic town of Windsor, where comfort meets convenience. With three double bedrooms and a family-friendly layout, this property is p...
Property Oracle says ..
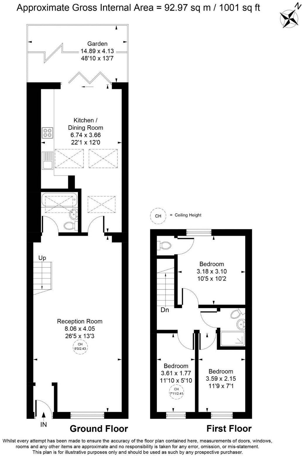
This three-bedroom, three-bathroom terraced house on Albert Street in Windsor is presented as a newly refurbished property. The images showcase a contemporary interior design with modern kitchen and bathrooms. The property boasts a good location in the desirable Eton & Castle area, benefitting from its proximity to top-rated schools such as The Green Room and convenient transport links with relatively close access to two train stations, Windsor And Eton Central and Windsor And Eton Riverside. The small rear garden provides a small amount of outdoor space. However, the list price of £665,950 requires closer scrutiny considering the lack of precise plot size details and the need for more comparative data to determine whether this price accurately reflects market value within this location. The property would be well-suited to a young family or professional couple seeking a modern, well-located home in Windsor.
Therefore, we give this property 6 / 10. *Disclaimer: This is our option and does constitute a recommendation or financial advice. Do your own research. *
- Price
- 7
- Condition
- 8
- Location
- 9
- Land
- 3
- Bedrooms
- 3
- Bathrooms
- 3
- Sqft (est)
- 1,001.00
The heatmap indicates the level of crime in the area. The color of the heatmap indicates the crime severity and recency.
Metrics Year-on-Year
- Average area value
- 755,909.00 £Increased by 23.43 %
- Est sale value
- 789,789.00 £Increased by 41.65 %
- Average area rental value
- 1,876.00 £/moDecreased by 31.51 %
- Est letting value
- 1,001.00 £/moDecreased by 50.00 %
- Est rental Yield
- 2.98 %Decreased by 44.51 %
- Crime Rate
- 4.00 %Unchanged by 0.00 %
Agent Activity
Lords Associates of London created the listing.
Nearby Schools
| Name | Type | Ofsted | Distance |
|---|---|---|---|
| The Windsor Boys' School | Academy Converter | Good | 0.19 KM |
| The Green Room | Other Independent Special School | Outstanding | 0.22 KM |
| Trinity St Stephen Cofe Aided First School | Voluntary Aided School | Good | 0.30 KM |
| The Lawns Nursery School | Local Authority Nursery School | Outstanding | 0.66 KM |
| Oakfield First School | Academy Converter | 0.66 KM |
Images
Nearby Streets
| Name | Average Price | Average Sqft | Distance |
|---|---|---|---|
| Goslar Way | £ 0 | 0 | 0.00 KM |
| Windmill Close | £ 825,000 | 0 | 0.00 KM |
| Saint Anne's Mews | £ 600,000 | 0 | 0.00 KM |
| Athlone Square | £ 0 | 0 | 0.00 KM |
| Athlone Square | £ 0 | 0 | 0.00 KM |
Nearby Transport
| Name | NLC | TLC | Distance |
|---|---|---|---|
| Windsor And Eton Central | 3175 | WNC | 1.28 KM |
| Windsor And Eton Riverside | 5672 | WNR | 1.76 KM |
| Datchet | 5668 | DAT | 4.69 KM |
| Slough | 3172 | SLO | 4.78 KM |
| Burnham | 3176 | BNM | 5.43 KM |
Nearby Listings
| Address | Price | Type | Score | Distance |
|---|---|---|---|---|
| ALBERT STREET, WINDSOR TOWN CENTRE, BERKSHIRE, SL4 | £ 1,000,000 | BUY | 7 / 10 | 0.04 KM |
| Albert Street, Windsor, SL4 | £ 600,000 | BUY | Unknown | 0.07 KM |
| Albert Street, Windsor | £ 750,000 | BUY | Unknown | 0.10 KM |
| Clarence Road, Windsor, Berkshire, SL4 | £ 325,000 | BUY | 6 / 10 | 0.15 KM |
| Albert Street, Windsor, SL4 | £ 620,000 | BUY | Unknown | 0.15 KM |
Nearby Properties
| Address | Price | Distance |
|---|---|---|
| 4 Albert Street | £ 399,950 | 0.01 KM |
| 8 Albert Street | £ 660,000 | 0.01 KM |
| 58 Albert Street | £ 365,000 | 0.01 KM |
| 88 Albert Street | £ 500,000 | 0.01 KM |
| 28 Albert Street | £ 525,000 | 0.01 KM |