igomove says ..
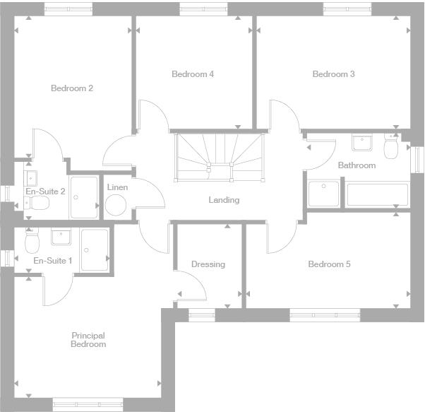
THE DENFORD HARTSIDE VIEW - Part exchange is available subject to T&C's FIVE BED DETACHED!! PLOT 439 - ESTIMATED COMPLETION OCTOBER 25 Detached with Single Garage, 5 Bedrooms Overall Floor Area: 1640ft 2 / 152.36m 2 Approximate plot dimensions:108' 7" × 47' 11" / 33.1m...
Property Oracle says ..
Therefore, we give this property 6 / 10. *Disclaimer: This is our option and does constitute a recommendation or financial advice. Do your own research. *
- Price
- 6
- Condition
- 9
- Location
- 7
- Land
- 5
- Bedrooms
- 5
- Bathrooms
- 2
- Sqft (est)
- 1,268.00
The heatmap indicates the level of crime in the area. The color of the heatmap indicates the crime severity and recency.
Metrics Year-on-Year
- Average area value
- 926,998.00 £Increased by 247.85 %
- Est sale value
- 126,800.00 £Decreased by 67.53 %
- Average area rental value
- 1,034.00 £/moIncreased by 10.47 %
- Est letting value
- 0.00 £/moDecreased by 100.00 %
- Est rental Yield
- 1.34 %Decreased by 68.17 %
- Crime Rate
- 0.00 %
from 266,491.00 £
from 390,544.00 £
from 936.00 £/mo
from 1,268.00 £/mo
from 4.21 %
from 0.00 %
Agent Activity
igomove created the listing.
Nearby Schools
| Name | Type | Ofsted | Distance |
|---|---|---|---|
| Clavering Primary School | Community School | Good | 0.75 KM |
| Barnard Grove Primary School | Academy Converter | 1.62 KM | |
| Throston Primary School | Community School | Good | 1.77 KM |
| Throston Primary School And Children'S Centre | Children's Centre Linked Site | 1.77 KM | |
| High Tunstall College Of Science | Foundation School | Good | 1.91 KM |
Images
Nearby Streets
| Name | Average Price | Average Sqft | Distance |
|---|---|---|---|
| Couch Close | £ 0 | 0 | 0.00 KM |
| Bramble Close | £ 0 | 0 | 0.00 KM |
| Spindle Way | £ 169,000 | 0 | 0.00 KM |
| Hawksbit Close | £ 0 | 0 | 0.00 KM |
| AspenGardens | £ 0 | 0 | 0.00 KM |
Nearby Transport
| Name | NLC | TLC | Distance |
|---|---|---|---|
| Hartlepool | 8009 | HPL | 5.42 KM |
| Seaton Carew | 8007 | SEC | 7.75 KM |
Nearby Listings
| Address | Price | Type | Score | Distance |
|---|---|---|---|---|
| Couch Close, Hartlepool | £ 390,000 | BUY | 6 / 10 | 0.00 KM |
| Bramble Close, Hartside View | £ 265,000 | BUY | 7 / 10 | 0.10 KM |
| Spindle Way, Hartlepool, TS27 | £ 148,000 | BUY | Unknown | 0.11 KM |
| Rotary Way, Hartside View, Hartlepool | £ 250,000 | BUY | 7 / 10 | 0.25 KM |
| Wayfarer Meadows, Hartlepool, TS27 3 | £ 299,000 | BUY | 7 / 10 | 0.27 KM |
Nearby Properties
| Address | Price | Distance |
|---|---|---|
| 1 Teignmouth Close | £ 195,500 | 0.52 KM |
| 5 Teignmouth Close | £ 68,000 | 0.52 KM |
| 4 Teignmouth Close | £ 166,000 | 0.52 KM |
| 2 Teignmouth Close | £ 177,000 | 0.52 KM |
| 16 Lady Mantle Close | £ 209,950 | 0.54 KM |