Foxtons says ..
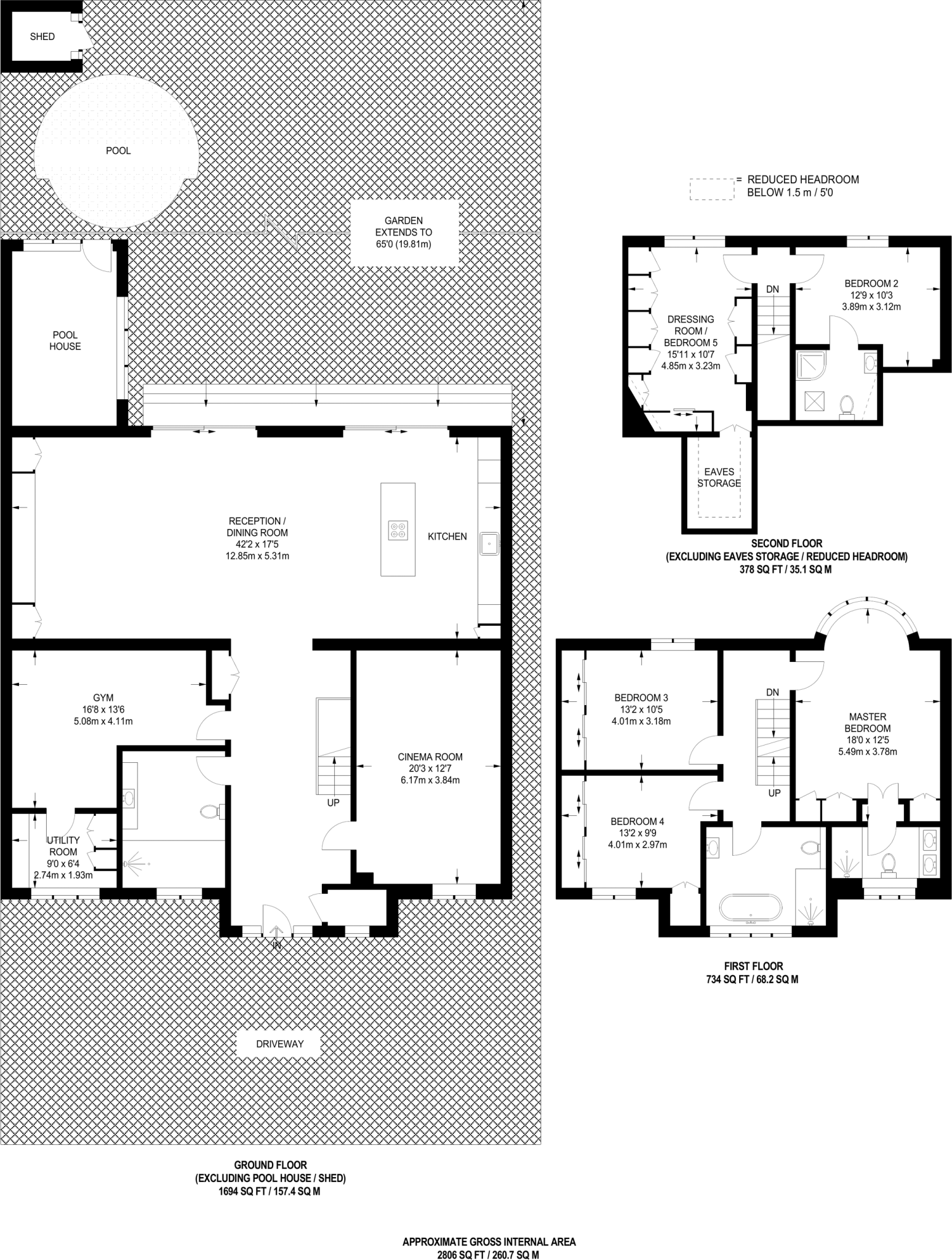
This luxury four/five bed detached home boasts copious living space, with gym and cinema rooms. The stunning open plan reception room leads to a private garden with swimming pool.
Property Oracle says ..
Therefore, we give this property 8 / 10. *Disclaimer: This is our option and does constitute a recommendation or financial advice. Do your own research. *
- Price
- 7
- Condition
- 9
- Location
- 8
- Land
- 8
- Bedrooms
- 4
- Bathrooms
- 3
- Sqft (est)
- 2,058.81
The heatmap indicates the level of crime in the area. The color of the heatmap indicates the crime severity and recency.
Metrics Year-on-Year
- Average area value
- 454,441.00 £Increased by 9.13 %
- Est sale value
- 1,288,815.06 £Increased by 19.69 %
- Average area rental value
- 2,040.00 £/moIncreased by 11.29 %
- Est letting value
- 4,117.62 £/moUnchanged by 0.00 %
- Est rental Yield
- 5.39 %Increased by 2.08 %
- Crime Rate
- 7.00 %Unchanged by 0.00 %
from 416,437.00 £
from 1,076,757.63 £
from 1,833.00 £/mo
from 4,117.62 £/mo
from 5.28 %
from 7.00 %
Agent Activity
Foxtons created the listing.
Nearby Schools
| Name | Type | Ofsted | Distance |
|---|---|---|---|
| Harmony Primary School | Other Independent School | 0.25 KM | |
| Harrow High School | Academy Converter | Good | 0.56 KM |
| Elmgrove | Children's Centre Linked Site | 0.93 KM | |
| Elmgrove Primary School & Nursery | Community School | Good | 0.96 KM |
| Red Balloon Learner Centre - Northwest London | Other Independent School | 0.99 KM |
Images
Nearby Streets
| Name | Average Price | Average Sqft | Distance |
|---|---|---|---|
| Thurlby Close | £ 0 | 0 | 0.00 KM |
| Northwick Park Roundabout | £ 0 | 0 | 0.00 KM |
| Charville Court | £ 425,000 | 0 | 0.00 KM |
| Nightingale Avenue | £ 0 | 0 | 0.00 KM |
| Proyers Path | £ 0 | 0 | 0.00 KM |
Nearby Transport
| Name | NLC | TLC | Distance |
|---|---|---|---|
| Kenton | 1399 | KNT | 0.64 KM |
| Harrow-On-The-Hill | 598 | HOH | 1.62 KM |
| Harrow And Wealdstone | 1397 | HRW | 1.86 KM |
| South Kenton | 1453 | SOK | 1.94 KM |
| Sudbury Hill Harrow | 1484 | SDH | 2.85 KM |
Nearby Listings
| Address | Price | Type | Score | Distance |
|---|---|---|---|---|
| Flambard Road, Harrow, HA1 | £ 2,000,000 | BUY | 8 / 10 | 0.00 KM |
| Blenheim Court, Kenton Road, Kenton, Harrow | £ 390,000 | BUY | 5 / 10 | 0.06 KM |
| Kenton Road, Harrow | £ 449,950 | BUY | 5 / 10 | 0.09 KM |
| Belvoir Court, Harrow, HA3 8AB | £ 270,000 | BUY | 6 / 10 | 0.10 KM |
| Kenton Road, Harrow, HA3 | £ 375,000 | BUY | 5 / 10 | 0.11 KM |
Nearby Properties
| Address | Price | Distance |
|---|---|---|
| 24 Flambard Road | £ 935,000 | 0.02 KM |
| 32 Flambard Road | £ 708,880 | 0.02 KM |
| 28 Flambard Road | £ 1,195,000 | 0.02 KM |
| 44a Flambard Road | £ 321,000 | 0.02 KM |
| 36 Flambard Road | £ 590,000 | 0.02 KM |