Bramley Way, Whittington, Lichfield
By Lovett&Co. Estate Agents
£ 799,950
Reviews
3 out of 5 stars
Lovett&Co. Estate Agents says ..
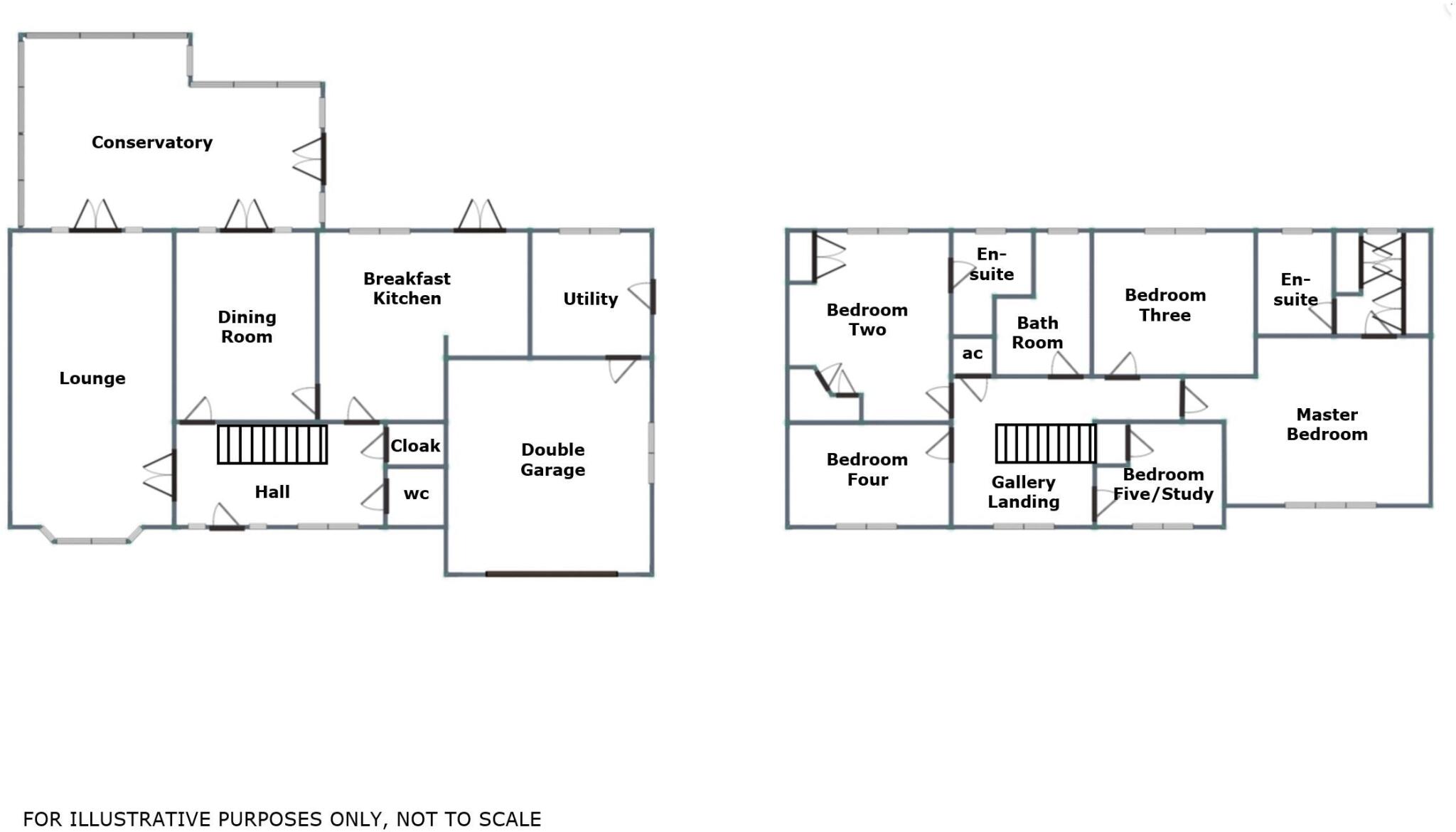
Lovett&Co. Estate Agents are delighted to present this rare opportunity to purchase a stunning five-bedroom detached family home, nestled in one of Whittington’s most sought-after cul-de-sacs. This impressive property offers generous living and sleeping accommodation throughout, beautifu...
Property Oracle says ..
Therefore, we give this property 7 / 10. *Disclaimer: This is our option and does constitute a recommendation or financial advice. Do your own research. *
- Price
- 7
- Condition
- 8
- Location
- 8
- Land
- 8
- Bedrooms
- 5
- Bathrooms
- 3
- Sqft (est)
- 2,111.00
The heatmap indicates the level of crime in the area. The color of the heatmap indicates the crime severity and recency.
Metrics Year-on-Year
- Average area value
- 618,125.00 £Increased by 37.82 %
- Est sale value
- 1,021,724.00 £Increased by 46.22 %
- Average area rental value
- 1,363.00 £/moDecreased by 1.87 %
- Est letting value
- 2,111.00 £/moUnchanged by 0.00 %
- Est rental Yield
- 2.65 %Decreased by 28.76 %
- Crime Rate
- 28.00 %Unchanged by 0.00 %
from 448,508.00 £
from 698,741.00 £
from 1,389.00 £/mo
from 2,111.00 £/mo
from 3.72 %
from 28.00 %
Agent Activity
Lovett&Co. Estate Agents created the listing.
Nearby Schools
| Name | Type | Ofsted | Distance |
|---|---|---|---|
| Whittington Primary School | Community School | Good | 0.54 KM |
| Streethay Primary School | Free Schools | 3.75 KM | |
| Thomas Barnes Primary School | Foundation School | Outstanding | 4.63 KM |
| St Stephen'S Primary School | Community School | Good | 5.04 KM |
| Scotch Orchard Primary School | Academy Converter | 5.26 KM |
Images
Nearby Streets
| Name | Average Price | Average Sqft | Distance |
|---|---|---|---|
| Barley Croft | £ 382,475 | 0 | 0.00 KM |
| Broad Lane | £ 0 | 0 | 0.00 KM |
Nearby Transport
| Name | NLC | TLC | Distance |
|---|---|---|---|
| Lichfield Trent Valley | 1291 | LTV | 4.02 KM |
| Lichfield City | 1177 | LIC | 6.55 KM |
| Shenstone | 1178 | SEN | 9.37 KM |
| Tamworth | 1322 | TAM | 9.71 KM |
Nearby Listings
| Address | Price | Type | Score | Distance |
|---|---|---|---|---|
| Bramley Way, Whittington, Lichfield | £ 799,950 | BUY | 7 / 10 | 0.00 KM |
| Church Street, Whittington, Lichfield | £ 700,000 | BUY | 8 / 10 | 0.17 KM |
| Main Street, Whittington | £ 495,000 | BUY | 6 / 10 | 0.38 KM |
| Fisherwick Road, Whittington | £ 850,000 | BUY | 7 / 10 | 0.47 KM |
| Pass Avenue, Whittington, Lichfield, WS14 | £ 375,000 | BUY | 7 / 10 | 0.52 KM |
Nearby Properties
| Address | Price | Distance |
|---|---|---|
| 8 Bramley Way | £ 490,000 | 0.01 KM |
| 2 Bramley Way | £ 450,000 | 0.01 KM |
| 3 Bramley Way | £ 442,000 | 0.01 KM |
| 15 Bramley Way | £ 600,000 | 0.01 KM |
| 13 Bramley Way | £ 565,000 | 0.01 KM |