Wheatley, Bracknell, Berkshire
RO

Wheatley, Bracknell, Berkshire

By Romans

£ 400,000

Reviews

3 out of 5 stars

Romans says ..

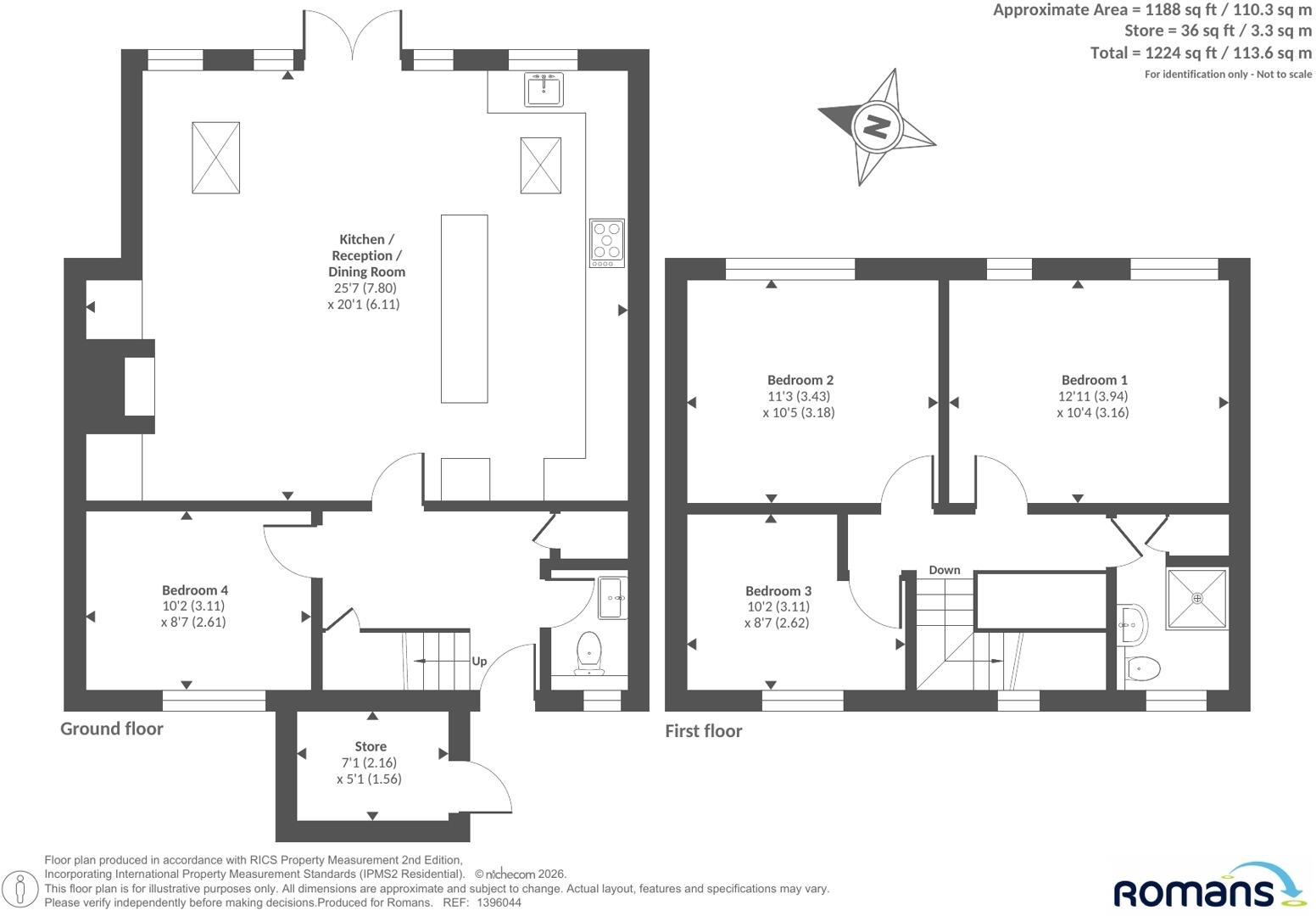
*** NO ONWARD CHAIN *** Offered to the market in the Great Hollands area is this extended four bedroom terraced home boasting a large living accommodation and a garage in a nearby block. The ground floor consists of a downstairs WC, a spacious double bedroom and an impressive exte...

Property Oracle says ..

This is a four-bedroom terraced house in Great Hollands North, Bracknell. The interior has been modernised, particularly the kitchen and bathroom. The property benefits from a garden. Bracknell train station is within a reasonable distance. The asking price of £400,000 seems reasonable given the size and condition of the property, and when compared to the average price per square foot in the area.

Therefore, we give this property 7 / 10. *Disclaimer: This is our option and does constitute a recommendation or financial advice. Do your own research. *

Price
8
Condition
7
Location
7
Land
6
Bedrooms
4
Bathrooms
1
Sqft (est)
1,224.00

The heatmap indicates the level of crime in the area. The color of the heatmap indicates the crime severity and recency.

Metrics Year-on-Year

Average area value
423,333.00 £
Decreased by 1.00 %
from 427,608.00 £
Est sale value
483,480.00 £
Increased by 7.63 %
from 449,208.00 £
Average area rental value
1,767.00 £/mo
Decreased by 10.30 %
from 1,970.00 £/mo
Est letting value
1,224.00 £/mo
Unchanged by 0.00 %
from 1,224.00 £/mo
Est rental Yield
5.01 %
Decreased by 9.40 %
from 5.53 %
Crime Rate
13.00 %
Unchanged by 0.00 %
from 13.00 %

Agent Activity

  • Romans created the listing.

Nearby Schools

NameTypeOfstedDistance
Great Hollands Primary SchoolAcademy Sponsor Led0.35 KM
Oaks And Hollies Children'S CentreChildren's Centre0.81 KM
The Hollies Children'S CentreChildren's Centre Linked Site0.81 KM
Jennett'S Park Cofe Primary SchoolAcademy Sponsor Led0.95 KM
Easthampstead Park Community SchoolCommunity SchoolGood0.97 KM

Images

1396044-18-695e4e... 1396044-2-695e4c6... 1396044-4-695e4ca... 1396044-16-695e4e... 1396044-1-695e4bd... 1396044-6-695e4db... 1396044-5-695e4d5... 1396044-7-695e4dc... 1396044-3-695e4c8... 1396044-13-695e4e... 1396044-9-695e4e1... 1396044-10-695e4e... 1396044-12-695e4e... 1396044-11-695e4e... 1396044-15-695e4e... 1396044-17-695e4e...

Nearby Streets

NameAverage PriceAverage SqftDistance
Ringmead £ 000.00 KM
Redwing Place £ 000.00 KM
Great Hollands Road £ 340,00000.00 KM
Harrier Way cycle path (north) £ 430,00000.00 KM
Aysgarth £ 000.00 KM

Nearby Transport

NameNLCTLCDistance
Bracknell5693BCE2.83 KM
Martins Heron5692MAO5.62 KM
Crowthorne5628CRN6.32 KM
Sandhurst (Berks)5646SND7.00 KM
Wokingham5696WKM7.54 KM

Nearby Listings

AddressPriceTypeScoreDistance
Wheatley, Bracknell, Berkshire £ 400,000BUY7 / 100.00 KM
Wheatley, Bracknell, Berkshire, RG12 £ 338,000BUY6 / 100.01 KM
Winscombe, Bracknell £ 385,000BUY7 / 100.07 KM
Viking, Bracknell, Berkshire £ 375,000BUY7 / 100.13 KM
Wheatley, Bracknell, Berkshire £ 365,000BUYUnknown0.13 KM

Nearby Properties

AddressPriceDistance
46 Wheatley £ 300,0000.01 KM
63 Wheatley £ 220,0000.01 KM
59 Wheatley £ 157,0000.01 KM
47 Wheatley £ 164,0000.01 KM
44 Wheatley £ 235,0000.01 KM