Trelogan, Trelogan, Flintshire, CH8
By William Gleave
£ 175,000
Reviews
3 out of 5 stars
William Gleave says ..
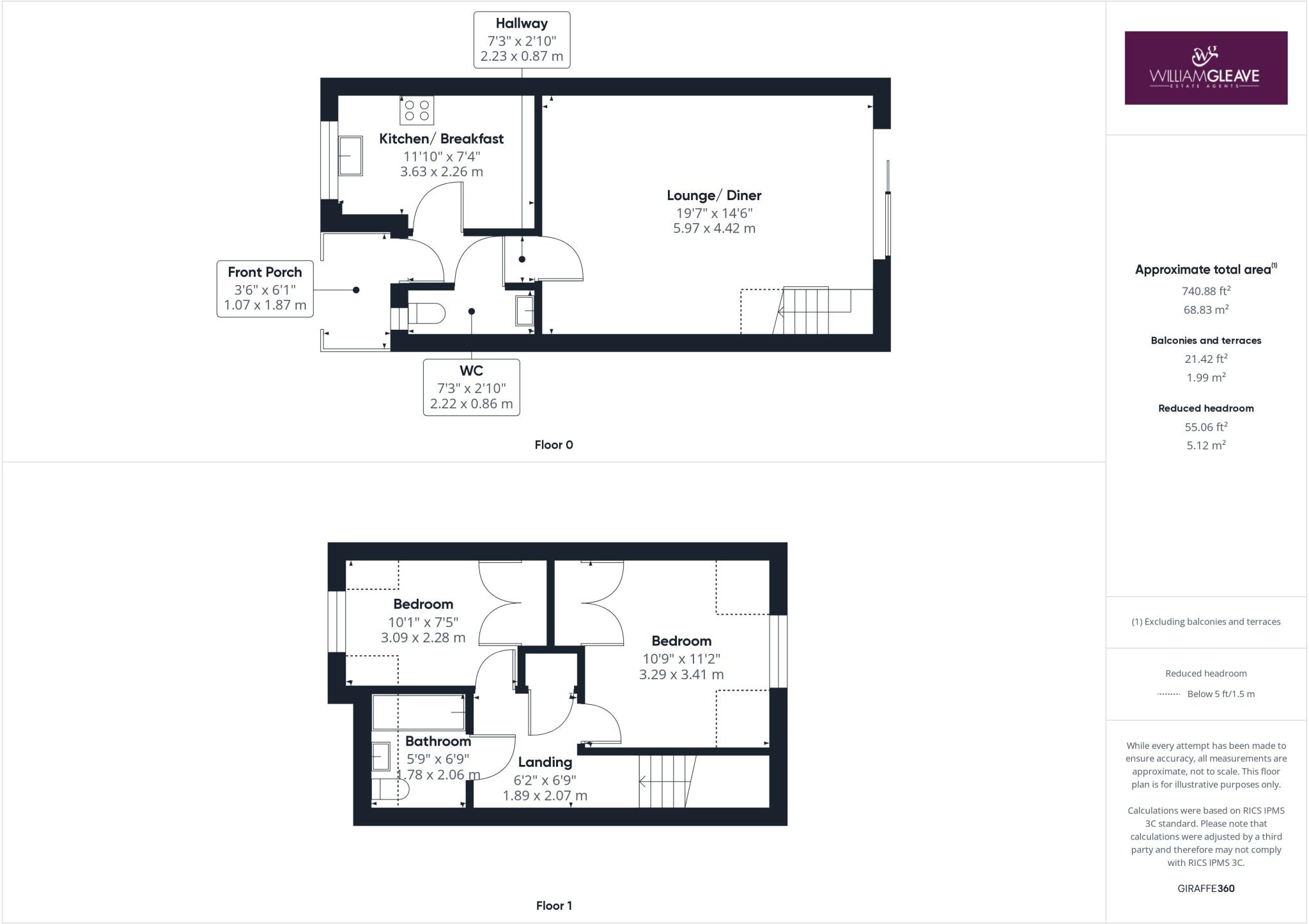
NO ONWARD CHAIN | PERFECT FOR FIRST-TIME BUYERS | OPEN COUNTRYSIDE VIEWS TO THE REAR This managable yet charming two bedroom mid-terrace house is an ideal property for first-time buyers and is located in the sought-after village of Trelogan. The property was constructed in 2007 and off...
Property Oracle says ..
The property is a 2 bedroom terraced house located in Trelogan, Flintshire, Wales. The asking price is £175,000. Based on the provided images, the property appears to be in good condition. The interior is modern and clean, with no visible signs of damage or disrepair. The exterior is also well-maintained. The garden is relatively small but well-kept, with artificial turf. The location is in a quiet residential area. There is a primary school within walking distance (Ysgol Gynradd Trelogan, 0.36 KM), and other schools are within a reasonable driving distance. A train station is located approximately 9.54 KM away in Prestatyn. Given the average house price in the area is £312,744, and the average price per square foot is £298, the listed price of £175,000 for this property seems relatively low, especially considering its apparent good condition and the inclusion of a garden. However, without knowing the square footage of the property, a definitive conclusion on price value cannot be reached. More information is needed to make a fully informed assessment of its value.
Therefore, we give this property 7 / 10. *Disclaimer: This is our option and does constitute a recommendation or financial advice. Do your own research. *
- Price
- 7
- Condition
- 9
- Location
- 7
- Land
- 6
- Bedrooms
- 2
- Bathrooms
- 1
- Sqft (est)
- 624.06
The heatmap indicates the level of crime in the area. The color of the heatmap indicates the crime severity and recency.
Metrics Year-on-Year
- Average area value
- 267,500.00 £Decreased by 0.99 %
- Est sale value
- 160,383.42 £Increased by 5.33 %
- Average area rental value
- 1,107.00 £/moDecreased by 6.11 %
- Est letting value
- 624.06 £/moUnchanged by 0.00 %
- Est rental Yield
- 4.97 %Decreased by 5.15 %
- Crime Rate
- 0.00 %
Agent Activity
William Gleave created the listing.
Nearby Schools
| Name | Type | Ofsted | Distance |
|---|---|---|---|
| Ysgol Gynradd Trelogan | Welsh Establishment | 0.36 KM | |
| Ysgol Gymraeg Mornant | Welsh Establishment | 1.90 KM | |
| Ysgol Bryn Garth | Welsh Establishment | 2.51 KM | |
| Ysgol Gronant | Welsh Establishment | 4.54 KM | |
| Trelawnyd V.A. School | Welsh Establishment | 4.95 KM |
Images
Nearby Streets
| Name | Average Price | Average Sqft | Distance |
|---|---|---|---|
| Sea View | £ 0 | 0 | 0.00 KM |
| Glan-yr-Afon Cottages | £ 550,000 | 0 | 0.00 KM |
| Pump Lane | £ 0 | 0 | 0.00 KM |
Nearby Transport
| Name | NLC | TLC | Distance |
|---|---|---|---|
| Prestatyn | 2521 | PRT | 9.54 KM |
Nearby Listings
| Address | Price | Type | Score | Distance |
|---|---|---|---|---|
| Trelogan, Trelogan, Flintshire, CH8 | £ 175,000 | BUY | 7 / 10 | 0.00 KM |
| Cuddfan, Sarn Road, Trelogan | £ 150,000 | BUY | 7 / 10 | 0.00 KM |
| Bro Dawel, Trelogan, Holywell, Flintshire, CH8 | £ 200,000 | BUY | 6 / 10 | 0.29 KM |
| Sea View, Trelogan | £ 175,000 | BUY | Unknown | 0.31 KM |
| Trelogan, Holywell, Flintshire, CH8 | £ 270,000 | BUY | 7 / 10 | 0.32 KM |
Nearby Properties
| Address | Price | Distance |
|---|---|---|
| 1a Sea View | £ 174,500 | 0.32 KM |
| 2 Sea View | £ 159,000 | 0.32 KM |
| 25 Y Berthlog | £ 92,500 | 0.36 KM |
| 31 Y Berthlog | £ 122,500 | 0.36 KM |
| 19 Y Berthlog | £ 100,000 | 0.36 KM |