YO
Redan Street, Ipswich, Suffolk
By Your Ipswich
£ 530,000
Reviews
3 out of 5 stars
Your Ipswich says ..
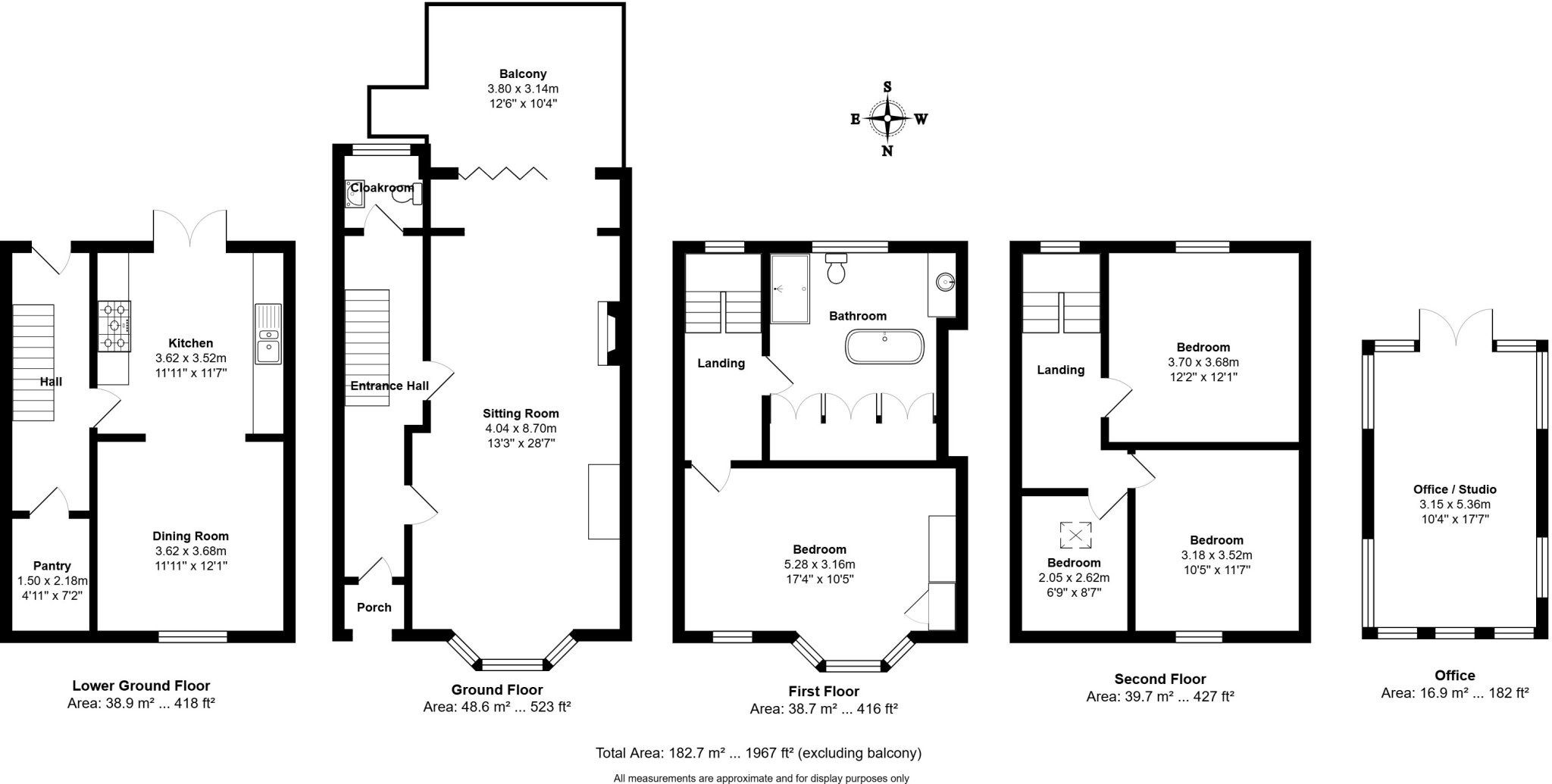
A most beautiful circa 1875, four storey, four bedroom townhouse with a south facing garden and detached, fully equipped studio perfect for those working from home. Pleasantly set to the North side of the town, Redan Street is a sought after location, tucked away on a quiet Conservation Area with...
Property Oracle says ..
Therefore, we give this property 6 / 10. *Disclaimer: This is our option and does constitute a recommendation or financial advice. Do your own research. *
- Price
- 4
- Condition
- 8
- Location
- 7
- Land
- 7
- Bedrooms
- 4
- Bathrooms
- 1
- Sqft (est)
- 1,966.57
The heatmap indicates the level of crime in the area. The color of the heatmap indicates the crime severity and recency.
Metrics Year-on-Year
- Average area value
- 222,854.00 £Decreased by 15.77 %
- Est sale value
- 566,372.16 £Decreased by 6.19 %
- Average area rental value
- 1,201.00 £/moIncreased by 7.91 %
- Est letting value
- 1,966.57 £/moUnchanged by 0.00 %
- Est rental Yield
- 6.47 %Increased by 28.12 %
- Crime Rate
- 6.00 %Unchanged by 0.00 %
from 264,570.00 £
from 603,736.99 £
from 1,113.00 £/mo
from 1,966.57 £/mo
from 5.05 %
from 6.00 %
Agent Activity
Your Ipswich created the listing.
Nearby Schools
| Name | Type | Ofsted | Distance |
|---|---|---|---|
| St Matthew'S Church Of England Primary School, Ipswich | Academy Converter | 0.49 KM | |
| Westbridge Academy | Academy Alternative Provision Converter | Good | 0.52 KM |
| Ipswich School | Other Independent School | 0.64 KM | |
| Wellington Children'S Centre | Children's Centre | 0.79 KM | |
| Meredith Children'S Centre | Children's Centre | 0.79 KM |
Images
Nearby Streets
| Name | Average Price | Average Sqft | Distance |
|---|---|---|---|
| Wellington Street | £ 850,000 | 0 | 0.00 KM |
| St. George's Street | £ 0 | 0 | 0.00 KM |
| Black Horse Lane | £ 0 | 0 | 0.00 KM |
| Norwich Road | £ 0 | 0 | 0.00 KM |
| High Street | £ 0 | 0 | 0.00 KM |
Nearby Transport
| Name | NLC | TLC | Distance |
|---|---|---|---|
| Ipswich | 7217 | IPS | 1.40 KM |
| Westerfield | 7226 | WFI | 2.98 KM |
| Derby Road (Ipswich) | 7212 | DBR | 4.29 KM |
Nearby Listings
| Address | Price | Type | Score | Distance |
|---|---|---|---|---|
| Redan Street, Ipswich, Suffolk | £ 530,000 | BUY | 6 / 10 | 0.00 KM |
| Orford Street, Ipswich, Suffolk, IP1 | £ 250,000 | BUY | 5 / 10 | 0.04 KM |
| Orford Street, Ipswich | £ 310,000 | BUY | 6 / 10 | 0.04 KM |
| Orford Street, Ipswich, Suffolk, IP1 | £ 550,000 | BUY | 6 / 10 | 0.08 KM |
| Anglesea Road, Ipswich | £ 400,000 | BUY | 6 / 10 | 0.08 KM |
Nearby Properties
| Address | Price | Distance |
|---|---|---|
| 16 Redan Street | £ 592,500 | 0.00 KM |
| 12 Redan Street | £ 210,000 | 0.00 KM |
| 11 Redan Street | £ 315,000 | 0.00 KM |
| 3a Redan Street | £ 238,000 | 0.00 KM |
| 4 Redan Street | £ 325,000 | 0.00 KM |