Chancellors says ..
Welcome to your dream home! This beautifully presented two-bedroom end of terraced property combines modern living with comfort and convenience, making it the perfect retreat for families and professionals alike.
Property Oracle says ..
Therefore, we give this property 7 / 10. *Disclaimer: This is our option and does constitute a recommendation or financial advice. Do your own research. *
- Price
- 9
- Condition
- 8
- Location
- 8
- Land
- 6
- Bedrooms
- 2
- Bathrooms
- 1
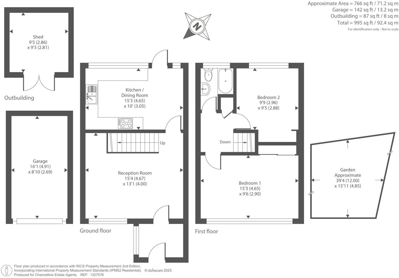
- Sqft (est)
- 995.00
- Lot (est)
- 1,000.00
The heatmap indicates the level of crime in the area. The color of the heatmap indicates the crime severity and recency.
Metrics Year-on-Year
- Average area value
- 525,000.00 £Increased by 70.84 %
- Est sale value
- 469,640.00 £Increased by 10.02 %
- Average area rental value
- 1,050.00 £/moDecreased by 53.02 %
- Est letting value
- 0.00 £/moDecreased by 100.00 %
- Est rental Yield
- 2.40 %Decreased by 72.51 %
- Crime Rate
- 22.00 %Unchanged by 0.00 %
from 307,297.00 £
from 426,855.00 £
from 2,235.00 £/mo
from 2,985.00 £/mo
from 8.73 %
from 22.00 %
Agent Activity
Chancellors created the listing.
Nearby Schools
| Name | Type | Ofsted | Distance |
|---|---|---|---|
| Kennet School | Academy Converter | Outstanding | 0.44 KM |
| Spurcroft Primary School | Community School | Good | 0.57 KM |
| Francis Baily Primary School | Academy Converter | 0.72 KM | |
| Thatcham Park Cofe Primary | Voluntary Controlled School | Good | 0.86 KM |
| Central Family Hub - Thatcham | Children's Centre | 1.08 KM |
Images
Nearby Streets
| Name | Average Price | Average Sqft | Distance |
|---|---|---|---|
| Coombe Square | £ 369,950 | 0 | 0.00 KM |
| Kennet Close | £ 0 | 0 | 0.00 KM |
| Vincent Road | £ 0 | 0 | 0.00 KM |
| Oak Tree Road | £ 435,000 | 0 | 0.00 KM |
| Marsh Road | £ 300,000 | 0 | 0.00 KM |
Nearby Transport
| Name | NLC | TLC | Distance |
|---|---|---|---|
| Thatcham | 3152 | THA | 1.43 KM |
| Newbury Racecourse | 3071 | NRC | 6.14 KM |
| Newbury | 3074 | NBY | 7.80 KM |
| Midgham | 3159 | MDG | 8.30 KM |
Nearby Listings
| Address | Price | Type | Score | Distance |
|---|---|---|---|---|
| Coombe court, Thatcham, RG19 | £ 310,000 | BUY | 7 / 10 | 0.00 KM |
| Prancing Horse Close, Thatcham RG18 4JU | £ 385,000 | BUY | 7 / 10 | 0.05 KM |
| Prancing Horse Close, Thatcham, Berkshire, RG18 | £ 410,000 | BUY | 7 / 10 | 0.05 KM |
| Coombe Court, Thatcham, RG19 | £ 300,000 | BUY | 7 / 10 | 0.07 KM |
| Coombe Court, Thatcham, RG19 4JR | £ 350,000 | BUY | 5 / 10 | 0.07 KM |
Nearby Properties
| Address | Price | Distance |
|---|---|---|
| 9 Prancing Horse Close | £ 250,000 | 0.04 KM |
| 6 Prancing Horse Close | £ 135,000 | 0.04 KM |
| 7 Prancing Horse Close | £ 365,000 | 0.04 KM |
| 8 Prancing Horse Close | £ 242,000 | 0.04 KM |
| 3 Prancing Horse Close | £ 348,000 | 0.04 KM |