Carlton Estates says ..
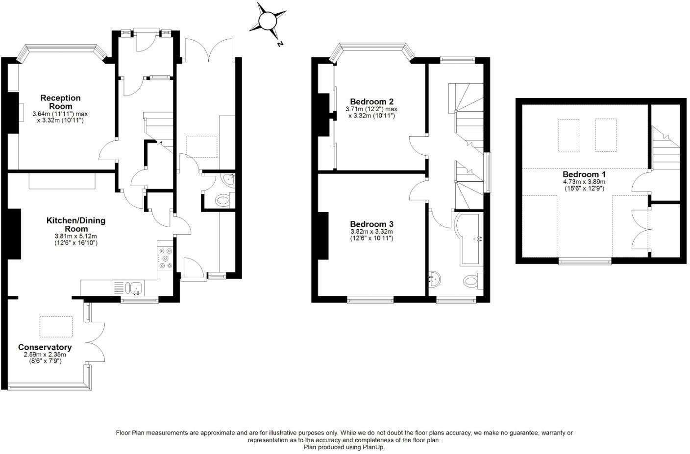
Situated in a popular and sought after location, within close proximity to Leicester City Centre, major road networks and a range of amenities. The property has been maintained to an excellent standard by the current vendors and spacious and well appointed accommodation briefly comprising: Entran...
Property Oracle says ..
This property is located in Aylestone, Leicester, and is a 3-bedroom house with 1 bathroom. The property benefits from having a garden. The list price is £324,950, which is significantly lower than the average price for the area (£522,019). However, the average size of properties in the area is 1,460 sqft, considerably larger than this property at 911.06 sqft. The property appears to be in good condition and has been recently modernised, with a modern kitchen and bathroom. There are also a number of local amenities nearby, including schools and transportation links. The property is also conveniently located near several other properties that have recently sold for a similar price, suggesting that the list price may be fair.
Therefore, we give this property 7 / 10. *Disclaimer: This is our option and does constitute a recommendation or financial advice. Do your own research. *
- Price
- 7
- Condition
- 8
- Location
- 7
- Land
- 7
- Bedrooms
- 3
- Bathrooms
- 1
- Sqft (est)
- 911.06
The heatmap indicates the level of crime in the area. The color of the heatmap indicates the crime severity and recency.
Metrics Year-on-Year
- Average area value
- 236,429.00 £Decreased by 2.75 %
- Est sale value
- 380,823.08 £Increased by 72.73 %
- Average area rental value
- 1,138.00 £/moIncreased by 31.11 %
- Est letting value
- 1,822.12 £/mo
- Est rental Yield
- 5.78 %Increased by 35.05 %
- Crime Rate
- 6.00 %Unchanged by 0.00 %
Agent Activity
Carlton Estates marked this listing as sold.
Carlton Estates created the listing.
Nearby Schools
| Name | Type | Ofsted | Distance |
|---|---|---|---|
| Montrose School | Community School | Good | 0.52 KM |
| Marriott Primary School | Community School | Good | 0.78 KM |
| Eyres Monsell Primary School | Community School | Good | 0.94 KM |
| Tudor Grange Samworth Academy, A Church Of England School | Academy Sponsor Led | Serious Weaknesses | 0.96 KM |
| Saffron Sure Start Children'S Centre | Children's Centre | 1.02 KM |
Images
Nearby Streets
| Name | Average Price | Average Sqft | Distance |
|---|---|---|---|
| Sturdee Close | £ 0 | 0 | 0.00 KM |
| Pawley Green | £ 130,000 | 0 | 0.00 KM |
| Hall Lane | £ 300,000 | 0 | 0.00 KM |
| Grace Road | £ 180,000 | 0 | 0.00 KM |
| Packhorse Road | £ 210,000 | 0 | 0.00 KM |
Nearby Transport
| Name | NLC | TLC | Distance |
|---|---|---|---|
| South Wigston | 1949 | SWS | 2.14 KM |
| Leicester | 1947 | LEI | 4.24 KM |
| Narborough | 1881 | NBR | 7.18 KM |
Nearby Listings
| Address | Price | Type | Score | Distance |
|---|---|---|---|---|
| Wigston Lane, Aylestone. | £ 324,950 | BUY | 7 / 10 | 0.00 KM |
| Wigston Lane, Aylestone, Leicester | £ 230,000 | BUY | 5 / 10 | 0.11 KM |
| Bretby Road, Aylestone | £ 250,000 | BUY | 7 / 10 | 0.14 KM |
| Wigston Lane, Leicester, LE2 | £ 260,000 | BUY | Unknown | 0.16 KM |
| Wigston Lane, Aylestone, Leicester | £ 425,000 | BUY | 7 / 10 | 0.16 KM |
Nearby Properties
| Address | Price | Distance |
|---|---|---|
| 260 Wigston Lane | £ 256,000 | 0.11 KM |
| 256 Wigston Lane | £ 160,000 | 0.11 KM |
| 238 Wigston Lane | £ 172,500 | 0.11 KM |
| 224 Wigston Lane | £ 290,000 | 0.11 KM |
| 264 Wigston Lane | £ 124,000 | 0.11 KM |