Hadrians Tower, Rutherford Street, Newcastle Upon Tyne, NE4
By Everbest Properties
£ 260,000
Reviews
3 out of 5 stars
Everbest Properties says ..
Come and view this perfect city residence or high-yield investment in one of Newcastle's most sought-after addresses, with two bathrooms and fabulous City views!
Property Oracle says ..
Location: The property is located in Newcastle Upon Tyne, close to the Monument. This is a central location with good transport links, as evidenced by the proximity to Newcastle train station (0.61 KM). Several schools are also within a reasonable distance, including St Paul’s Cofe Primary School (0.90 KM), which has a good Ofsted rating. The area’s accessibility to amenities and transport contributes positively to its desirability.
Condition: Based on the provided images, the property appears to be in good condition. The apartment is modern, with a contemporary design and finishes. The kitchen and bathrooms are clean and well-maintained. While some personal belongings are visible in the photographs, this does not detract from the overall impression of a well-presented and well-maintained property.
Land: The property is an apartment, so it does not include a garden. However, the building has a small shared outdoor space for bicycles.
Price: The list price of £260,000 is above the average price for the area (£219,624). However, the average price per square foot in the area is £227, and this property is 793 square feet. This suggests a price of approximately £180,000 (793 * 227). The property’s location in the city centre, the modern condition, and the relatively large size compared to the average in the area could justify the higher list price compared to the average. However, the presence of several nearby apartments with significantly lower prices (£150,000-£175,000) suggests that the asking price may be slightly inflated. Further investigation into comparable properties with similar sizes and features within the immediate vicinity would be beneficial in determining a more precise valuation.
Therefore, we give this property 6 / 10. *Disclaimer: This is our option and does constitute a recommendation or financial advice. Do your own research. *
- Price
- 7
- Condition
- 9
- Location
- 9
- Land
- 1
- Bedrooms
- 2
- Bathrooms
- 2
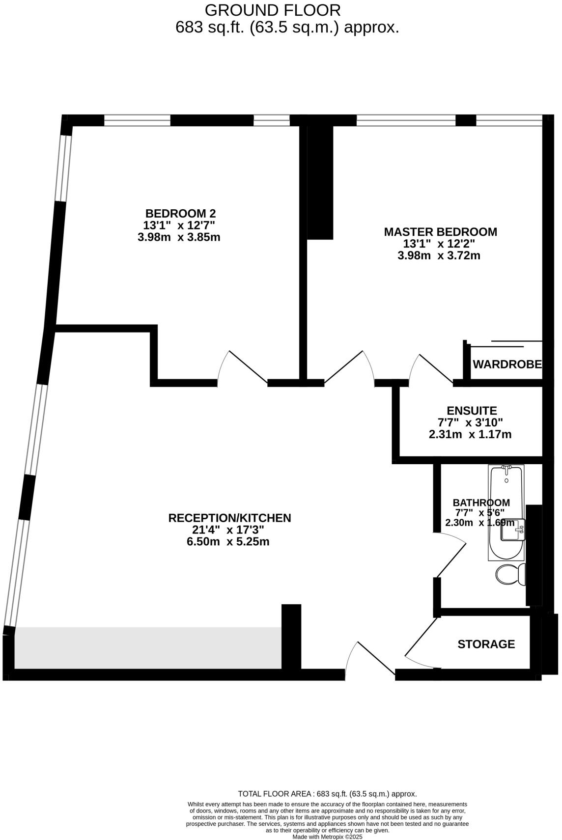
- Sqft (est)
- 793.00
- Lot (est)
- 683.00
The heatmap indicates the level of crime in the area. The color of the heatmap indicates the crime severity and recency.
Metrics Year-on-Year
- Average area value
- 225,500.00 £Decreased by 13.54 %
- Est sale value
- 180,011.00 £Decreased by 5.81 %
- Average area rental value
- 1,202.00 £/moDecreased by 6.09 %
- Est letting value
- 793.00 £/moUnchanged by 0.00 %
- Est rental Yield
- 6.40 %Increased by 8.66 %
- Crime Rate
- 8.00 %Unchanged by 0.00 %
Agent Activity
Everbest Properties created the listing.
Nearby Schools
| Name | Type | Ofsted | Distance |
|---|---|---|---|
| Callerton Academy | Free Schools | 0.55 KM | |
| Our Lady And St Anne'S Catholic Primary School | Academy Converter | 0.58 KM | |
| Ncg | Further Education | Requires improvement | 0.79 KM |
| North East Futures Utc | University Technical College | 0.84 KM | |
| St Paul'S Cofe Primary School | Voluntary Aided School | Good | 0.90 KM |
Images
Nearby Streets
| Name | Average Price | Average Sqft | Distance |
|---|---|---|---|
| B1311 | £ 0 | 0 | 0.00 KM |
| Dispensary Lane | £ 0 | 0 | 0.00 KM |
| Cross Villa Place No 3 | £ 135,000 | 0 | 0.00 KM |
| Blandford Court | £ 0 | 0 | 0.00 KM |
| Orchard Street | £ 0 | 0 | 0.00 KM |
Nearby Transport
| Name | NLC | TLC | Distance |
|---|---|---|---|
| Newcastle | 7728 | NCL | 0.61 KM |
| Manors | 7603 | MAS | 1.91 KM |
| Dunston | 7744 | DOT | 3.25 KM |
| Metrocentre | 7725 | MCE | 5.03 KM |
| Heworth | 7766 | HEW | 7.64 KM |
Nearby Listings
| Address | Price | Type | Score | Distance |
|---|---|---|---|---|
| Hadrians Tower, Rutherford Street, Newcastle Upon Tyne, NE4 | £ 260,000 | BUY | 6 / 10 | 0.00 KM |
| G0F Hadrians Tower, Rutherford Street, Newcastle Upon Tyne, Northumberland, NE4 | £ 175,000 | BUY | Unknown | 0.00 KM |
| Hadrian's Tower City Centre, Newcastle upon tyne | £ 155,000 | BUY | 6 / 10 | 0.00 KM |
| Hadrian's Tower, 27 Rutherford Street, Newcastle Upon Tyne, NE4 | £ 170,000 | BUY | 6 / 10 | 0.00 KM |
| Rutherford Street, City Centre, Newcastle Upon Tyne | £ 270,000 | BUY | 6 / 10 | 0.02 KM |
Nearby Properties
| Address | Price | Distance |
|---|---|---|
| 41b Bath Lane | £ 210,000 | 0.06 KM |
| 41a Bath Lane | £ 215,000 | 0.06 KM |
| 41 Blackfriars Court | £ 135,000 | 0.17 KM |
| 32 Blackfriars Court | £ 150,000 | 0.17 KM |
| 35 Blackfriars Court | £ 115,000 | 0.17 KM |