Langford Russell says ..
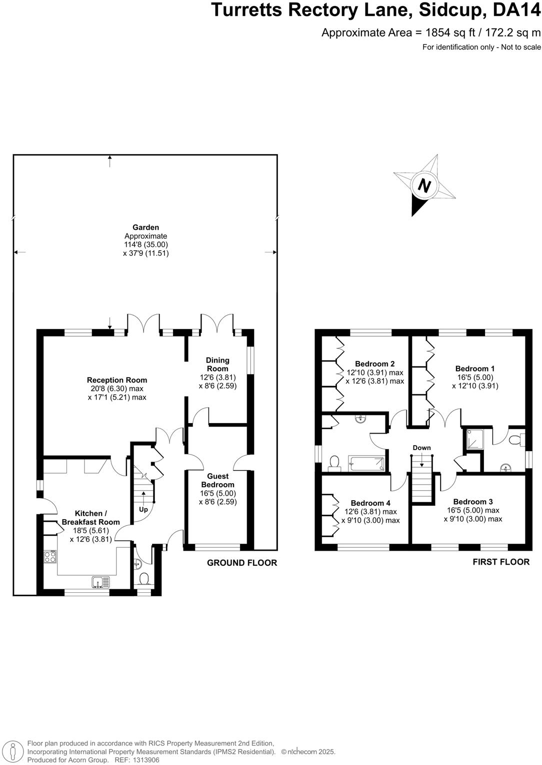
Offered to the market in immaculate condition throughout and with no onward chain, Langford Russell are delighted to present a four double bedroom, detached family home, situated just a stones throw away from Sidcup High Street. Internally, the property comprises; bright and airy entr...
Property Oracle says ..
Therefore, we give this property 7 / 10. *Disclaimer: This is our option and does constitute a recommendation or financial advice. Do your own research. *
- Price
- 7
- Condition
- 7
- Location
- 8
- Land
- 8
- Bedrooms
- 4
- Bathrooms
- 2
- Sqft (est)
- 1,854.00
- Lot (est)
- 4,291.00
The heatmap indicates the level of crime in the area. The color of the heatmap indicates the crime severity and recency.
Metrics Year-on-Year
- Average area value
- 456,667.00 £Decreased by 3.43 %
- Est sale value
- 1,559,214.00 £Increased by 89.41 %
- Average area rental value
- 2,099.00 £/moIncreased by 30.13 %
- Est letting value
- 5,562.00 £/moIncreased by 200.00 %
- Est rental Yield
- 5.52 %Increased by 34.96 %
- Crime Rate
- 1.00 %Unchanged by 0.00 %
from 472,875.00 £
from 823,176.00 £
from 1,613.00 £/mo
from 1,854.00 £/mo
from 4.09 %
from 1.00 %
Agent Activity
Langford Russell created the listing.
Nearby Schools
| Name | Type | Ofsted | Distance |
|---|---|---|---|
| Merton Court School | Other Independent School | 0.24 KM | |
| St Peter Chanel Catholic Primary School | Voluntary Aided School | Good | 0.82 KM |
| Birkbeck Primary School | Community School | Good | 0.98 KM |
| Cleeve Meadow School | Free Schools Special | 1.04 KM | |
| Cleeve Park School | Academy Converter | Requires improvement | 1.04 KM |
Images
Nearby Streets
| Name | Average Price | Average Sqft | Distance |
|---|---|---|---|
| Sedcombe Close | £ 799,999 | 0 | 0.00 KM |
| Caerleon Close | £ 0 | 0 | 0.00 KM |
| Warren Road | £ 625,000 | 0 | 0.00 KM |
| Aston Close | £ 0 | 0 | 0.00 KM |
| Sandhurst Road | £ 0 | 0 | 0.00 KM |
Nearby Transport
| Name | NLC | TLC | Distance |
|---|---|---|---|
| Sidcup | 5125 | SID | 1.29 KM |
| Albany Park | 5132 | AYP | 2.00 KM |
| St Mary Cray | 5073 | SMY | 3.39 KM |
| Bexley | 5093 | BXY | 4.42 KM |
| Welling | 5128 | WLI | 4.57 KM |
Nearby Listings
| Address | Price | Type | Score | Distance |
|---|---|---|---|---|
| Rectory Lane, Sidcup | £ 1,050,000 | BUY | 7 / 10 | 0.00 KM |
| Glyn Drive, Sidcup | £ 400,000 | BUY | 6 / 10 | 0.06 KM |
| Sidcup Hill, Sidcup | £ 140,000 | BUY | 7 / 10 | 0.21 KM |
| Sidcup Hill, Sidcup | £ 135,000 | BUY | 5 / 10 | 0.21 KM |
| Old Forge Way, Sidcup | £ 800,000 | BUY | 6 / 10 | 0.22 KM |
Nearby Properties
| Address | Price | Distance |
|---|---|---|
| Whitewalls | £ 810,000 | 0.02 KM |
| Hindover | £ 1,030,000 | 0.02 KM |
| Selwood | £ 720,000 | 0.02 KM |
| Toucy | £ 740,000 | 0.02 KM |
| 5 Glyn Drive | £ 200,000 | 0.06 KM |